Einfamilienhaus freistehend in Heiligenroth

Garten/­-mitbenutzung
Gäste WC
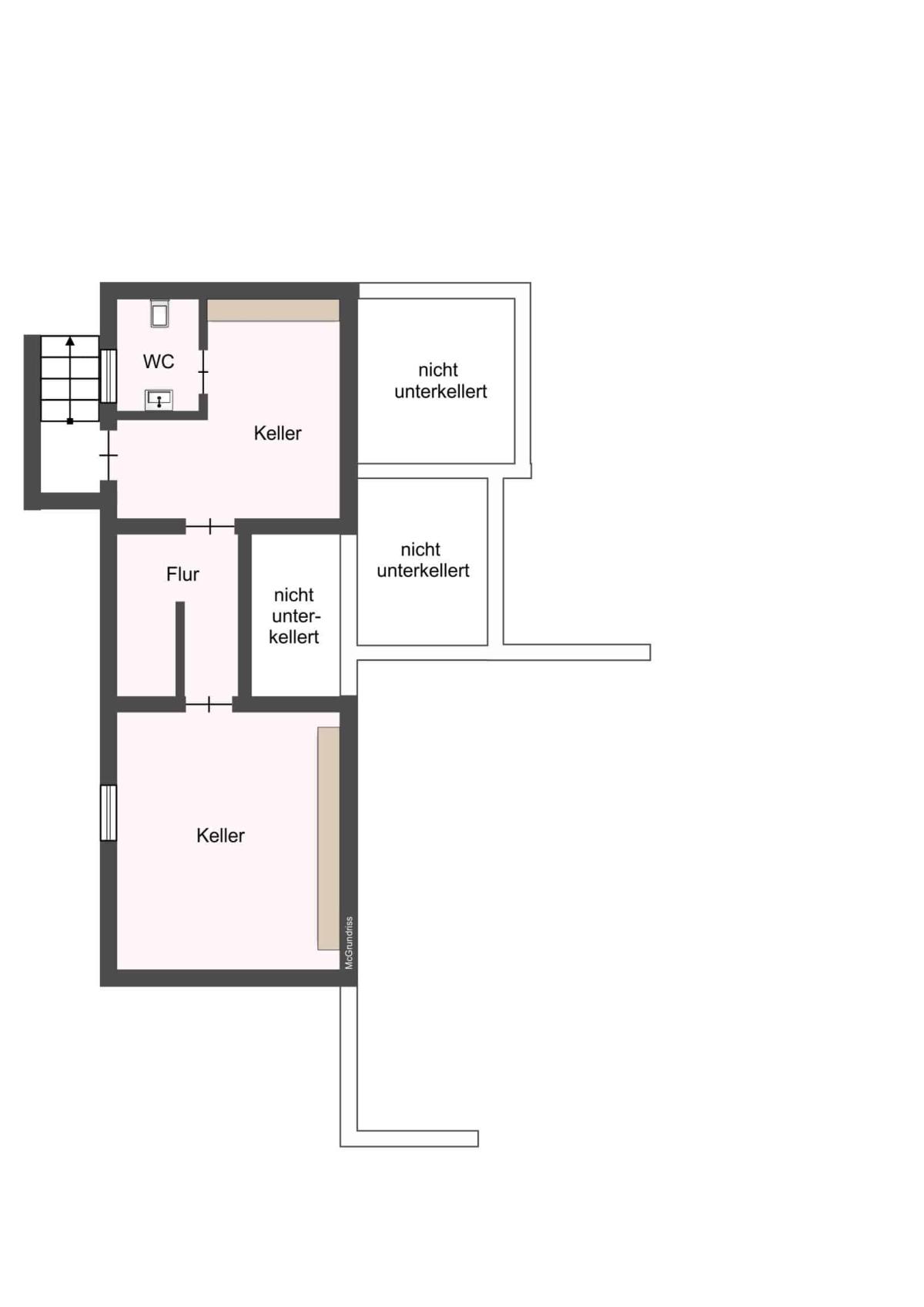
Keller
Einbauküche
Garage/­Stellplatz

Gemütliches Wohnhaus mit viel Platz im Garten

Anfragen bisher

Premium

Meine Chancen

Premium

Fairer Preis

Premium

250.000 €

Kaufpreis

106 m²

6 Zi.

Grundriss

56412 Heiligenroth

Gewerblicher Anbieter

Immobiliengesellschaft der Westerwald Bank mbH
Neumarkt 1-5
57627 Hachenburg

Details

Grundstücksfläche
591 m²
Zimmerzahl
6
Haustyp
Einfamilienhaus freistehend
Etagenzahl
2
Anzahl Schlafzimmer
4
Anzahl Badezimmer
1
Anzahl Garage/ Stellplatz
2
Objektzustand
Renoviert
Baujahr
1913

Kosten

Kaufpreis
250.000 €
Käuferprovision
3,57 %
Was kostet dein Umzug?

Stellplätze

Stellplatztyp
Freiplatz
Anzahl
1
Stellplatztyp
Garage
Anzahl
1

Objektbeschreibung

Wir stellen Ihnen hier ein 1913 erbautes Haus im Herzen von Heiligenroth vor, welches 1966 und ca. 1979 um Anbauten erweitert wurde. Diese Anbauten bieten einen Hauswirtschaftsraum und ein Gäste-WC, sowie eine hübsche Wohnküche, die direkten Zugang zum lichtdurchfluteten Esszimmer hat. Das Gebäude grenzt an zwei Seiten unmittelbar ans Nachbarhaus.
Das Haus ist klein aber fein: es bietet auf zwei Etagen ca. 106 m² Wohnfläche. Zusätzlich wurde der Spitzboden ausgebaut und verfügt über zwei weitere, recht niedrige Kinderzimmer. Die genaue Aufteilung entnehmen Sie bitte den beigefügten Grafiken.
Das Grundstück verläuft spitz nach hinten und bietet neben einer Doppelgarage für Fahrzeuge oder Hobbies eine Gartenhütte und Platz für die Kinder zum Spielen und Gärtnern.
Gerne stellen wir ihnen das Haus im Rahmen einer ausführlichen Besichtigung vor.


Bausubstanz & Energieausweis

A+

A

B

C

D

E

F

G

246,99 kWh/(m²*a)

H

Baujahr
1913
Objektzustand
Renoviert
Wesentlicher Energieträger
Erdgas leicht
Heizungsart
Zentralheizung
Energieausweis
liegt vor
Energieausweistyp
Bedarfsausweis
Ausstellungsdatum
03.02.2026
Gültig bis
03.02.2036
Energieeffizienzklasse
G
Endenergiebedarf
246,99 kWh/(m²*a)

Ausstattung

Bruchsteinkeller, Fachwerk, Fassade verklinkert 1989 (hinterlüftet), Fenster aus Kunststoff, zweifach verglast 1998-2005 , Badsanierung 1998, Erneuerung der Elektrik und Sanitärinstallation 1998, Gastherme 2003, Zimmertüren und Haustür aus Holz 2003 erneuert, Erneuerung der Dacheindeckung und Gauben mit Blechpfannen 2005, Dachdämmung mit Glaswolle, Fußböden in Vinyl, Fliesen, Dielen, Kork und Laminat. Glasfaseranschluss im Haus.


Lagebeschreibung

Heiligenroth ist eine Ortsgemeinde im Westerwaldkreis in Rheinland-Pfalz. Sie gehört der Verbandsgemeinde Montabaur an. Kindergarten und Grundschule befinden sich im Ort, alle weiterführenden Schulen liegen im ca. 3 km entfernten Montabaur. Neben einer Bäckerei, Metzgerei und Frisörsalon liegen alle weiteren Geschäfte des täglichen Bedarfs im angrenzenden Industriegebiet Heiligenroth. Hier finden Sie einen Baumarkt, Möbelfachmarkt, Drogeriemarkt, Outdoorgeschäft, Schuhgeschäft, Boutiquen, Restaurants, Lebensmitteldiscounter…
Durch die verkehrsgünstige Lage am Autobahnanschluss der A3 in Montabaur und den ICE Bahnhof erreichen Sie die Zentren Frankfurt und Köln in weniger als 45 Minuten.
https://www.heiligenroth.de/


Wohnung finden so einfach wie möglich - das ist unsere Mission!

Kostenlose Basic Features

0 € monatlich


  • Individuelles Such-Profil anlegen
  • Suchaufträge speichern
  • One-Klick Kontaktaufnahme

alles anzeigen

Jetzt kostenlos anmelden

Premium Features

19,99 € monatlich


  • Alle kostenlosen Features
  • Smart-Alarm per Whatsapp
  • Deine Chancen checken
  • Wohngegend analysieren

alles anzeigen

Jetzt Premium freischalten

Gewerblicher Anbieter

Immobiliengesellschaft der Westerwald Bank mbH
Neumarkt 1-5
57627 Hachenburg

Wohnglück-ID:
Objekt-Nr.:
WGL-1063296
4 189 3