Etagenwohnung in Pansdorf

Balkon/­Terrasse
Garten/­-mitbenutzung
Einbauküche
Garage/­Stellplatz

Schöner Wohnen auf 2 Ebenen + Garten

Anfragen bisher

Premium

Meine Chancen

Premium

Fairer Preis

Premium

395.000 €

Kaufpreis

130 m²

4 Zi.

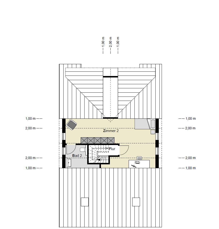
Grundriss

23689 Pansdorf

Gewerblicher Anbieter

S-Immobiliengesellschaft Holstein mbH & Co. KG
Strandallee 75a
23669 Timmendorfer Strand

Details

Zimmerzahl
4
Wohnungstyp
Etagenwohnung
Bezugsfrei ab
nach Absprache
Anzahl Badezimmer
2
Anzahl Garage/ Stellplatz
1
Objektzustand
Gepflegt
Baujahr
2016

Kosten

Kaufpreis
395.000 €
Käuferprovision
3,57 %
Was kostet dein Umzug?

Stellplätze

Stellplatztyp
Carport
Anzahl
1

Objektbeschreibung

Diese aparte 4-Zimmer-Eigentumswohnung (ca. 130 m²) befindet sich in einer ruhigen und idyllischen Lage in Pansdorf. Ideal für Familien oder Paare, die viel Platz und Komfort suchen.
Die großzügige Wohnung erstreckt sich über zwei Ebenen im Obergeschoss und Dachgeschoss eines attraktiven Zweifamilienhauses und bietet jede Menge Raum und Flexibilität für individuelle Wohn-und Gestaltungskonzepte. Zwei moderne Tageslichtbäder mit Wanne und Dusche, die helle Einbauküche sowie der Balkon und der eigene Garten in Süd-West Ausrichtung runden das Gesamtbild dieses interessanten Immobilienangebots harmonisch ab.
Ein Carport ist im Kaufpreis enthalten.
Nutzen Sie die Gelegenheit und entdecken Sie die Besonderheiten dieser außergewöhnlichen Immobilie.
Gerne vereinbaren wir mit Ihnen einen unverbindlichen Besichtigungstermin.


Ansprechpartner für dieses Objekt:
Frank Hill / Katja-A. Kewitz
04531 / 508-75791 oder -75792
Mobil 0151 / 122 122 06


Energieausweis: Bedarfsausweis 64 kWh(m²a) Gas, Bj. 2016, B


Bausubstanz & Energieausweis

A+

A

B

64 kWh/(m²*a)

C

D

E

F

G

H

Baujahr
2016
Objektzustand
Gepflegt
Wesentlicher Energieträger
Fernwärme
Heizungsart
Zentralheizung
Befeuerung
Fernwärme
Energieausweis
liegt vor
Energieausweistyp
Bedarfsausweis
Ausstellungsdatum
14.07.2016
Gültig bis
13.07.2026
Energieeffizienzklasse
B
Endenergiebedarf
64 kWh/(m²*a)

Ausstattung

Kleine Wohneinheit mit nur zwei Einheiten, daher keine mtl. Wohngeldzahlungen
Zwei Wohnebenen
Eigener Garten und Balkon in S/W Ausrichtung
Einbauküche
Zwei Tageslichtbäder mit Dusche und Wanne
Carport


Lagebeschreibung

Die Ortschaft Pansdorf gehört zur Gemeinde Ratekau, die wiederum mit rund 15.000 Einwohnern zu den Großgemeinden im Kreis Ostholstein zählt. Sie umfasst eine Fläche von rund 60 qkm sowie 13 Dorfschaften. Pansdorf verfügt über eine umfassende Infrastruktur in allen Bereichen des täglichen Lebens und hat insbesondere durch ihr Engagement im Bereich des Umweltschutzes Anerkennung auf Landesebene gefunden.


Bedingt durch die angrenzende Lage / Nähe zu den Gemeinden Timmendorfer Strand und Scharbeutz sowie zur Hansestadt Lübeck hat sich die Gemeinde Ratekau als staatlich anerkannter Erholungsort mit zahlreichen Einrichtungen sowohl auf die Funktion als
Naherholungsgebiet als auch auf dem zunehmenden Tourismus eingestellt.


Wohnung finden so einfach wie möglich - das ist unsere Mission!

Kostenlose Basic Features

0 € monatlich


  • Individuelles Such-Profil anlegen
  • Suchaufträge speichern
  • One-Klick Kontaktaufnahme

alles anzeigen

Jetzt kostenlos anmelden

Premium Features

19,99 € monatlich


  • Alle kostenlosen Features
  • Smart-Alarm per Whatsapp
  • Deine Chancen checken
  • Wohngegend analysieren

alles anzeigen

Jetzt Premium freischalten

Gewerblicher Anbieter

S-Immobiliengesellschaft Holstein mbH & Co. KG
Strandallee 75a
23669 Timmendorfer Strand

Wohnglück-ID:
Objekt-Nr.:
WGL-1027897
25-9325