Hallen / Lager / Produktion in Berlin (Mariendorf)

Gäste WC
 

Anfragen bisher

Premium

Meine Chancen

Premium

Fairer Preis

Premium

3.161 €

Kaltmiete

12107 Berlin

Gewerblicher Anbieter

Amelia-Immobilien
Lietzenburgerstraße 107
10707 Berlin

Details

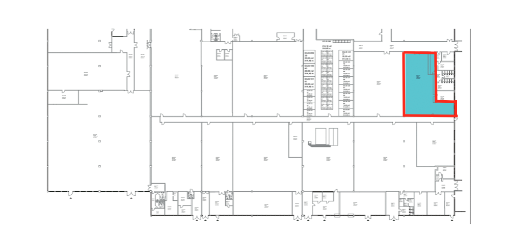
Lagerfläche
340,31 m²
Typ der Gewerbeimmobilie
Hallen / Lager / Produktion

Kosten

Kaltmiete
3.161 €
Nebenkosten
1.123 €
Was kostet dein Umzug?

Bausubstanz & Energieausweis

Wesentlicher Energieträger
Fernwärme
Heizungsart
Fernwärme
Befeuerung
Fernwärme
Energieausweis
liegt vor
Energieausweistyp
Verbrauchsausweis

Wohnung finden so einfach wie möglich - das ist unsere Mission!

Kostenlose Basic Features

0 € monatlich


  • Individuelles Such-Profil anlegen
  • Suchaufträge speichern
  • One-Klick Kontaktaufnahme

alles anzeigen

Jetzt kostenlos anmelden

Premium Features

19,99 € monatlich


  • Alle kostenlosen Features
  • Smart-Alarm per Whatsapp
  • Deine Chancen checken
  • Wohngegend analysieren

alles anzeigen

Jetzt Premium freischalten

Gewerblicher Anbieter

Amelia-Immobilien
Lietzenburgerstraße 107
10707 Berlin

Wohnglück-ID:
Objekt-Nr.:
WGL-1007781
WE-JK-273