Etagenwohnung in Gronau

Aufzug
Balkon/­Terrasse
Gäste WC
Keller
Garage/­Stellplatz

Zwischen Stadt und Natur - Moderne Eigentumswohnung(en) am LAGA-Gelände in Gronau

Anfragen bisher

Premium

Meine Chancen

Premium

Fairer Preis

Premium

467.830 €

Kaufpreis

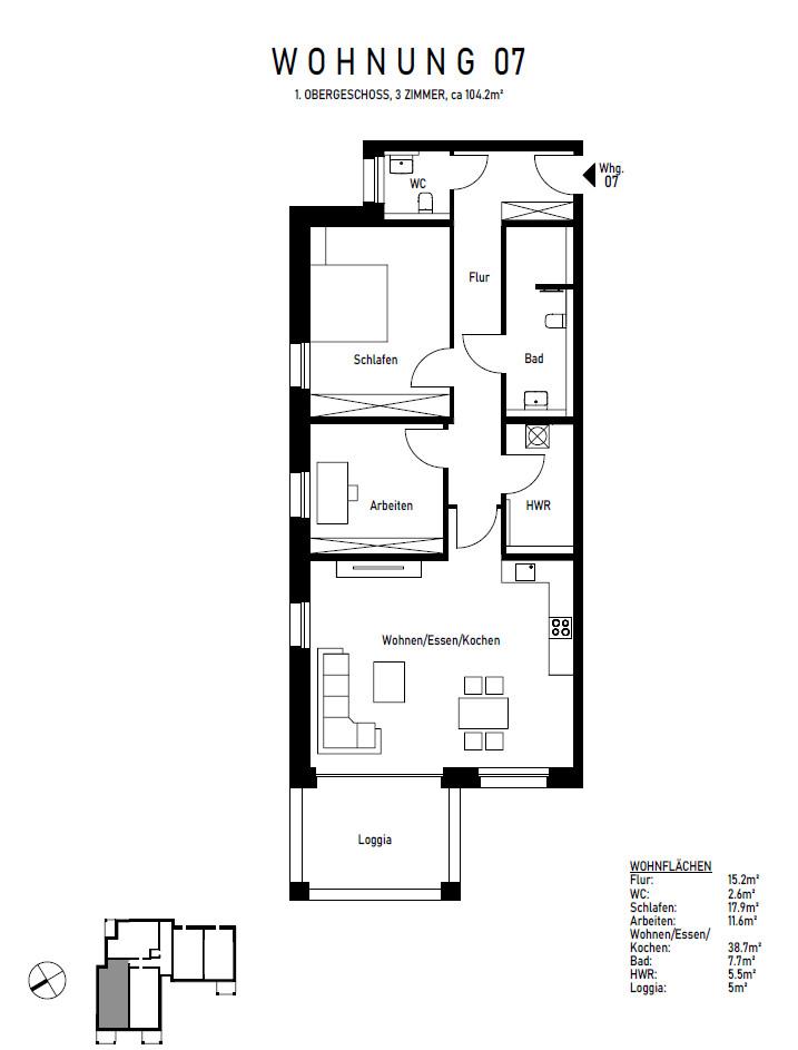
104,2 m²

3 Zi.

1. OG

Grundriss

48599 Gronau

Gewerblicher Anbieter

Volksbank Gronau-Ahaus Immobilien GmbH
Neustraße 42-46
48599 Gronau

Details

Zimmerzahl
3
Wohnungstyp
Etagenwohnung
Etage, Geschoss
1
Anzahl Schlafzimmer
2
Anzahl Badezimmer
1
Anzahl Garage/ Stellplatz
1
Objektzustand
Erstbezug
Baujahr
2025

Kosten

Kaufpreis
467.830 €
Käuferprovision
Keine
Was kostet dein Umzug?

Stellplätze

Stellplatztyp
Tiefgarage
Anzahl
1

Objektbeschreibung

Direkt am Gelände der Landesgartenschau entsteht ein neues Projekt. Modernes Design trifft auf kreative Architektur und fügt sich harmonisch in die grüne und ruhige Umgebung ein. Genießen Sie eine perfekte Lage, ein stilvolles Ambiente und großzügige Wohnkonzepte, die höchste Wohnqualität versprechen.


Das Gebäude umfasst eine Tiefgarage, ein Erdgeschoss, zwei Obergeschosse sowie ein elegantes Staffelgeschoss. Bodentiefe Fenster sorgen für helle, lichtdurchflutete Räume und schaffen eine angenehme und freundliche Atmosphäre. Die Wohnungen überzeugen mit modernen Grundrissen, hochwertigen Fliesenböden und einer zeitgemäßen Ausstattung.


Die ruhige, naturnahe Lage direkt am LAGA-Gelände lädt zum Spazieren, Entspannen und Verweilen ein. Gleichzeitig profitieren Sie von einer ausgezeichneten Anbindung an die Innenstadt, Einkaufsmöglichkeiten, Schulen und Freizeitmöglichkeiten. Hier wohnen Sie in einem Umfeld, das Naturverbundenheit und urbanen Komfort auf ideale Weise verbindet.


Bausubstanz & Energieausweis

Objektzustand
Erstbezug
Heizungsart
Fußbodenheizung
Befeuerung
Wärmepumpe

Lagebeschreibung

Gronau liegt direkt an der niederländischen Grenze und bietet dadurch eine ideale Mischung aus deutscher und niederländischer Lebensweise. Mit rund 50.000 Einwohnern vereint die Stadt eine ausgezeichnete Infrastruktur mit einem hohen Freizeit- und Erholungswert.
Gronau verfügt über eine hervorragende Verkehrsanbindung. Die Autobahnen A31 und A30 sind schnell erreichbar, was Pendlern eine gute Anbindung an das Ruhrgebiet und das Münsterland ermöglicht. Zudem bietet der Bahnhof Gronau direkte Zugverbindungen nach Münster und in die Niederlande, insbesondere nach Enschede, das nur wenige Kilometer entfernt liegt. Im Stadtgebiet gibt es zahlreiche Einkaufsmöglichkeiten, darunter Supermärkte, Fachgeschäfte und Restaurants, die eine abwechslungseiche Nahversorgung sicherstellen. Ärzte, Apotheken und medizinische Einrichtungen sind ebenfalls gut erreichbar.
Die Stadt liegt in einer landschaftlich reizvollen Umgebung mit vielen Grünflächen und Erholungsmöglichkeiten. Der nahe gelegene Drilandsee ist ein beliebtes Ausflugsziel für Wassersportler, Spaziergänger und Radfahrer. Der Stadtpark und zahlreiche Wander- und Radwege machen Gronau zu einem attraktiven Wohnort für Naturliebhaber. Außerdem ist Gronau bekannt für sein Rock´n´Pop-Museum, das Musikfans aus der gesamten Region anzieht. Zahlreiche Veranstaltungen, Konzerte und lokale Feste sorgen für ein lebendiges kulturelles Angebot. Schulen aller Schulformen, Kindergärten und eine Volkshochschule runden das Bildungsangebot ab.


Sonstige Angaben

Sie interessieren sich für dieses Angebot?


Bitte nehmen Sie Kontakt zu uns auf, falls Sie weitere Informationen oder ein persönliches Beratungsgespräch wünschen.


Alle Angaben sind nach bestem Wissen und Gewissen gemacht. Der Makler haftet nicht für Irrtümer oder Schreibfehler. Dieses Exposé ist eine Vorabinformation, als Rechtsgrundlage gilt der abgeschlossene Kaufvertrag. Wir freuen uns auf Ihre Kontaktaufnahme.


Wohnung finden so einfach wie möglich - das ist unsere Mission!

Kostenlose Basic Features

0 € monatlich


  • Individuelles Such-Profil anlegen
  • Suchaufträge speichern
  • One-Klick Kontaktaufnahme

alles anzeigen

Jetzt kostenlos anmelden

Premium Features

19,99 € monatlich


  • Alle kostenlosen Features
  • Smart-Alarm per Whatsapp
  • Deine Chancen checken
  • Wohngegend analysieren

alles anzeigen

Jetzt Premium freischalten

Gewerblicher Anbieter

Volksbank Gronau-Ahaus Immobilien GmbH
Neustraße 42-46
48599 Gronau

Wohnglück-ID:
Objekt-Nr.:
WGL-653957
8047_7