Wohnung in Rosenfeld (Heiligenzimmern)

Balkon/­Terrasse
Garten/­-mitbenutzung
Keller
Garage/­Stellplatz
WG geeignet

Helle 3,5 Zimmer Wohnung 1. OG mit Balkon, Stellplatz, Garten in 72348 Rosenfeld Heiligenzimmern ab sofort zu vermieten

Anfragen bisher

Premium

Meine Chancen

Premium

Fairer Preis

Premium

695 €

Kaltmiete

98 m²

3,5 Zi.

1. OG

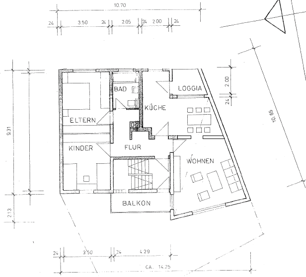
Grundriss

72348 Rosenfeld

Privater Anbieter

Details

Zimmerzahl
3,5
Immobilienart
Wohnung
Etage, Geschoss
1
Etagenzahl
2
Bezugsfrei ab
sofort
Anzahl Schlafzimmer
2
Anzahl Badezimmer
1
Anzahl Garage/ Stellplatz
1
Objektzustand
Modernisiert
Baujahr
1978

Kosten

Kaltmiete
695 €
Nebenkosten
200 €
Heizkosten sind in Nebenkosten enthalten
Kaution
2.085 €
Was kostet dein Umzug?

Stellplätze

Stellplatztyp
Freiplatz
Anzahl
1

Objektbeschreibung

Ab Sofort verfügbar, nutzen Sie z.B. die Weihnachtsferien für ihren Umzug in diese helle 3,5 Zimmer Wohnung im Herzen von Rosenfeld-Heiligenzimmern (zentral und dennoch ruhig gelegen).



Die Hauptwohnung im 1. Stock eines 3-Familienhauses mit ca. 98 m² besteht aus 2 Schlafzimmern (natürlich auch als Homeoffice etc. nutzbar), einem großen Wohnzimmer, einer großen Küche die zum Esszimmer hin offen ist, ein kleiner Wintergarten / verglaste Loggia, einem großen Balkon ein Geräumiges Bad mit Badewanne und Duschkabine und eine Flur mit Garderobennische und Einbauschrank.



Ein PKW-Stellplatz ist im Mietpreis enthalten, Gartenmitbenutzung ist ebenfalls möglich, ein Kellerteil steht ebenfalls zur Verfügung.


Das Grundstück befindet sich auf einem Plateau ca 4-5 m über der Hauptstraße, wodurch sich ein toller Ausblick über den ganzen Ort ergibt, das Grundstück selbst ist aber eben und durch eine Anliegerstraße eben erschlossen.



Das Haus wurde in den letzten Jahren auch energetisch saniert, der großzügig Schnitt der Hauptwohnung wurde beibehalten, DVB-S2 Sat-TV ist in allen Zimmern verfügbar, schnelles DSL ist ebenfalls bei verschiedenen Anbietern verfügbar, Haustürsprechanlage vorhanden.



In der Küche sind alle Anschlüsse für eine Einbauküche vorhanden (inkl Spülmaschine, Waschmaschine etc., Waschmaschine kann alternativ auch im EG aufgestellt werden).



Im Haus herrscht bisher die Absprache, dass nicht im Haus geraucht wird, das sollte so auch weiterhin gehalten werden (Balkon, großer Garten etc. ist ja vorhanden).


Auch wenn die Wohnung bisher haustierfrei war schließe ich das nicht grundsätzlich aus, bei Fragen dazu sollten Sie aber schon konkret wissen, um welche Tierart und wieviel Tiere es geht, die unspezifische Frage "Sind Tiere erlaubt" kann ich so nicht beantworten, da eine einzelne Giraffe ganz andere Anforderungen an eine Wohnung stellt als eine Hundezucht mit 101 Dalmatinern (für beide genannten Beispiele wäre diese Wohnung eher ungeeignet). ;-)



Bei Fragen einfach melden.



Besichtigung nach Vereinbarung.



Die Bilder sind leider in schlechter Qualität während der Abenddämmerung aufgenommen, die Bodenbeläge wurden nachdem die Bilder gemacht wurden erneuert, in Küche und Bad sind noch die Fliesen, in allen anderen Zimmern Laminat in Eiche polarweis wie im Kinderzimmer wodurch die Räume noch heller und ansprechender wurden.



Entfernung Dorfladen/Mühlenladen ca. 200 m, Backhaus ca. 50m, Kirche ca. 100m, Kindergarten ca. 200m, Briefkasten ca. 50m.



Angaben EnEV: BjG 1977, BjW 1999, ET Öl, EA B, EB 49,82, Energiebedarfsklasse A



KM 750 €, NK (inkl. Heizkosten) 200 €, Kaution: 3 Nettokaltmieten

Kontakt gerne auch per E-Mail an die.vermietung (at) web.de
Bitte teilen Sie Ihren Namen, Telefonnummer, Anzahl der einziehenden Personen, ggf. Haustiere mit, gerne auch Ihr Alter und Beruf.

Bausubstanz & Energieausweis

A+

A

49,82 kWh/(m²*a)

B

C

D

E

F

G

H

Baujahr
1977
Objektzustand
Modernisiert
Wesentlicher Energieträger
OEL
Heizungsart
Zentralheizung
Energieausweis
liegt vor
Energieausweistyp
Bedarfsausweis
Ausstellungsdatum
20.01.2017
Gültig bis
20.01.2027
Energieeffizienzklasse
A
Endenergiebedarf
49,82 kWh/(m²*a)

Wohnung finden so einfach wie möglich - das ist unsere Mission!

Kostenlose Basic Features

0 € monatlich


  • Individuelles Such-Profil anlegen
  • Suchaufträge speichern
  • One-Klick Kontaktaufnahme

alles anzeigen

Jetzt kostenlos anmelden

Premium Features

19,99 € monatlich


  • Alle kostenlosen Features
  • Smart-Alarm per Whatsapp
  • Deine Chancen checken
  • Wohngegend analysieren

alles anzeigen

Jetzt Premium freischalten

Privater Anbieter

Wohnglück-ID:
Objekt-Nr.:
WGL-892322