Einfamilienhaus freistehend in Sankt Wendel (Winterbach)

Garten/­-mitbenutzung
Keller
Garage/­Stellplatz

Gepflegtes und teilmodernisiertes Wohnhaus mit Garagen & Garten in St. Wendel-Citynähe!

Anfragen bisher

Premium

Meine Chancen

Premium

Fairer Preis

Premium

279.000 â‚¬

Kaufpreis

210 m²

8 Zi.

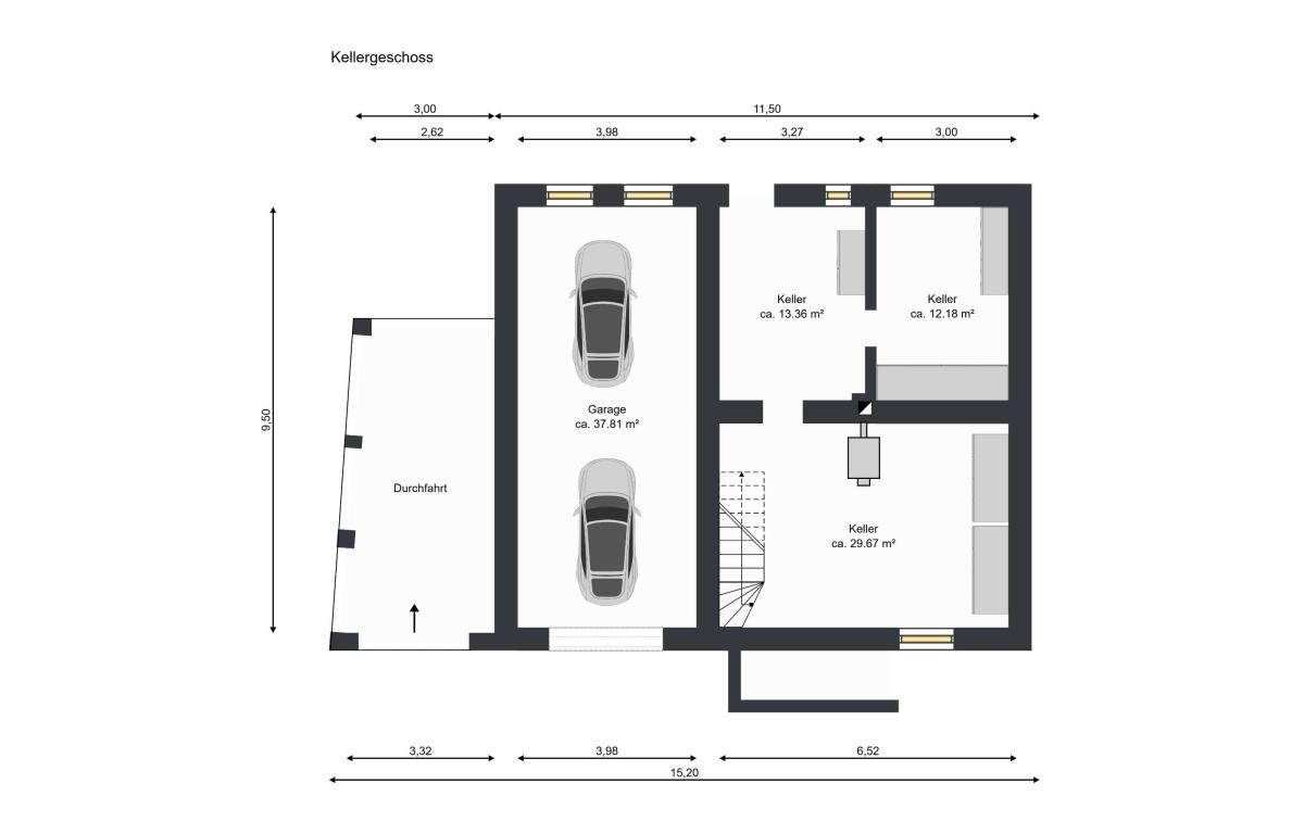
Grundriss

66606 St. Wendel

Gewerblicher Anbieter

Bank 1 Saar Immobilien GmbH
Kaiserstr. 17-19
66111 SaarbrĂĽcken

Details

Grundstücksfläche
491 m²
Zimmerzahl
8
Haustyp
Einfamilienhaus freistehend
Anzahl Badezimmer
2
Anzahl Garage/ Stellplatz
1
Objektzustand
Gepflegt
Letzte Modernisierung/ Sanierung
2014
Baujahr
1965

Kosten

Kaufpreis
279.000 €
Käuferprovision
3,57 %
Was kostet dein Umzug?

Stellplätze

Stellplatztyp
Freiplatz
Anzahl
3

Objektbeschreibung

Lassen Sie sich begeistern von diesem vielseitig nutzbaren Zuhause fĂĽr Familien, Mehrgenerationen oder zum Wohnen & Arbeiten unter einem Dach!


Diese gepflegte und liebevoll modernisierte Doppelhaushälfte in St. Wendel–Winterbach verbindet historischen Charme mit zeitgemäßer Wohnqualität. Das Haus blickt auf eine lange Geschichte zurück: Ursprünglich um ca. 1900 als landwirtschaftliche Scheune mit Stallungen errichtet, erfolgte 1965 ein umfassender Umbau zum Wohnhaus bzw. Zweifamilienhaus. Heute präsentiert sich das Gebäude als einladendes Einfamilienhaus mit zwei Wohneinheiten, das zahlreiche Nutzungsmöglichkeiten eröffnet – ideal für große Familien, als Mehrgenerationenhaus oder als Kombination aus Wohnen und Arbeiten oder auch Vermieten.


Dank laufender Pflege und regelmäßiger Modernisierungen befindet sich die Immobilie in einem sehr guten und sofort beziehbaren Zustand.


Mit einer gesamten Wohnfläche von ca. 210 m² bietet das Haus folgende Aufteilung:


Erdgeschoss mit ca. 110 m² Wohnfläche:
Diele, KĂĽche (inklusive EinbaukĂĽche), Esszimmer mit Zugang zum Garten, Wohnzimmer mit Kamin, Flur, 2 Schlafzimmer, groĂźes Bad, Abstellraum, Loggia


Obergeschoss mit ca. 110 m² Wohnfläche:
Diele, KĂĽche (exklusive EinbaukĂĽche), Esszimmer mit Zugang zum Garten, Wohnzimmer mit Kamin, Flur, 2 Schlafzimmer, groĂźes Bad, Abstellraum, Loggia


Darüber hinaus ist das Gebäude unterkellert und bietet ausreichend Stau- und Lagerfläche im Untergeschoss.


Folgende Modernisierungen sind in den letzten Jahren erfolgt:
2025 Neue HaustĂĽr
2023 Erneuerung der Heizungsanalage
2024 und 2017/18 Teilerneuerung der Fenster: Kunststoffrahmen mit Doppelverglasung, Ăśbrige Fenster: Holzrahmen mit Doppelverglasung, Baujahr 2007
2014 wurden umfassende Renovierungsarbeiten durchgeführt. So wurde in diesem Jahr beispielsweise die Elektrik im Erdgeschoss umfassend sowie wie die Bodenbeläge zum Teil erneuert.
Die Bäder wurden vorher bereits einmal saniert, die Villeroy & Boch-Toiletten wurden ebenfalls 2014 erneuert
Die Dacheindeckung mit Ziegeln wurde sichtlich mal erneuert; das Alter der Erneuerung ist nicht bekannt.


Die neue und moderne Heizungsanlage unterstützt von jeweils einem Kaminofen in jeder Wohnetage garantiert effizientes Heizen und möglichst geringe Heizkosten.


Fazit:
Diese Doppelhaushälfte in St. Wendel–Winterbach ist ein außergewöhnliches Angebot für alle, die ein flexibles Zuhause mit Geschichte und Charme suchen. Das Haus verbindet die Wärme traditioneller Bauweise mit modernisiertem Wohnkomfort und bietet dank seiner zwei separaten Wohnungen vielfältige Nutzungsformen. Ob große Familie, Mehrgenerationenmodell oder Mieterträge – hier sind alle Optionen offen.
Einziehen, wohlfühlen und langfristig profitieren: Dieses Objekt ist eine wertbeständige Immobilie in hervorragender Wohnlage.


Ăśberzeugen Sie sich selbst von den VorzĂĽgen dieses ansprechenden und einmaligen Angebots und vereinbaren Sie noch heute einen Besichtigungstermin!
Wir freuen uns auf Ihre Kontaktaufnahme!
Bank1Saar Immobilien GmbH - Ihr Immobilienspezialist im Saarland


Bausubstanz & Energieausweis

A+

A

B

C

D

E

F

172,8 kWh/(m²*a)

G

H

Baujahr
1965
Objektzustand
Gepflegt
Letzte Modernisierung
2014
Wesentlicher Energieträger
Ă–l
Heizungsart
Zentralheizung
Befeuerung
Ă–lheizung
Energieausweis
liegt vor
Energieausweistyp
Bedarfsausweis
Ausstellungsdatum
21.11.2025
GĂĽltig bis
20.11.2035
Energieeffizienzklasse
F
Endenergiebedarf
172,8 kWh/(m²*a)

Ausstattung

Parken:
Zum Parken stehen zwei Garagen direkt am Haus sowie ein AuĂźenstellplatz vor dem Haus zur VerfĂĽgung.


AuĂźenanlagen:
Hinter dem Haus erwartet Sie ein schönes Gartengrundstück in angenehmer Größe.
Der gepflegte Garten bietet viel Gestaltungsspielraum und ausreichend Platz für ausgelassene Gartenfeste mit Familie und Freunde, zum Spielen und Toben für Kinder und Haustiere oder zur Schaffung Ihrer ganz persönlichen Ruhe-Oase.


Lagebeschreibung

Zentrale Wohnlage in St-Wendel-Winterbach in City-Nähe!


Die Immobilie befindet sich im beliebten St. Wendeler Stadtteil Winterbach, einer der begehrtesten Wohnlagen der Region. Winterbach überzeugt durch seine ideale Kombination aus naturnahem Wohnen, familienfreundlicher Umgebung und hervorragender Anbindung an die Kreisstadt St. Wendel sowie an umliegende Zentren. Die Nähe zur City macht den Standort besonders attraktiv.


Zentrale Wohnlage
Winterbach liegt nur wenige Fahrminuten vom St. Wendeler Stadtzentrum entfernt und bietet dennoch die Ruhe eines gewachsenen, dörflichen Wohngebiets. Die Nachbarschaft ist geprägt von gepflegten Einfamilienhäusern, gut erhaltenen Altbauten und modernen Wohnstrukturen. Das Umfeld gilt als freundlich, sicher und ideal für Familien, Paare und Menschen, die ein ausgewogenes Wohnumfeld schätzen.


Ausgezeichnete Infrastruktur direkt vor Ort
Der Ort verfĂĽgt ĂĽber eine sehr gute Grundversorgung:
• Bäcker, Metzger, kleinere Geschäfte und Dienstleister sind bequem erreichbar.
• Ärzte, Apotheken, Supermärkte und Banken befinden sich im nahen Umfeld und in St. Wendel.
• Kindergarten und Grundschule sind im Ort vorhanden – kurze Wege, die den Alltag erleichtern.
• Weiterführende Schulen, Sportanlagen, Freizeitangebote und kulturelle Einrichtungen liegen im nahegelegenen St. Wendel.
Für größere Einkäufe oder besondere Dienstleistungen stehen St. Wendel, Neunkirchen, Homburg oder Ottweiler in kurzer Distanz zur Verfügung.


Sehr gute Verkehrsanbindung
Winterbach bietet eine schnelle und unkomplizierte Verkehrsanbindung in alle Richtungen:
• Wenige Minuten bis ins Zentrum von St. Wendel
• Gute Anbindung an die B41 sowie die Autobahnen Richtung Saarbrücken, Trier, Kaiserslautern und Luxemburg
• Bahnhof St. Wendel mit direkten Verbindungen nach Saarbrücken, Frankfurt und Mannheim
• ÖPNV-Anbindung über regelmäßige Buslinien
Damit eignet sich die Lage sowohl für Berufspendler als auch für Menschen, die zentral wohnen möchten, ohne auf Ruhe zu verzichten.


Naturnähe & Freizeitwert
Winterbach ist umgeben von weitläufigen Wiesen, Feldern und Waldgebieten. Zahlreiche Wander- und Radwege, darunter Strecken des Saar-Hunsrück-Gebiets, beginnen praktisch vor der Haustür.
Beliebte Freizeit- und Erholungsangebote in der Umgebung sind unter anderem:


• Premiumwanderwege & Naturpfade
• Der als touristisches Highlight bekannte Bostalsee
• Sport- und Freizeiteinrichtungen in St. Wendel
• Reitmöglichkeiten, Angelplätze und Outdoor-Angebote


Auch kulturell bietet die Nähe zu St. Wendel zahlreiche Möglichkeiten: Feste, Märkte, Veranstaltungen, Gastronomie und vielfältige Sportevents.


Fazit:
Winterbach bietet somit eine gelungene Mischung aus städtischer Nähe und ländlichem Flair und zeichnet sich als beliebten Wohnort aus.


Wohnung finden so einfach wie möglich - das ist unsere Mission!

Kostenlose Basic Features

0 € monatlich


  • Individuelles Such-Profil anlegen
  • Suchaufträge speichern
  • One-Klick Kontaktaufnahme

alles anzeigen

Jetzt kostenlos anmelden

Premium Features

19,99 € monatlich


  • Alle kostenlosen Features
  • Smart-Alarm per Whatsapp
  • Deine Chancen checken
  • Wohngegend analysieren

alles anzeigen

Jetzt Premium freischalten

Gewerblicher Anbieter

Bank 1 Saar Immobilien GmbH
Kaiserstr. 17-19
66111 SaarbrĂĽcken

WohnglĂĽck-ID:
Objekt-Nr.:
WGL-873942
007174#eBkRJ