Wohn-Grundstück in Heilbronn

Aufzug
Balkon/­Terrasse
Garten/­-mitbenutzung
Keller
Garage/­Stellplatz
WG geeignet

*GENEHMIGT* Neubauvorhaben: 6-Familienhaus in der Nähe des KI-Zentrums! - FALC Immobilien Heilbronn

Anfragen bisher

Premium

Meine Chancen

Premium

Fairer Preis

Premium

400.000 €

Kaufpreis

300 m²

12 Zi.

Grundriss

74078 Heilbronn

Gewerblicher Anbieter

FALC Immobilien Heilbronn
Neckarsulmer Str. 2
74076 Heilbronn

Details

Grundstücksfläche
1.200 m²
Zimmerzahl
12
Typ des Grundstücks
Wohn-Grundstück
Etagenzahl
4
Bezugsfrei ab
Sofort / Nach Kaufpreiszahlung
Anzahl Garage/ Stellplatz
1
Objektzustand
Nach Vereinbarung

Kosten

Kaufpreis
400.000 €
Käuferprovision
5,95 % inkl. 19 % MwSt.
Weiteres zum Provisionshinweis siehe unter Punkt: Sonstiges im Exposé.
Was kostet dein Umzug?

Stellplätze

Stellplatztyp
Garage
Anzahl
6

Objektbeschreibung

Investoren aufgepasst: genehmigtes Bauverfahren - 6 Wohneinheiten auf einen Schlag!


Herr Andreas Franzke von FALC Immobilien Heilbronn, freut sich Ihnen diesen prachtvollen Bauplatz auf einer 1.200 m² Grundstücksfläche in unmittelbarer Nähe vom Neckar, der Heilbronner-City und des KI-Zentrums IPAI vorstellen zu dürfen.


Ob Einfamilien- oder Mehrfamilienhaus... auf diesem Bauplatz ist beides möglich!


Hier obliegt Ihnen bereits eine genehmigte Bauvergabe vor, die Ihnen ein Mehrfamilienhaus mit bis zu 6 Wohneinheiten und allen Extras bietet.


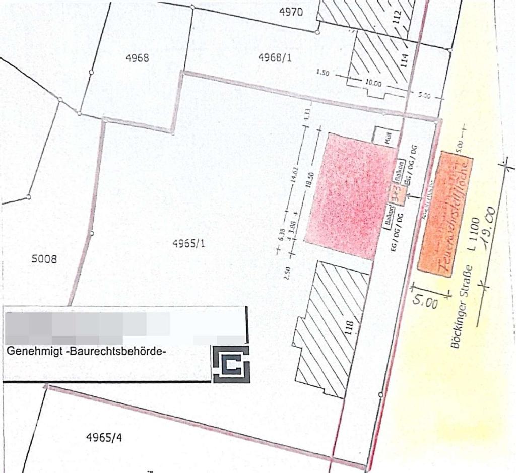
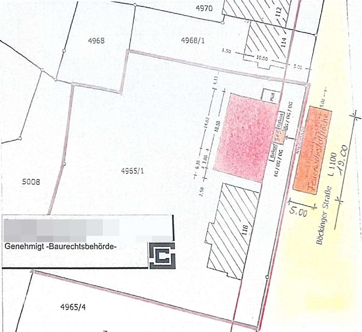
Die Baugenehmigung mit mögl. Aufteilungsplan umfasst:



  • 6-Familien-Haus á 2-Zimmer-Wohnungen mit Wohnungsnummer 1–6.

  • 2 Dachgauben im DG.

  • 12 Wohn- und Schlafzimmer.

  • 6 Sanitäranlagen.

  • 6 Balkone.

  • 6 Abstellräume.

  • Aufzug.

  • Gemeinschaftlicher Fahrrad-/Geräteraum und Waschküche.

  • 2 auffahrbare Duplex-Garagen mit insg. 8 Stellplätzen + 1 Garage.

  • ca. 300 m² Wohnfläche verteilt auf 3 Etagen (EG, OG, DG).

  • ca. 90 m² Nutzfläche verteilt im Untergeschoss.

  • Eingang, aufgrund Hanglage im Untergeschoss. Somit müssen Sie kein zusätzliches Kellergeschoss bauen.

  • Freizeit-Baumöglichkeit (z. B. Spielplatz oder Spielwiese) im hinteren Außenbereich.

  • sep. Müllsammelplatz.

  • Heizung: Wärmepumpensystem.


Derzeit steht eine Fertig-Garage auf dem Grundstück, die zum Abriss bereitsteht oder optional ein Einfamilienhaus angrenzend zur Garage gebaut werden kann. Somit sparen Sie sich die Kosten, die für eine Garage entstanden wären.


Das Bauvorhaben und die entsprechenden Genehmigungen wurden verlängert und sind weiterhin gültig.


In unserem Exposé finden Sie zudem optionale Grundrissvarianten für 3- oder 4-Zimmer-Wohnungen. Diese basieren auf einem unverbindlichen Entwurf und bedürfen noch der Genehmigung durch das zuständige Amt. Auch ein großzügiges Einfamilienhaus lässt sich auf diesem Grundstück ideal realisieren, ob als klassisches Eigenheim oder mit einer Einliegerwohnung. Ihnen stehen vielfältige Gestaltungsmöglichkeiten offen, die Sie ganz nach Ihren individuellen Vorstellungen umsetzen können.


Für Kapitalanleger bietet die genehmigte Variante aufgrund des Standorts und des Bauvorhabens ein besonders attraktives Renditepotenzial. Mit dem geplanten Wohnhaus sind durch die sechs 2-Zimmer-Wohnungen monatliche Mieteinnahmen von bis zu 6.000 EUR und mehr möglich. Um das Mietpotenzial weiter auszuschöpfen, eignen sich die Wohnungen zudem ideal für Wohngemeinschaften (WG-geeignet), wodurch sich weitere Ertragssteigerungen erzielen lassen. Durch das künftige KI-Zentrum ist vor allem am Standort Neckargartach Wohnraum gefragt!


Worauf warten Sie noch? Zögern Sie nicht den Traum Ihres Ein- oder Mehrfamilienhauses zu realisieren und schicken Sie uns JETZT eine Anfrage.


Bausubstanz & Energieausweis

Objektzustand
Nach Vereinbarung
Heizungsart
Sonstige
Energieausweis
Laut Gesetz nicht erforderlich

Ausstattung

Anderweitig bebaut werden, darf das Grundstück nach § 34 BauGB - wie Nachbarbebauung: Innerhalb der im Zusammenhang bebauten Ortsteile ist ein Vorhaben zulässig, wenn es sich nach Art und Maß der baulichen Nutzung, der Bauweise und der Grundstücksfläche, die überbaut werden soll, in die Eigenart der näheren Umgebung einfügt und die Erschließung gesichert ist.


Die Bebaubarkeit wird durch die bauplanungsrechtlichen Vorgaben der Ortsbausatzung in Verbindung mit dem maßgeblichen Baulinienplan geregelt. Es gelten hier die Bebauungspläne 39/10 und 40/12 sowie der Baulinienplan 39/4 der zust. Behörde.


Die im Exposé aufgeführten Daten beziehen sich auf die Merkmale der aktuell vorliegenden Baugenehmigung und den dazugehörigen Plänen.


Durch den Neubau können Sie zudem von aktuellen staatlichen Förderprogrammen, zinsgünstigen Krediten oder energetischen Zuschüssen profitieren. Ein weiterer Pluspunkt für den Bau Ihres neuen Eigenheims.


Sonstiges zum Beachten Ihres Bauvorhabens:



  • Eine Tiefe von 10 Metern muss eingehalten werden.

  • Eine Breite von circa 21 Metern ist erlaubt.

  • 5 Meter vor der Straße darf nicht gebaut werden.

  • Vergnügungsstätten sind allgemein unzulässig. Ausnahmsweise können hier Musik- und Tanzlokale mit einer Nutzfläche von maximal 100 m² zugelassen werden, wenn nachgewiesen wird, dass diese Vergnügungsstätten keine unzumutbare Störung im Sinne der Lärmimmissionen für die nähere Umgebung darstellen.


Lagebeschreibung

Das Grundstück in der befindet sich im Heilbronner Stadtteil Neckargartach, einer gewachsenen und sehr gut angebundenen Wohnlage im Herzen von Heilbronn. Der Stadtteil zeichnet sich durch eine angenehme Mischung aus ruhigem Wohnumfeld, naturnahen Bereichen und einer hervorragend ausgebauten Infrastruktur aus.


In der näheren Umgebung befinden sich zahlreiche Einkaufsmöglichkeiten, Schulen, Kindergärten sowie ärztliche Versorgung, wodurch der Standort besonders attraktiv für Familien und Berufstätige ist. Das SLK-Klinikum am Gesundbrunnen liegt nur wenige Minuten entfernt und bietet eine umfassende medizinische Versorgung.


Besonders hervorzuheben ist die Nähe zum entstehenden Innovationspark Künstliche Intelligenz (IPAI), einem der derzeit bedeutendsten Zukunftsprojekte in der Region Heilbronn. Dieses Technologie- und Forschungszentrum wird in den kommenden Jahren zahlreiche Unternehmen, Start-ups und Fachkräfte im Bereich der künstlichen Intelligenz anziehen und die wirtschaftliche Entwicklung des gesamten Umfeldes positiv beeinflussen. Dadurch gewinnt die Lage langfristig an Wert und vor allem an Perspektive.


Neckargartach bietet zudem eine sehr gute Verkehrsanbindung in alle Richtungen. Der öffentliche Nahverkehr ist gut ausgebaut und ermöglicht schnelle Verbindungen ins Heilbronner Stadtzentrum sowie zu umliegenden Stadtteilen. Über die umliegenden Hauptverkehrswege erreicht man die Autobahnen A6 und A81 in kurzer Zeit, was den Standort auch für Pendler attraktiv macht.


Insgesamt bietet das Grundstück eine ideale Kombination aus ruhiger Wohnlage, hervorragender Infrastruktur und einer wirtschaftlich vielversprechenden Zukunftsperspektive durch die Nähe zum KI-Zentrum und der Heilbronner-City.


Sonstige Angaben

Die Objektbeschreibung beruht ganz oder zum Teil auf Angaben des Eigentümers, der Text wurde teilweise mit Unterstützung künstlicher Intelligenz bearbeitet und überprüft. Für die Richtigkeit oder Vollständigkeit übernehmen wir keine Gewähr.


Beim ausgewiesenen Preis handelt es sich um den Angebotspreis, der sich durch Verhandlungen auch verändern kann. Bei diesem Objekt ist nicht vorgesehen, dass der Käufer mit uns eine eigenständige Provisionsvereinbarung trifft, sofern dieser als Verbraucher (§ 14 BGB) zu qualifizieren ist. Der Verkauf erfolgt nur an denjenigen, der sich bereit erklärt, die vom Verkäufer zugesagte Provision zu übernehmen. Dieser Anteil beträgt in diesem Fall 5,95 % inkl. gesetzliche MwSt. vom Kaufpreis und ist nach Abschluss des Kaufvertrages zur Zahlung fällig.


Vereinbaren Sie noch heute einen unverbindlichen Besichtigungstermin und überzeugen Sie sich selbst! Terminvorschläge an: heilbronn@falcimmo.de. Da wir die Termine für Besichtigungen mit größter Sorgfalt planen, bitten wir Sie um Verständnis dafür, dass Termine ausschließlich in schriftlicher Form per E-Mail vereinbart werden können. Um fair und gerecht gegenüber jedem unserer Interessenten zu werden, ist dies unumgänglich. Wir freuen uns über Ihre Kontaktaufnahme! Geben Sie bitte immer die vollständige ADRESSE und RUFNUMMER an!


Ihr Ansprechpartner: Andreas Franzke, heilbronn@falcimmo.de
Besuchen Sie uns auch in unserem Büro in: Neckarsulmer Str. 2, 74076 Heilbronn


Sie denken selbst über die Veräußerung Ihrer Immobilie nach oder möchten einfach nur wissen, was diese wert ist? Bei uns erhalten Sie kostenlos eine professionelle Wertermittlung! Gehen Sie hierzu auf: www.falcimmo.de/Das-ist-meine-Immobilie-wert.htm oder kontaktieren Sie uns.


Wohnung finden so einfach wie möglich - das ist unsere Mission!

Kostenlose Basic Features

0 € monatlich


  • Individuelles Such-Profil anlegen
  • Suchaufträge speichern
  • One-Klick Kontaktaufnahme

alles anzeigen

Jetzt kostenlos anmelden

Premium Features

19,99 € monatlich


  • Alle kostenlosen Features
  • Smart-Alarm per Whatsapp
  • Deine Chancen checken
  • Wohngegend analysieren

alles anzeigen

Jetzt Premium freischalten

Gewerblicher Anbieter

FALC Immobilien Heilbronn
Neckarsulmer Str. 2
74076 Heilbronn

Wohnglück-ID:
Objekt-Nr.:
WGL-868639
FALC-FlAb-77254