Wohnung in Stadtbergen

Balkon/­Terrasse
Dachboden
Garten/­-mitbenutzung
Keller
Einbauküche

Große 3-ZKB Wohnung - Stadtbergen Top Lage - 2 Garagen 2 Kellerräume

Anfragen bisher

Premium

Meine Chancen

Premium

Fairer Preis

Premium

490.000 €

Kaufpreis

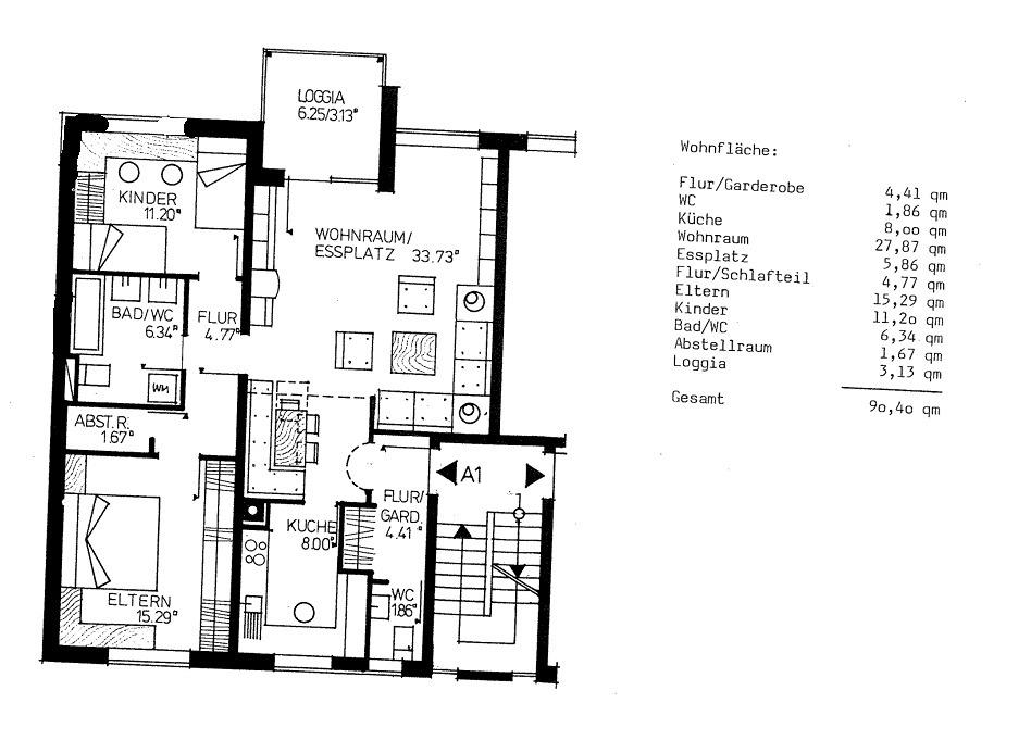
90,4 m²

3 Zi.

Grundriss

86391 Stadtbergen

Privater Anbieter

Details

Zimmerzahl
3
Immobilienart
Wohnung
Bezugsfrei ab
nach Vereinbarung
Baujahr
1980

Kosten

Kaufpreis
490.000 €
Was kostet dein Umzug?

Objektbeschreibung

Makleranfragen sind absolut unerwünscht und werden ignoriert.

Zum Verkauf steht eine stets sanierte Wohnung mit außergewöhnlich viel Platz in sehr begehrter Lage. Die Wohnung hat eine Größe von 90,4 m2. Ein Gäste WC, Speisekammer, sowie 2 Flure zur Abtrennung des Schlafbereiches sind vorhanden. Zur Wohnung gehören 2 große Kellerräume sowie 2 Tiefgaragenstellplätze. Einer davon ist eine separat abgeschlossene Garage in der bequem noch Fahrräder und Motorräder zusätzlich zum Auto untergebracht werden können. Die Raumhöhe der abgeschlossenen Garage inkl. der dort angebrachten Regale erlaubt die Lagerung von Reifen und vieles mehr.

Weiterhin gehört zur Wohnung ein großzügiger Dachboden Stellplatz in dem ebenfalls sehr viel gelagert werden kann. Die Wohnung bietet Stauraum wie ein Einfamilienhaus.

Die moderne Küche ist im Kaufpreis enthalten. Eine bequeme Loggia mit Markise und Seitenmarkise ebenfalls. Die Ausrichtung der Loggia ist nach Westen. Die Wohnanlage ist perfekt in Schuss und wird von der Hausverwaltung ständig auf dem neuesten Stand gehalten. Ein Glasfaseranschluss liegt im Haus an.

Weitere Fotos nach persönlicher Kontaktaufnahme.

Die Wohnung hat Randlage. Dennoch sind alle Einkaufsmöglichkeiten fußläufig erreichbar.

Aus logistischen Gründen finden Besichtigungen bevorzugt am Wochenende statt. Um einen Besichtigungstourismus zu vermeiden bitten wir Sie einen Finanzierungs- oder Kapitalnachweis zum Termin mitzubringen. Eine erste Kontaktaufnahme bitte über diese Plattform. Vielen Dank.

Alle Merkmale auf einen Blick:

  • Garten
  • Dachboden
  • Balkon/ Terrasse
  • 2 Keller
  • 2 Tiefgaragenparkplätze (1 davon große, abgeschl. Box)
  • Einbauküche

Bausubstanz & Energieausweis


Wohnung finden so einfach wie möglich - das ist unsere Mission!

Kostenlose Basic Features

0 € monatlich


  • Individuelles Such-Profil anlegen
  • Suchaufträge speichern
  • One-Klick Kontaktaufnahme

alles anzeigen

Jetzt kostenlos anmelden

Premium Features

19,99 € monatlich


  • Alle kostenlosen Features
  • Smart-Alarm per Whatsapp
  • Deine Chancen checken
  • Wohngegend analysieren

alles anzeigen

Jetzt Premium freischalten

Privater Anbieter

Wohnglück-ID:
Objekt-Nr.:
WGL-844624