Einfamilienhaus freistehend in Landau an der Isar

Balkon/­Terrasse
Dachboden
Einbauküche
Garage/­Stellplatz

fantastische Hofstelle vor den Toren Landau's - Pferdeliebhaber und naturverbundene Menschen aufgepasst!

Anfragen bisher

Premium

Meine Chancen

Premium

Fairer Preis

Premium

1.250.000 €

Kaufpreis

229 m²

8 Zi.

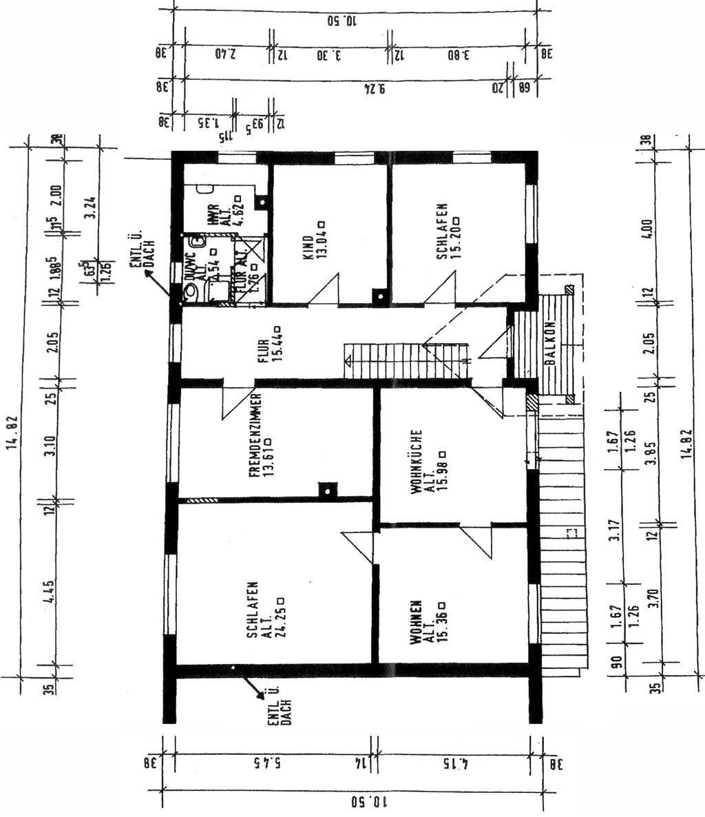
Grundriss

94405 Landau a d Isar

Gewerblicher Anbieter

Raiffeisenbank Arnstorf eG
Oberer Markt 21
94424 Arnstorf

Details

Grundstücksfläche
16.426 m²
Zimmerzahl
8
Haustyp
Einfamilienhaus freistehend
Etagenzahl
2
Nutzfläche
275 m²
Anzahl Schlafzimmer
4
Anzahl Badezimmer
2
Anzahl Garage/ Stellplatz
1
Objektzustand
Sanierungsbedürftig
Baujahr
1955

Kosten

Kaufpreis
1.250.000 €
Was kostet dein Umzug?

Stellplätze

Stellplatztyp
Garage
Anzahl
6

Objektbeschreibung

"Ihr besonderer 3-Seithof!"


Entdecken Sie diesen sonnenverwöhnten Bauernhof, der viel Raum für Ihre Träume bietet. Das Anwesen liegt auf einem 1,5 ha großen Grundstück und umfasst ein Wohnhaus mit ca. 240 m² Wohnfläche. Darüber hinaus stehen Ihnen eine Stallung, eine Lager- und Mehrzweckhalle mit 630 m² Nutzfläche, ein Nebengebäude mit 6 Garagen sowie ein ehemaliger Schweinestall mit 510 m² Nutzfläche zur Verfügung.
Hier bietet sich Ihnen die Gelegenheit, sowohl einen geeigneten Hof für die Pferdehaltung als auch einen besonderen Ort für andere kreative Projekte zu verwirklichen.


Weitere Details:



  • Gesamtfläche über 16.426 m²
    Gemarkung Zeholfing
    Flurstück 4156: 15.231 m²
    Flurstück 4090: 741 m²
    Flurstück 4091: 454 m²

  • Wohnhaus Baujahr 1955, später Erweiterung, 1991 modernisiert (Gasheizung, Holzfenster)

  • Schweinestall Baujahr 1978

  • Lager- und Mehrzweckhalle Baujahr 1988

  • Wasser über die öffentliche Versorgung

  • Abwasserentsorgung über eigene Grube


Freuen Sie sich auf die vielfältigen Möglichkeiten, die Ihnen diese Hofstelle bietet. Hier wird Ihr Traum vom Landleben Wirklichkeit!


Bausubstanz & Energieausweis

A+

A

B

C

D

E

F

G

219 kWh/(m²*a)

H

Baujahr
1955
Objektzustand
Sanierungsbedürftig
Wesentlicher Energieträger
Flüssiggas
Heizungsart
Zentralheizung
Energieausweis
liegt vor
Energieausweistyp
Bedarfsausweis
Ausstellungsdatum
05.02.2021
Gültig bis
04.02.2031
Energieeffizienzklasse
G
Endenergiebedarf
219 kWh/(m²*a)

Lagebeschreibung

Die Hofstelle befindet sich im Landkreis Dingolfing-Landau, ca. 3 km östlich der Stadt Landau an der Isar. Die Lage ist top. Sie genießen hier die hervorragende Verkehrsanbindung an die B 20 sowie an die A 92 München-Deggendorf und wohnen doch ausgesprochen ruhig.


Sonstige Angaben

Alle Angaben stammen vom Eigentümer. Keine Haftung für die Richtigkeit der Daten durch die Raiffeisenbank Arnstorf eG.


Die Käuferprovision beträgt einschließlich der gesetzlichen Mehrwertsteuer bis zu 3,57 % vom Kaufpreis, d. h. bei einem Kaufpreis von 1.250.000,00 EUR beträgt die Provision 44.625,00 EUR. Die Verkäuferprovision beträgt einschließlich der gesetzlichen Mehrwertsteuer bis zu 3,57 % vom Kaufpreis, d. h. bei einem Kaufpreis von 1.250.000,00 EUR beträgt die Provision 44.625,00 EUR. Käufer- u. Verkäuferprovision sind bei Abschluss des notariellen Kaufvertrages zur Zahlung fällig.


Wohnung finden so einfach wie möglich - das ist unsere Mission!

Kostenlose Basic Features

0 € monatlich


  • Individuelles Such-Profil anlegen
  • Suchaufträge speichern
  • One-Klick Kontaktaufnahme

alles anzeigen

Jetzt kostenlos anmelden

Premium Features

19,99 € monatlich


  • Alle kostenlosen Features
  • Smart-Alarm per Whatsapp
  • Deine Chancen checken
  • Wohngegend analysieren

alles anzeigen

Jetzt Premium freischalten

Gewerblicher Anbieter

Raiffeisenbank Arnstorf eG
Oberer Markt 21
94424 Arnstorf

Wohnglück-ID:
Objekt-Nr.:
WGL-833977
322 (1/387)