Haus in Wilhelmshaven (Heppens)

Balkon/­Terrasse
Keller
Einbauküche
Garage/­Stellplatz

Gewerbe & Wohnen vereint!

Anfragen bisher

Premium

Meine Chancen

Premium

Fairer Preis

Premium

579.000 €

Kaufpreis

289,06 m²

19 Zi.

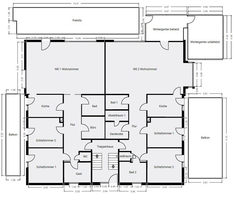
Grundriss

26384 Wilhelmshaven

Gewerblicher Anbieter

Volksbank Jade-Weser Immobilien GmbH
Mühlenstr. 31-35
26441 Jever

Details

Grundstücksfläche
2.815 m²
Zimmerzahl
19
Immobilienart
Haus
Etagenzahl
2
Nutzfläche
283,37 m²
Bezugsfrei ab
sofort!
Anzahl Schlafzimmer
4
Anzahl Badezimmer
4
Anzahl Garage/ Stellplatz
2
Objektzustand
Gepflegt
Baujahr
1982

Kosten

Kaufpreis
579.000 €
Käuferprovision
5,95 %
Was kostet dein Umzug?

Stellplätze

Stellplatztyp
Freiplatz
Anzahl
10
Stellplatztyp
Garage
Anzahl
7

Objektbeschreibung

Repräsentatives Gewerbeobjekt mit zwei Wohneinheiten, großem Grundstück und exklusivem Wellnessbereich.


Dieses außergewöhnliche Objekt vereint komfortables Wohnen, modernes Arbeiten und exklusives Entspannen an einem Ort.
Das Gebäude bietet eine umfangreiche Nutzfläche mit ca. 283 m², sowie zwei großzügige Wohnungen mit einer Wohnfläche von ca. 132 m² und ca. 156 m². Damit eignet sich diese Immobilie ideal für Unternehmer, die Wohnen und Arbeiten unter einem Dach verbinden möchten.


Ausstattung & Highlights:
Im Jahr 2025 wurde das gesamte Kellergeschoss umfassend saniert. Neben 10 beheizten Kellerräumen stehen Ihnen dort ein hochwertiger Wellnessbereich mit Pool und Sauna (Baujahr 2025, neu & unbenutzt) zur Verfügung. Ein modernes Badezimmer rundet das Kellergeschoss ab und ermöglicht eine vielseitige Nutzung - sowohl für den gewerblichen Bereich als auch für private Entspannung.


Wohn-/Gewerbebereich:
Die beiden Wohnungen überzeugen durch helle Räume, moderne Grundrisse, zwei Wintergärten, drei Balkone und ein charmantes Ambiente. Nutzbar als Wohnung oder auch ideal für Büros, Praxisräume, Agenturen oder andere Dienstleistungsbetriebe.


Außenbereich:
Das weitläufige Grundstück mit einer Fläche von ca. 2.815 m² bietet reichlich Platz für Ihre individuellen Ansprüche. Neben 7 Garagen stehen eine Vielzahl von Außenstellplätzen und ein gemütlicher Gartenbereich zur Verfügung - ideal für Mitarbeiter, Kunden oder Gäste.


Fazit:
Ein repräsentatives Gewerbeobjekt mit großzügigen Wohnmöglichkeiten und einem exklusiven Wellnessbereich, dass durch seine Vielseitigkeit, dem hohen Ausstattungsstandard und die großzügige Grundstücksfläche überzeugt.


Hier verbinden sich Arbeiten, Wohnen und Erholung idealerweise auf einem Grundstück.


Wir haben Ihr Interesse geweckt? Dann freuen wir uns auf Ihre Anfrage.


Bausubstanz & Energieausweis

A+

A

B

C

D

E

F

163,6 kWh/(m²*a)

G

H

Baujahr
1982
Objektzustand
Gepflegt
Wesentlicher Energieträger
GAS
Heizungsart
Gasheizung
Befeuerung
Gasheizung
Energieausweis
liegt vor
Energieausweistyp
Bedarfsausweis
Gültig bis
21.10.2035
Energieeffizienzklasse
F
Endenergiebedarf
163,6 kWh/(m²*a)

Ausstattung



  • Bürogebäude mit Platzmeisterwohnung




  • Sauna aus 2025




  • Innenpool aus 2025




  • Voll unterkellert (saniert in 2025)




  • 7 Garagen




Lagebeschreibung

Wilhelmshaven ist eine kreisfreie Stadt im Nordwesten Deutschlands. Sie liegt an der Nordwestküste des Jadebusens, einer großen Meeresbucht an der Nordsee. Mit ca. 76.300 Einwohnern ist sie die zweitgrößte Mittelstadt Niedersachsens und eines der Oberzentren in diesem Bundesland. Seit 2006 gehört Wilhelmshaven zur Metropolregion Nordwest, einer von insgesamt elf europäischen Metropolregionen in Deutschland. Im Süden der Stadt reicht die Bebauung bis an den Strand des Jadebusens.


Die Stadtgeschichte ist seit der Einweihung als „erster deutscher Kriegshafen an der Jade“ am 17. Juni 1869 eng mit der Entstehung und Entwicklung der deutschen Marine verbunden. Die Stadt ist heute der größte Standort der Marine, seit Umsetzung des neuen Bundeswehrstationierungskonzepts 2011 ist Wilhelmshaven der mit Abstand größte Standort der Bundeswehr.


Wilhelmshaven hat den Tiefwasserhafen mit der größten Wassertiefe in Deutschland und ist der größte Erdölumschlaghafen des Landes. 72 % des Rohölumschlags aller deutschen Seehäfen und fast 27 % des deutschen Rohölimports werden über Wilhelmshaven abgewickelt. Von hier führen Ölleitungen zu Raffinerien im Rhein-Ruhr-Gebiet und nach Hamburg. Das tiefe Fahrwasser der Jade prägt die Wirtschaft und ist die Basis für Ansiedlungen von Großbetrieben der petrochemischen Industrie, der chemischen Industrie, der stromerzeugenden Industrie, der Logistikindustrie und weiterer maritimer Wirtschaftszweige (Reparaturwerften, Schiffsausrüstungen etc.). Mit dem im September 2012 eröffneten JadeWeserPort erhielt Wilhelmshaven ein tideunabhängiges Containerterminal, das auch die größten Containerschiffe voll beladen abfertigen kann.


Die Nordseestadt ist Standort der Jade Hochschule sowie wissenschaftlicher Forschungseinrichtungen, wie z.B des Senckenberg-Instituts für Meeresgeologie und -biologie, des Niedersächsischen Instituts für historische Küstenforschung, usw.


Wohnung finden so einfach wie möglich - das ist unsere Mission!

Kostenlose Basic Features

0 € monatlich


  • Individuelles Such-Profil anlegen
  • Suchaufträge speichern
  • One-Klick Kontaktaufnahme

alles anzeigen

Jetzt kostenlos anmelden

Premium Features

19,99 € monatlich


  • Alle kostenlosen Features
  • Smart-Alarm per Whatsapp
  • Deine Chancen checken
  • Wohngegend analysieren

alles anzeigen

Jetzt Premium freischalten

Gewerblicher Anbieter

Volksbank Jade-Weser Immobilien GmbH
Mühlenstr. 31-35
26441 Jever

Wohnglück-ID:
Objekt-Nr.:
WGL-821104
9819