Büro / Praxen in Tübingen (Lustnau)

Keller

Büroflächen mit Aussicht

Anfragen bisher

Premium

Meine Chancen

Premium

Fairer Preis

Premium

3.100 €

Kaltmiete

72072 Tübingen

Gewerblicher Anbieter

Vereinigte Volksbanken eG
Friedrich-List-Platz 1
71032 Böblingen

Details

Bürofläche
330 m²
Zimmerzahl
5
Typ der Gewerbeimmobilie
Büro / Praxen

Kosten

Kaltmiete
3.100 €
Was kostet dein Umzug?

Objektbeschreibung

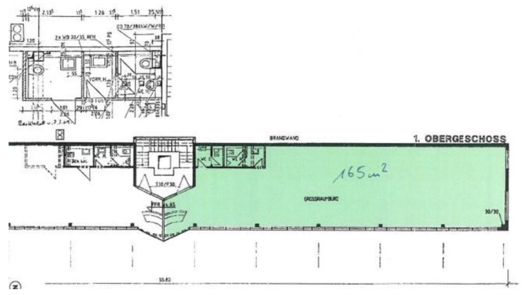
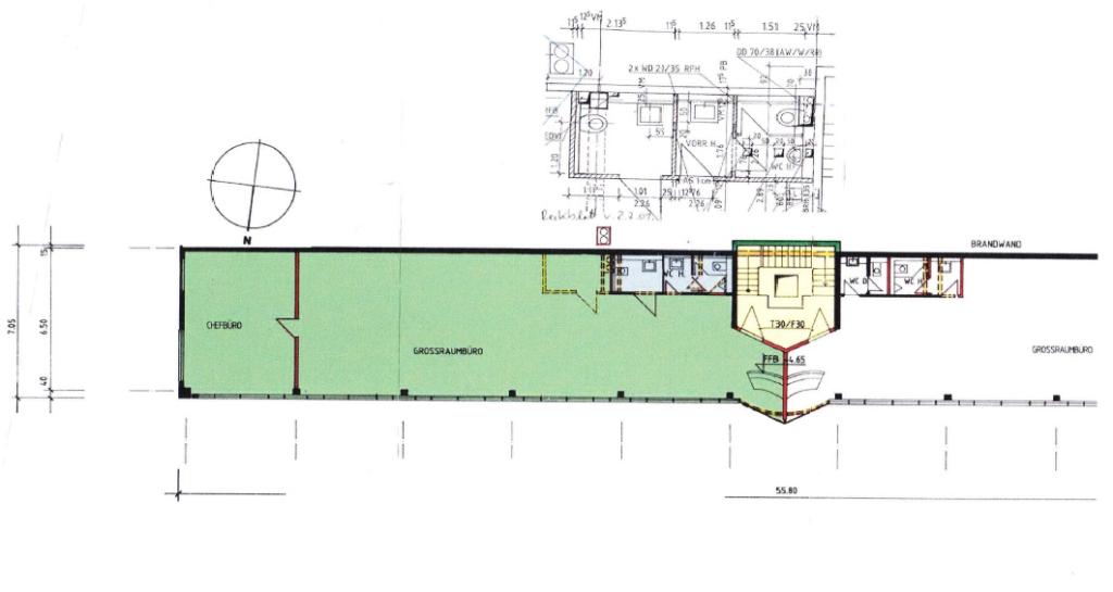
Büroflächen mit Aussicht:
Im Gewerbegebiet an der B27 Richtung Stuttgart liegen diese hellen und geräumigen Büroflächen.
Die Gesamtfläche beträgt ca.330 m² und ist hälftig teilbar, wobei jede Hälfte über einen eigenen Eingang im Treppenhaus verfügt.
Die Miete für einen Teilbreich beträgt 1500 €.
Die Büros befinden sich im OG eines Logistikgebäudes. Teilbereiche sind klimatisiert. Die Bodenanlage (Doppelboden) ist teilw. mit EDV verkabelt und verfügt über Bodensteckdosen und Kabelkanäle.
Sie verfügen über WC Damen / Herren und jeweils eine Einbauküche. Es gibt je einen kleinen Serverraum
Im tieferliegenden Eingangsbereich sind überbaute Stellplätze, weitere Stellplätze ohne Zuordnung gibt es im Freien.


Bausubstanz & Energieausweis

Heizungsart
Sonstige

Lagebeschreibung

Tübingen, Gewerbegebiet Untere Au an der B27 Richtung Stuttgart, in unmittelbarer Nähe zur Auffahrt/ Abfahrt Tübingen -Stuttgart.
Der Bahnhof Lustnau liegt wenige Gehminuten entfernt.
Tübingen ist eine Universitätsstadt im Zentrum Baden-Württembergs. Sie liegt am Neckar rund 30 Kilometer südlich der Landeshauptstadt Stuttgart. Die Stadt ist Sitz des Landkreises Tübingen sowie des gleichnamigen Regierungsbezirks.


Wohnung finden so einfach wie möglich - das ist unsere Mission!

Kostenlose Basic Features

0 € monatlich


  • Individuelles Such-Profil anlegen
  • Suchaufträge speichern
  • One-Klick Kontaktaufnahme

alles anzeigen

Jetzt kostenlos anmelden

Premium Features

19,99 € monatlich


  • Alle kostenlosen Features
  • Smart-Alarm per Whatsapp
  • Deine Chancen checken
  • Wohngegend analysieren

alles anzeigen

Jetzt Premium freischalten

Gewerblicher Anbieter

Vereinigte Volksbanken eG
Friedrich-List-Platz 1
71032 Böblingen

Wohnglück-ID:
Objekt-Nr.:
WGL-813340
251268