Etagenwohnung in Schiffdorf

Aufzug
Balkon/­Terrasse
barrierefrei
derzeit vermietet
Keller
Garage/­Stellplatz

Seniorenresidenz + TOP Betreuung Schickes Apartment 68,22 m² incl. Gem.- bad mit ca. 4-5 % Rendite

Anfragen bisher

Premium

Meine Chancen

Premium

Fairer Preis

Premium

221.000 â‚¬

Kaufpreis

68,22 m²

1. OG

27619 Schiffdorf

Gewerblicher Anbieter

Schneidewind Immobilienträume
Syker Str. 12
28844 Weyhe

Details

Wohnungstyp
Etagenwohnung
Etage, Geschoss
1
Etagenzahl
1
Nutzfläche
1,5 m²
Anzahl Garage/ Stellplatz
1
Objektzustand
Gepflegt
Letzte Modernisierung/ Sanierung
2024

Kosten

Kaufpreis
221.000 €
Käuferprovision
5,95 % incl. 19 % MwSt.
Was kostet dein Umzug?

Stellplätze

Stellplatztyp
Freiplatz
Anzahl
1

Objektbeschreibung

Diese charmante Etagenwohnung bietet auf 52 m² eine ideale Gelegenheit für Kapitalanleger. Die Wohnung besticht durch einen gut geschnittenen Wohnbereich, der sich perfekt für individuelle Gestaltungsmöglichkeiten eignet. Der Balkon erweitert den Wohnraum nach draußen und bietet einen angenehmen Rückzugsort.


Das Badezimmer ist funktional gestaltet und verfügt über alle notwendigen Annehmlichkeiten. Ein Kellerraum gehört ebenfalls zur Wohnung und bietet zusätzlichen Stauraum.


Die Lage in Schiffdorf ist besonders attraktiv durch die Nähe zu lokalen Einrichtungen und die gute Anbindung an die umliegenden Städte. Diese Immobilie bietet eine hervorragende Möglichkeit, in eine zukunftssichere Kapitalanlage zu investieren.


Bausubstanz & Energieausweis

A+

A

B

C

D

E

F

G

H

Objektzustand
Gepflegt
Letzte Modernisierung
2024
Heizungsart
Gasheizung
Befeuerung
Gasheizung
Energieeffizienzklasse
F

Ausstattung


  • Etagenwohnung mit einer Wohnfläche von 52m²

  • Kapitalanlage geeignet

  • Balkon vorhanden

  • Kellerraum inklusive

  • Badezimmer mit Dusche ausgestattet, Doppelnutzung

  • Wohnbereich mit gemĂĽtlicher Einrichtung

  • Gute Anbindung an örtliche Infrastruktur

  • Zugang zur Verwaltung und Haupteingang leicht erreichbar


Lagebeschreibung



  1. Geographische Lage



    • Die Immobilie liegt im charmanten Stadtteil Schiffdorf, eingebettet in eine ruhige und familienfreundliche Umgebung.




  2. Infrastruktur




    • Verkehrsanbindung: Die Anbindung an den öffentlichen Nahverkehr ist gut, mit mehreren Bushaltestellen in der Nähe, darunter Moorhöfen und Brameler StraĂźe. Die Autobahn ist ebenfalls gut erreichbar, was eine schnelle Verbindung zu umliegenden Städten ermöglicht. Parkmöglichkeiten sind ausreichend vorhanden.




    • Einrichtungen des täglichen Bedarfs: In der Umgebung gibt es diverse Supermärkte und Bäckereien, die fĂĽr den kleinen zusätzlichen Snack sorgen könnten. Eine Apotheke ist ebenfalls in der Nähe zu finden.




    • Gesundheitsversorgung: Das nächste Krankenhaus ist in einer angemessenen Entfernung erreichbar.






  3. Freizeit und Erholung




    • GrĂĽnflächen und Parks: Die Umgebung bietet zahlreiche GrĂĽnflächen und Parks, die zu Spaziergängen und Erholung einladen.


      • Restaurants und CafĂ©s: Eine Auswahl an Restaurants und CafĂ©s bietet kulinarische Vielfalt.
        hier können Sie auch einmal mit Ihren Angehörigen essen gehen.






  4. Soziale Infrastruktur




    • Nachbarschaft: Die Nachbarschaft zeichnet sich durch eine hohe EigentĂĽmerquote und eine demographisch ausgewogene Struktur aus. Die Umgebung ist ruhig und sicher.




    • Dienstleistungen: Dienstleistungen wie Post, Banken und Friseure sind in der Nähe vorhanden und gut erreichbar.






  5. Umwelt und Klima



    • Die Luftqualität ist gut, und es gibt keine nennenswerte Lärmbelästigung. Das Klima ist gemäßigt und angenehm.




  6. Sicherheitsaspekte



    • Die Kriminalitätsrate ist niedrig, und die Polizeipräsenz sorgt fĂĽr ein sicheres Wohnumfeld. Notfallversorgung ist schnell erreichbar.




Sonstige Angaben

Es liegt ein Energieausweis zur Besichtigung vor.


Die Hausverwaltung befindet sich in Hildesheim.
Die ĂĽbergeordnete Verwaltung agiert von Hannover aus.


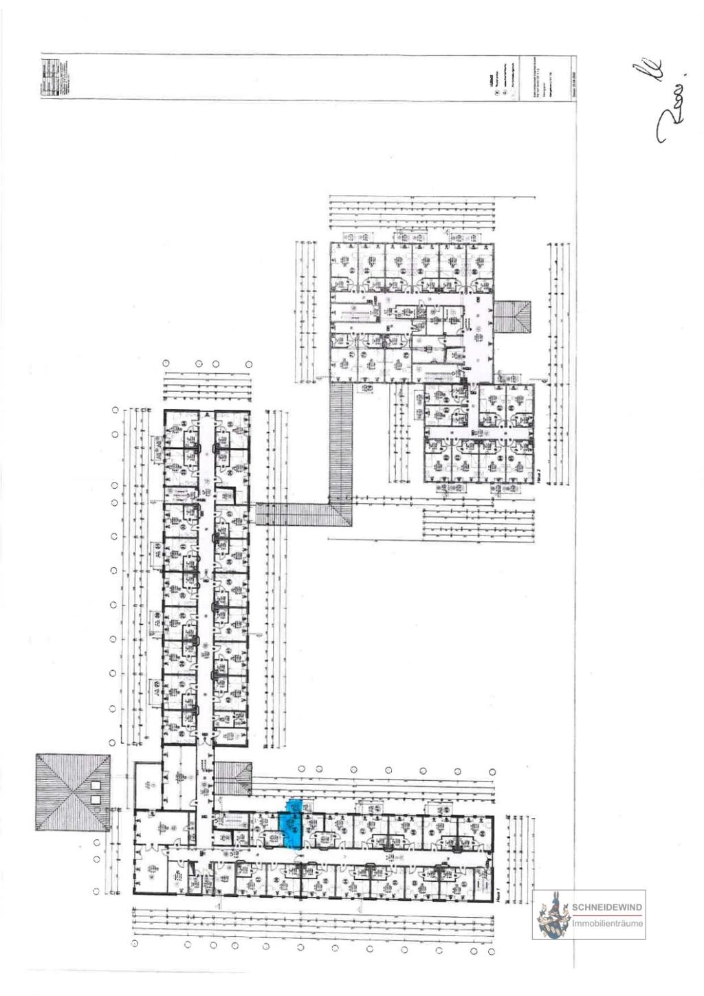
Die Senioren Wohnanlage umfasst insgesamt 69 Eigentumswohnungen, so wie eine Pflegestation mit ca. 40 Senioren Pflegeplätzen.


Sonderfunktionsflächen (Funktionsräume): Cafeteria, Restaurant, Kiosk, Gymnastikräume, Pflegebäder, Großküche, Friseur, Bibliothek befinden sich im mittleren Teil des EG auf ca. 1090m2.


Ihr Miteigentumsanteil (MEA): 80,44 / 10.000


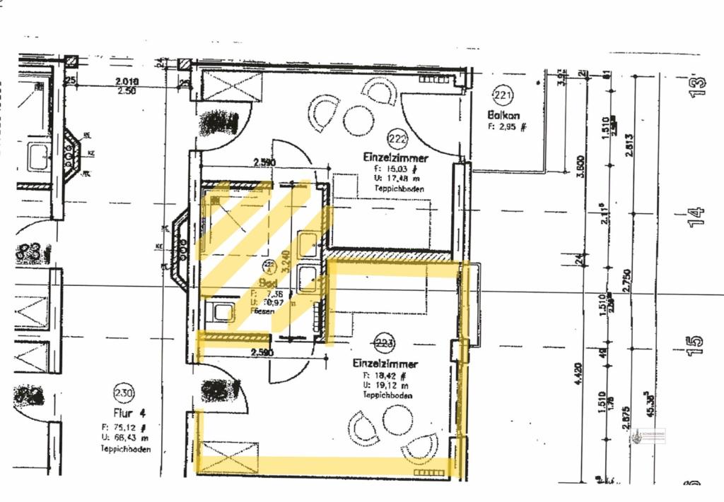
Wohnfläche: Zimmer Nr. 223 : 16,00m2
anteiliges Bad: 4,23m2
anteilige Gemeinschaftsfläche: 47,99m2
Gesamtfläche: 68,22m2
monatliche Kaltmiete : 525,43€


Wohnung finden so einfach wie möglich - das ist unsere Mission!

Kostenlose Basic Features

0 € monatlich


  • Individuelles Such-Profil anlegen
  • Suchaufträge speichern
  • One-Klick Kontaktaufnahme

alles anzeigen

Jetzt kostenlos anmelden

Premium Features

19,99 € monatlich


  • Alle kostenlosen Features
  • Smart-Alarm per Whatsapp
  • Deine Chancen checken
  • Wohngegend analysieren

alles anzeigen

Jetzt Premium freischalten

Gewerblicher Anbieter

Schneidewind Immobilienträume
Syker Str. 12
28844 Weyhe

WohnglĂĽck-ID:
Objekt-Nr.:
WGL-808014
2025-DS-0968