Einfamilienhaus freistehend in Niebüll

Garage/­Stellplatz

Solides Einfamilienhaus mit Garage in ruhiger, zentrumsnaher Lage in Niebüll

Anfragen bisher

Premium

Meine Chancen

Premium

Fairer Preis

Premium

399.000 €

Kaufpreis

125,44 m²

5 Zi.

25899 Niebüll

Gewerblicher Anbieter

Richardsen Immobilien-Vermietungen GmbH & Co.KG
Alte Schulstraße 4
25899 Niebüll

Details

Grundstücksfläche
888 m²
Zimmerzahl
5
Haustyp
Einfamilienhaus freistehend
Anzahl Schlafzimmer
3
Anzahl Badezimmer
1
Anzahl Garage/ Stellplatz
2
Objektzustand
Gepflegt
Baujahr
1987

Kosten

Kaufpreis
399.000 €
Käuferprovision
3,57 % inkl. MwSt.
Was kostet dein Umzug?

Stellplätze

Stellplatztyp
Freiplatz
Anzahl
2
Stellplatztyp
Garage
Anzahl
2

Objektbeschreibung

Objekt-Nr. 100-124-3


Bauweise
Baujahr 1987, Mauerwerk massiv, Dacheindeckung mit Pfannen als Krüppelwalmdach, Fenster und Haustür sind aus Holz mit Isolierverglasung.


Heizung
Gaszentralheizung mit Warmwasserbereitung, Baujahr 1987, Hersteller „Junkers“, Nennwärmeleistung 18 KW


Grundstück
888,00 m² großes Grundstück; das Grundstück ist voll erschlossen, öffentliche Kanalisation.


Energieausweis
Energieausweis: Bedarfsausweis
Endenergiebedarf: 152 kWh/(m²*a)
Wesentl. Energieträger: Erdgas H
Energieeffizienzklasse: E
Energieausweis gültig bis: 12.07.2031
Baujahr lt. Energieausweis: 1987


Irrtum vorbehalten!


Bausubstanz & Energieausweis

A+

A

B

C

D

E

152 kWh/(m²*a)

F

G

H

Baujahr
1987
Objektzustand
Gepflegt
Wesentlicher Energieträger
GAS
Heizungsart
Zentralheizung
Befeuerung
Gasheizung
Energieausweis
liegt vor
Energieausweistyp
Bedarfsausweis
Gültig bis
12.07.2031
Energieeffizienzklasse
E
Endenergiebedarf
152 kWh/(m²*a)

Ausstattung

•Garage mit elektrischem Tor und Werkstatt
•Wintergarten
•hochwertige Nobilia-Einbauküche von Dezember 2024


Lagebeschreibung

Bevorzugte, zentrale Wohnlage nahe dem Zentrum von Niebüll. Die Innenstadt und der Bahnhof etc. sind auch zu Fuß schnell erreicht. Niebüll als zentraler Ort der Region mit seiner sehr guten Infrastruktur und seiner attraktiven Innenstadt ist ideal auch für Sylt-Pendler geeignet. Im Ort sind zahlreiche Einkaufsmöglichkeiten, Ärzte, das Krankenhaus usw. vorhanden.


Sonstige Angaben

Es liegt ein Energiebedarfsausweis vor.
Dieser ist gültig bis 12.7.2031.
Endenergiebedarf beträgt 152.00 kwh/(m²*a).
Wesentlicher Energieträger der Heizung ist Gas.
Das Baujahr des Objekts lt. Energieausweis ist 1987.
Die Energieeffizienzklasse ist E.


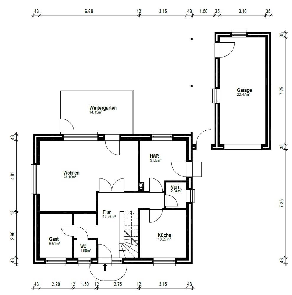
Erdgeschoss:
Flur: 13,95 m²
WC: 1,80 m²
Gast: 6,51 m²
Wohnen: 28,10 m²
Küche: 10,27 m²
Vorratsraum: 2,34 m²
Hauswirtschaftsraum: 9,55 m²


Erdgeschoss gesamt: ca. 72,52 m²


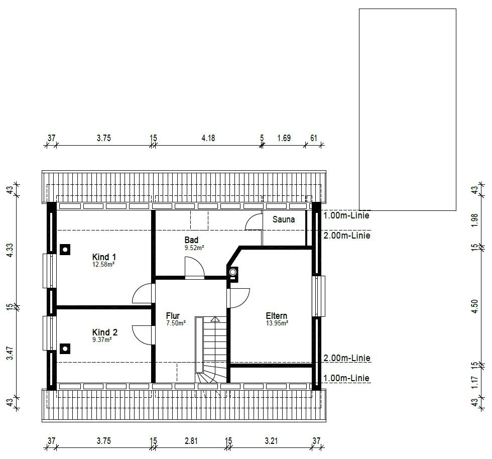
Dachgeschoss:


Flur: 7,50 m²
Kind 1: 12,58 m²
Kind 2: 9,37 m²
Eltern: 13,95 m²
Bad: 9,52 m²


Dachgeschoss gesamt: ca. 52,92 m²


Wohnfläche gesamt: ca. 125,44 m²


Zzgl.: Wintergarten (ca. 14,35 m²), Dachboden, Garage mit Abstellraum


Für die Berechnungen der Raumgrößen liegen jeweils die Grundflächen der Räume zugrunde.


Alle Maße sind ca. Maße, Irrtum vorbehalten.


Wohnung finden so einfach wie möglich - das ist unsere Mission!

Kostenlose Basic Features

0 € monatlich


  • Individuelles Such-Profil anlegen
  • Suchaufträge speichern
  • One-Klick Kontaktaufnahme

alles anzeigen

Jetzt kostenlos anmelden

Premium Features

19,99 € monatlich


  • Alle kostenlosen Features
  • Smart-Alarm per Whatsapp
  • Deine Chancen checken
  • Wohngegend analysieren

alles anzeigen

Jetzt Premium freischalten

Gewerblicher Anbieter

Richardsen Immobilien-Vermietungen GmbH & Co.KG
Alte Schulstraße 4
25899 Niebüll

Wohnglück-ID:
Objekt-Nr.:
WGL-804178
100-124-3