Büro / Praxen in Großpösna

Einbauküche
Garage/­Stellplatz

2025 frisch saniert! Freist. Haus mit 8 Räumen, Keller, Blk., Terrasse, Garage, Carport, und gr. GS

Anfragen bisher

Premium

Meine Chancen

Premium

Fairer Preis

Premium

2.520 €

Kaltmiete

04463 Großpösna

Gewerblicher Anbieter

IC IMMOCONSULT e.K.
Hillerstraße 3
04109 Leipzig

Details

Bürofläche
217,8 m²
Sonstige Fläche
38,8 m²
Zimmerzahl
8
Typ der Gewerbeimmobilie
Büro / Praxen
Etagenzahl
3
Bezugsfrei ab
sofort
Anzahl Garage/ Stellplatz
1
Objektzustand
Vollsaniert
Baujahr
1924

Kosten

Kaltmiete
2.520 €
Nebenkosten
130 €
provisionsfrei
Was kostet dein Umzug?

Stellplätze

Stellplatztyp
Freiplatz
Anzahl
4
Miete
200 €

Objektbeschreibung

In einer ruhigen und grünen Wohngegend liegt dieses charmante und freistehende Büro-/Praxis-/Wohnhaus aus dem Jahr 1924. Der Altbau besticht durch seinen klassischen Baustil und wurde 1998 umfassend saniert.


Renoviert wurden die Innenflächen und der Außenbereich bis 07/2025.


Das Gebäude erstreckt sich über drei Etagen + einer zusätzlichen Kellerebene inkl. Garage mit ca. 82,54 m² Nutzfläche und bietet eine Büro-/Praxisfläche von ca. 217,80 m² auf einem großzügigen Grundstück mit einer Fläche von ca. 1.485 m².


Das Haus verfügt auch über einen Balkon, 1 Terrasse und einem repräsentativ angelegten Vorgarten.


Das Haus umfasst insgesamt 8 Räume, 1 gr. Küche, 2 Bäder mit Fenster, Gäste-WC, Abstellräume und mehr. Die Räume sind geräumig und hell gestaltet, mit ausreichend Platz für verschiedene Büro-, Praxis- und Wohnflächen. Die verschiedenen Etagen bieten vielfältige Nutzungsmöglichkeiten.


Die umliegende Nachbarschaft ist geprägt von einer angenehmen Atmosphäre und einer guten Anbindung an alle wichtigen Einrichtungen des täglichen Bedarfs.


Ideal für:



  • Praxis

  • Steuerberater

  • Physiotherapie

  • Büro

  • Kosmetik

  • Wohnen und Arbeiten in Einem

  • It-Firma


Mietzusammensetzung:
KM - 2.520,00 €
Stellplatzmiete - 200,00 €
Gesamt-KM = 2.720,00 €/Monat zzgl. NK*


*In den Nebenkosten sind lediglich die Grundsteuer und die Gebäudeversicherung enthalten. Alle anderen NK übernimmt der Mieter selbst!


Als zusätzliche Mietoption wäre das Nachbargrundstück mit ca. 720 m² inklusive Bestandsholzhaus (ca. 54,25 m² Wfl.) möglich.


Bausubstanz & Energieausweis

Baujahr
1924
Objektzustand
Vollsaniert
Wesentlicher Energieträger
Gas
Heizungsart
Zentralheizung
Befeuerung
Gasheizung

Ausstattung


  • freistehendes Büro-/Praxis-/Wohnhaus

  • Bj: 1924

  • Sanierung 1998

  • Renovierung in 07/2025

  • sehr repräsentatives Anwesen

  • eingezäunt mit 2 elektr. Toreinfahrten

  • ca. 1.485 m² Grundstück

  • auf dem GS befindet sich eine ca. 10.000 l Zisterne mit Außenwasseranschluss

  • ca. 217,80 m² Fläche

  • ca. 82,54 m² zusätzliche Nutzfläche (Keller inkl. Garage)

  • 8 Räume

  • 2 Duschbäder mit WC und Fenster

  • 1 sep. Gäste-WC

  • 3 Kaminanschlüsse

  • 1 gr. Balkon (OG)

  • 1 Terrasse (EG)

  • Abstellräume

  • Einbruchs-, Rauch- und Gasmeldeanlage vorhanden

  • Lan-Verkabelung in jedem Zimmer

  • Gaszentralheizung

  • alter Baumbestand

  • Wasserbrunnen vorhanden

  • Springbrunnen im angelegten Vorgarten mit ca. 3.000 Liter Zisterne

  • gr. Einzelgarage mit ca. 38,8 m² mit elektr. Rolltor (B 3,25 m x H 2,92 m)

  • gr. Carport (L 5,20 m x B 3,60 m x H 3,13 m)

  • E-Ladestation mögl.


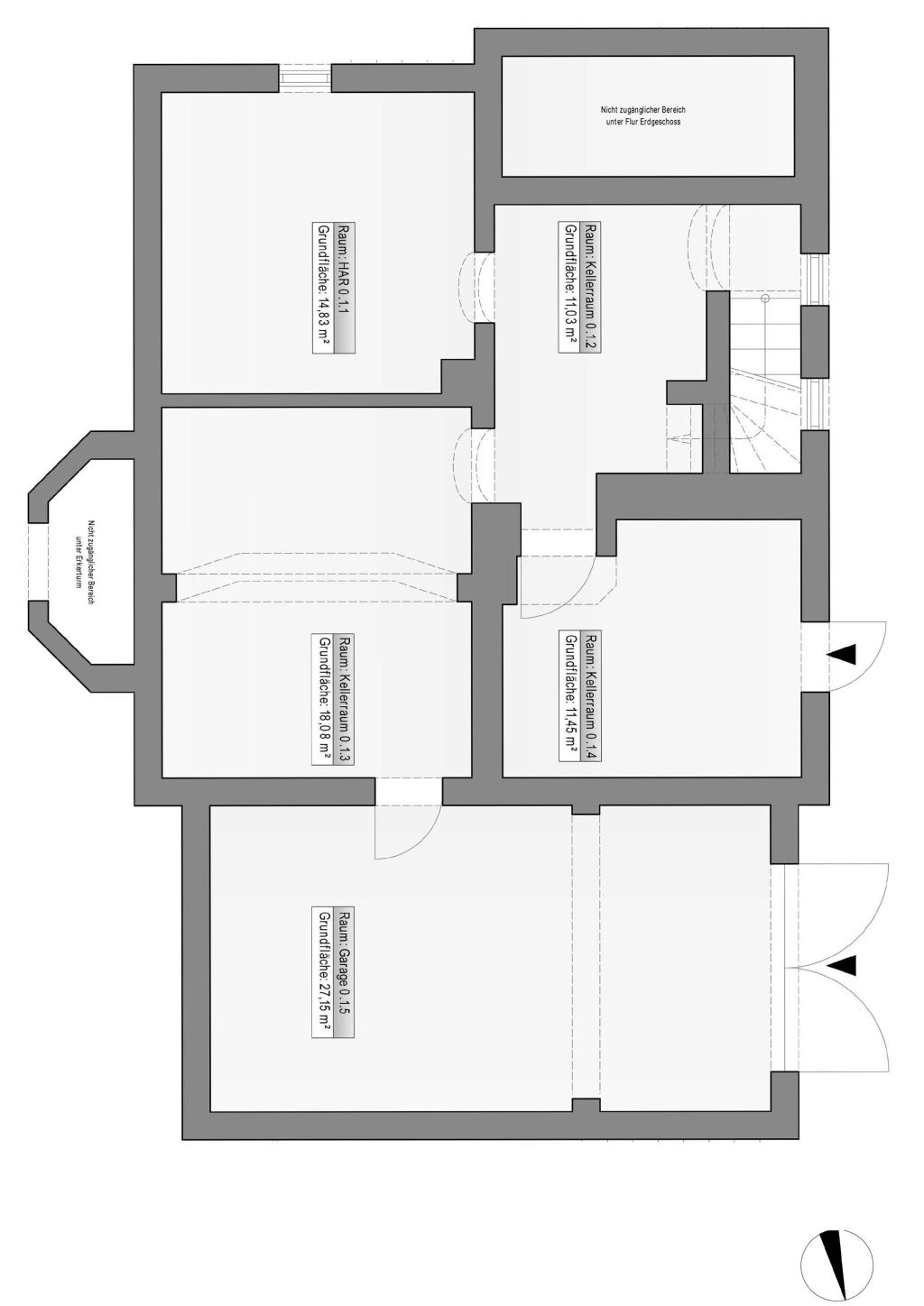
KG



  • ca. 82,54 m² Nutzfläche

  • 4 Räume

  • sehr trocken

  • Zugang vom Haus oder Garten möglich

  • ca. bis 2,12 m Raumhöhe

  • Lager

  • Archiv

  • Werkstatt

  • Hausanschlussraum

  • Kaminofen

  • WM-Raum mit Heizung

  • inkl. Garage (ca. 27,15 m²)

  • 2025 neues Doppelflügel-Garagentor (B 2,60 m x H 1,93 m)


EG



  • Eingangsbereich

  • ca. 2,55 m Raumhöhe

  • 3 Räume

  • davon 1 ca. 38,6 m² großer Raum mit Kaminanschluss

  • 1 gr. Küche

  • WC mit Dusche + Fenster

  • sep. Gäste-WC mit Fenster

  • Ausgang zur ca. 18 m² Terrasse mit Zugang zum großen Garten


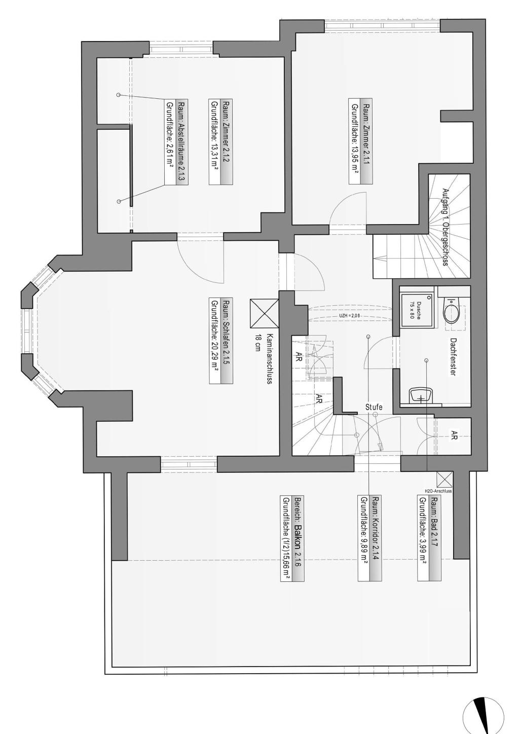
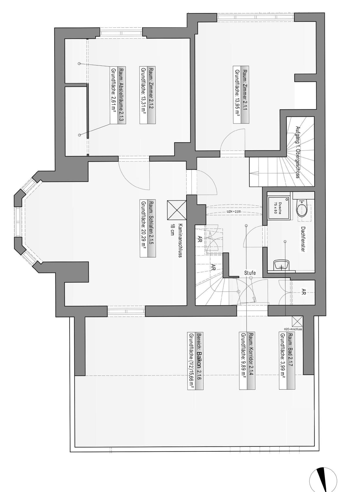
OG



  • 3 Räume

  • davon 1 Raum mit Kamin-Anschluss + gr. Erker

  • ca. 2,55 m Raumhöhe

  • Holzboden

  • Bad mit Dusche und Fenster

  • ca. 31,3 m² gr. Balkon mit Außenwasser- und Lan-Anschluss


DG



  • 1 gr. Vorraum

  • 2 Räume mit Fenster

  • Raumhöhe ca. 2,45 m

  • Holzboden

  • Zugang zum Spitzboden als Kaltdach (Zugang für Schornsteinfeger)


Einzelgarage



  • ca. 38,8 m² Nutzfläche

  • extra Seiteneingang

  • ca. L 11,65 m x B 3,33 m x H 3,11 m), ideal für Caravan o. Boot o.Ä.

  • elektr. Rolltor (3,25 m x 2,92 m)


Lagebeschreibung

Das Objekt liegt in Großpösna.


Die Bahnlinie RB 113 verkehrt in Reichweite und schließt Sie an den öffentlichen Nah- und Fernverkehr an.
Die nächste Bushaltestelle befindet sich in ca. 400 m und zur S-Bahn Oberholz sind es ca. 300 m.


Der Pösna Park befindet sich in ca. 950 m Entfernung und bietet eine Vielzahl an Shops und Einrichtungen.
Der botanische Garten befindet sich in ca. 550 m Entfernung.


Einige Museen, verschiedene Erholungs- und Sportmöglichkeiten (u. a. eine Grün- und Parkanlage) und eine gute medizinische Versorgung, Schule und Kindergarten erreichen Sie ebenfalls im größeren Umkreis.


Zur A38 sind es nur ca. 6 Autominuten.


Sonstige Angaben

Die von uns gemachten Angaben haben wir nach bestem Wissen und Gewissen nach Informationen des Vermieters/Verkäufers und den uns übergebenen Informationen zusammengestellt. Eine Gewähr für diese Angaben können wir nicht übernehmen. Wichtige Zahlen und Informationen sind am Objekt zu überprüfen. Zwischenvermietung/Verkauf bleibt vorbehalten.


Wohnung finden so einfach wie möglich - das ist unsere Mission!

Kostenlose Basic Features

0 € monatlich


  • Individuelles Such-Profil anlegen
  • Suchaufträge speichern
  • One-Klick Kontaktaufnahme

alles anzeigen

Jetzt kostenlos anmelden

Premium Features

19,99 € monatlich


  • Alle kostenlosen Features
  • Smart-Alarm per Whatsapp
  • Deine Chancen checken
  • Wohngegend analysieren

alles anzeigen

Jetzt Premium freischalten

Gewerblicher Anbieter

IC IMMOCONSULT e.K.
Hillerstraße 3
04109 Leipzig

Wohnglück-ID:
Objekt-Nr.:
WGL-803394
302g115#L48r42