Einzelhandel in Königs Wusterhausen

barrierefrei
Gäste WC
Einbauküche
Garage/­Stellplatz

Vielseitige Gewerbefläche in Königs Wusterhausen – ideale Basis für Ihr Business

Anfragen bisher

Premium

Meine Chancen

Premium

Fairer Preis

Premium

389.000 €

Kaufpreis

3 Zi.

Erdg.

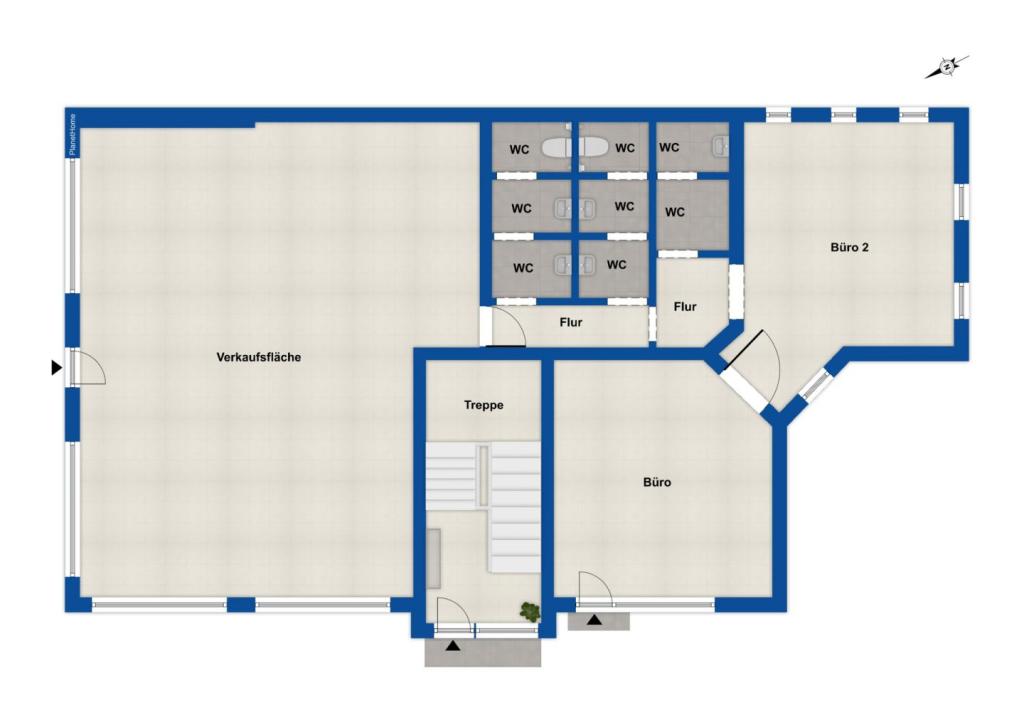
Grundriss

15711 Königs Wusterhausen

Gewerblicher Anbieter

PlanetHome Group GmbH
Feringastraße 11
85774 Unterföhring

Details

Zimmerzahl
3
Typ der Gewerbeimmobilie
Einzelhandel
Etagenzahl
2
Anzahl Garage/ Stellplatz
1
Baujahr
1994

Kosten

Kaufpreis
389.000 €
Hausgeld
256 €
Käuferprovision
7,14 %
Was kostet dein Umzug?

Objektbeschreibung

Diese attraktive Gewerbeeinheit in zentraler Lage von Königs Wusterhausen bietet vielfältige Nutzungsmöglichkeiten – ob als Bürofläche, Verkaufsraum oder Café ohne warme Küche. Mit einer Gesamtfläche von ca. 131 m² und flexibler Raumaufteilung lässt sich das Objekt ideal an die individuellen Bedürfnisse anpassen.


Derzeit ist die Einheit in drei Räume unterteilt, wobei die nichttragenden Wände problemlos verändert oder entfernt werden können, sodass auch großzügige, offene Flächen entstehen können. Neben einer kleinen Teeküche steht ein separater Küchenraum zur Verfügung. Zwei separate Sanitärräume für Damen und Herren runden die funktionale Ausstattung ab.


Das ca. im Jahr 1994 errichtete Gebäude präsentiert sich in einem gepflegten Zustand. Die Einheit ist bereits bezugsfrei und kann sofort übernommen werden. Zwei Stellplätze direkt am Objekt gehören ebenfalls dazu.


Die Lage überzeugt durch eine hohe Frequenz potenzieller Kunden und Besucher: In unmittelbarer Nähe befinden sich eine Schule sowie ein Krankenhaus, die für einen stetigen Publikumsverkehr sorgen. Zusammen mit der zentralen Anbindung in Königs Wusterhausen ergibt sich so ein optimaler Standort für unterschiedliche Geschäftsmodelle.


Bausubstanz & Energieausweis

A+

A

B

C

D

E

F

G

233,7 kWh/(m²*a)

H

Heizungsart
Zentralheizung
Befeuerung
Gasheizung
Energieausweis
liegt vor
Energieausweistyp
Bedarfsausweis
Ausstellungsdatum
28.01.2019
Gültig bis
27.01.2029
Energieeffizienzklasse
G
Endenergiebedarf
233,7 kWh/(m²*a)

Lagebeschreibung

Die Gewerbeeinheit befindet sich in zentraler Lage von Königs Wusterhausen, einer lebendigen Stadt südöstlich von Berlin. Der Standort zeichnet sich durch eine hervorragende Infrastruktur und eine hohe Passantenfrequenz aus. In unmittelbarer Nähe liegen ein Krankenhaus sowie eine Schule, die täglich zahlreiche Besucher und Beschäftigte in die Umgebung bringen und so für eine starke Kundenfrequenz sorgen.


Die Anbindung ist sowohl mit dem Auto als auch mit öffentlichen Verkehrsmitteln ausgezeichnet. Über die nahegelegene A 10 sowie die Bundesstraßen ist die Berliner Innenstadt schnell erreichbar. Der Bahnhof Königs Wusterhausen bietet Anschluss an Regionalzüge, S-Bahn und Buslinien und befindet sich nur wenige Minuten entfernt.


Einkaufsmöglichkeiten, Gastronomie, Dienstleister sowie zahlreiche Freizeit- und Bildungseinrichtungen befinden sich in der direkten Umgebung. Durch diese zentrale und gleichzeitig gut erreichbare Lage bietet der Standort ideale Voraussetzungen für eine gewerbliche Nutzung mit vielfältigen Ausrichtungen.


Wohnung finden so einfach wie möglich - das ist unsere Mission!

Kostenlose Basic Features

0 € monatlich


  • Individuelles Such-Profil anlegen
  • Suchaufträge speichern
  • One-Klick Kontaktaufnahme

alles anzeigen

Jetzt kostenlos anmelden

Premium Features

19,99 € monatlich


  • Alle kostenlosen Features
  • Smart-Alarm per Whatsapp
  • Deine Chancen checken
  • Wohngegend analysieren

alles anzeigen

Jetzt Premium freischalten

Gewerblicher Anbieter

PlanetHome Group GmbH
Feringastraße 11
85774 Unterföhring

Wohnglück-ID:
Objekt-Nr.:
WGL-780352
687738