Etagenwohnung in Heidelberg (Südstadt)

Aufzug
Balkon/­Terrasse
Garage/­Stellplatz

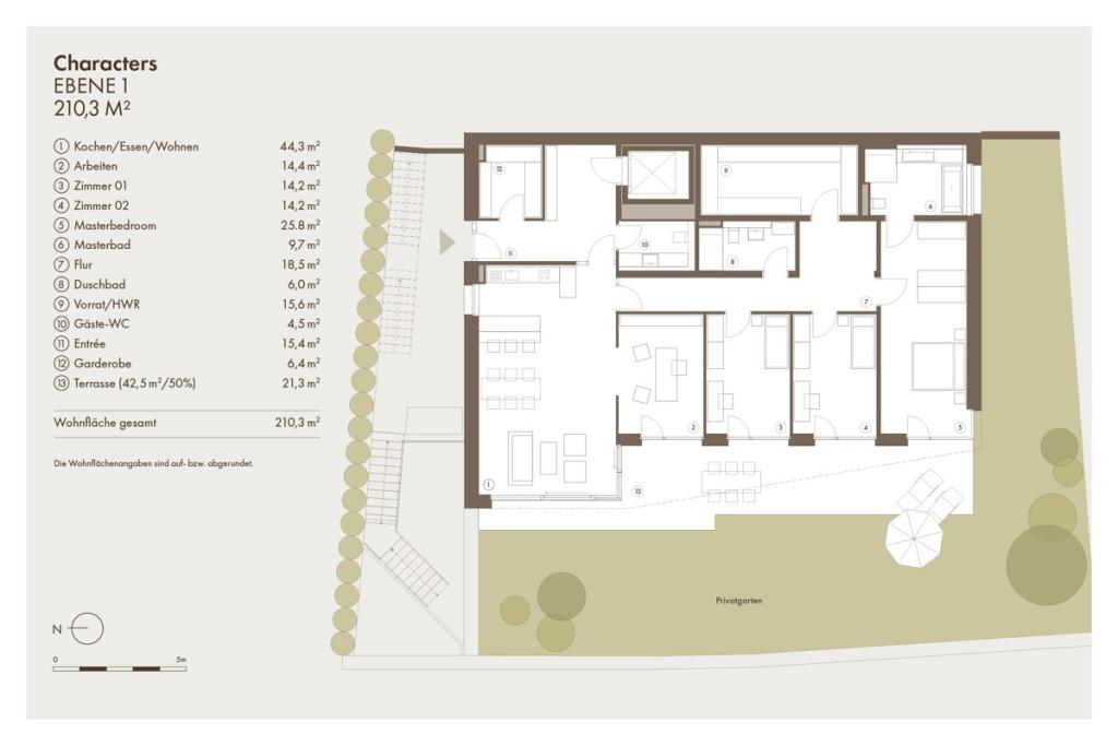
Characters Heidelberg - Ebene 1

Anfragen bisher

Premium

Meine Chancen

Premium

Fairer Preis

Premium

2.490.000 €

Kaufpreis

210,3 m²

7 Zi.

1. OG

Grundriss

69126 Heidelberg

Gewerblicher Anbieter

Volksbank Kurpfalz eG
Hauptstraße 46
69117 Heidelberg

Details

Zimmerzahl
7
Wohnungstyp
Etagenwohnung
Etage, Geschoss
1
Etagenzahl
1
Anzahl Schlafzimmer
3
Anzahl Badezimmer
2
Anzahl Garage/ Stellplatz
1
Objektzustand
Projektiert

Kosten

Kaufpreis
2.490.000 €
Was kostet dein Umzug?

Objektbeschreibung

Dieses bereits in der Planung befindliche Neubauprojekt umfasst ein exklusives Mehrfamilienhaus mit lediglich drei Wohneinheiten im Luxussegment und wird voraussichtlich bis Ende 2027 nach KfW-Effizienzhausstandard 55 fertiggestellt. Die Grundstücksfläche beträgt ca. 1.429 m² und befindet sich in Westhanglage mit direktem Anschluss an den angrenzenden Wald. Die großzügigen Wohnungen mit 5 bis 6 Zimmern bieten höchsten Wohnkomfort auf bis zu vier Etagen, mit Flächen von ca. 200 m² bis über 250 m². Ein besonderes Highlight ist die Maisonette-Penthousewohnung mit drei Außenbereichen sowie der Option zur Errichtung eines privaten Außenpools.
Das Gebäude umfasst ein Untergeschoss mit Tiefgarage, ein Erd- und ein Obergeschoss sowie eine exklusive Maisonettewohnung über zwei Ebenen. Jede Einheit ist bequem über einen Aufzug mit direktem Zugang erreichbar. Zur Ausstattung zählen bodentiefe Fenster, lichte Raumhöhen von ca. 2,90 m – im Penthouse bis 4,50 m – sowie großzügige Garten-, Balkon- oder Terrassenflächen mit Westausrichtung.
Die hochwertige Ausstattung umfasst geölte Eichen-Landhausdielen, Fußbodenheizung mit Kühlfunktion, Sonnenschutzsysteme mit zentraler Steuerung sowie moderne Aluminiumfenster mit 3-fach-Verglasung. Die Bäder sind mit großformatigen Fliesen, eleganten Sanitärobjekten von Hansgrohe und Duravit sowie bodengleichen Duschen ausgestattet.
Das Effizienzhaus 55 wird mit einer Sole-Wasser-Wärmepumpe beheizt. Eine Photovoltaikanlage sowie eine Regenwasserzisterne sorgen für eine nachhaltige Energie- und Ressourcennutzung.
Individuelle Grundrisswünsche können in Abstimmung mit dem Architektenteam realisiert werden. So entsteht ein maßgeschneidertes Zuhause, das höchste Ansprüche erfüllt.


Bausubstanz & Energieausweis

Objektzustand
Projektiert
Heizungsart
Fußbodenheizung
Befeuerung
Wärmepumpe

Lagebeschreibung

Die Panoramastraße 109 liegt inmitten der begehrten Heidelberger Südstadt, einem Stadtteil, der sich durch seine ruhige, naturnahe Umgebung und seine urbane Lebensqualität gleichermaßen auszeichnet. Eingebettet in eine gewachsene, gehobene Nachbarschaft mit viel Grün, grenzt das Grundstück direkt an den Waldrand und bietet einen herrlichen Ausblick ins Grüne sowie in die Rheinebene.
Dank der fußläufig erreichbaren Straßenbahnhaltestelle ist eine direkte und bequeme Anbindung an die Heidelberger Innenstadt, den Hauptbahnhof und die umliegenden Stadtteile gewährleistet. Auch mit dem Auto profitieren Sie von einer schnellen Anbindung an die Bundesstraßen B3 und B37 sowie an die Autobahn A5.
Einkaufsmöglichkeiten, Cafés aber auch Restaurants, Ärzte, Apotheken sowie verschiedene Bildungs- und Betreuungseinrichtungen befinden sich in unmittelbarer Nähe. In nur wenigen Minuten erreichen Sie das Zentrum von Heidelberg mit seiner historischen Altstadt, dem renommierten Universitätsklinikum und zahlreichen kulturellen Angeboten.


Die Heidelberger Südstadt vereint urbanes Leben mit naturnaher Umgebung und hervorragender Anbindung.


Wohnung finden so einfach wie möglich - das ist unsere Mission!

Kostenlose Basic Features

0 € monatlich


  • Individuelles Such-Profil anlegen
  • Suchaufträge speichern
  • One-Klick Kontaktaufnahme

alles anzeigen

Jetzt kostenlos anmelden

Premium Features

19,99 € monatlich


  • Alle kostenlosen Features
  • Smart-Alarm per Whatsapp
  • Deine Chancen checken
  • Wohngegend analysieren

alles anzeigen

Jetzt Premium freischalten

Gewerblicher Anbieter

Volksbank Kurpfalz eG
Hauptstraße 46
69117 Heidelberg

Wohnglück-ID:
Objekt-Nr.:
WGL-780043
0-1791