BĂĽro / Praxen in FĂĽrstenfeldbruck

Balkon/­Terrasse
Denkmalschutz
Garten/­-mitbenutzung
Gäste WC
Keller
Garage/­Stellplatz

Repräsentative Kanzlei/Bürofläche oder Ärztehaus in einem stilvoll sanierten Herrenhaus

Anfragen bisher

Premium

Meine Chancen

Premium

Fairer Preis

Premium

Auf Anfrage

Kaufpreis

231 m²

6 Zi.

Grundriss

82256 FĂĽrstenfeldbruck

Gewerblicher Anbieter

RealWert Bayern Immobilien- und Finanzierungsvermittlungs GmbH
WĂĽrmstraĂźe 4
82319 Starnberg

Details

Grundstücksfläche
800 m²
Bürofläche
310 m²
Zimmerzahl
6
Typ der Gewerbeimmobilie
BĂĽro / Praxen
Nutzfläche
310 m²
Bezugsfrei ab
sofort
Anzahl Badezimmer
3
Anzahl Garage/ Stellplatz
1
Objektzustand
Vollsaniert
Baujahr
1936

Kosten

Kaufpreis
Auf Anfrage
Käuferprovision
1,785 % Käuferprovision inkl. MwSt.
1,785 % Käuferprovision inkl. MwSt.
Was kostet dein Umzug?

Stellplätze

Stellplatztyp
Garage
Anzahl
3

Objektbeschreibung

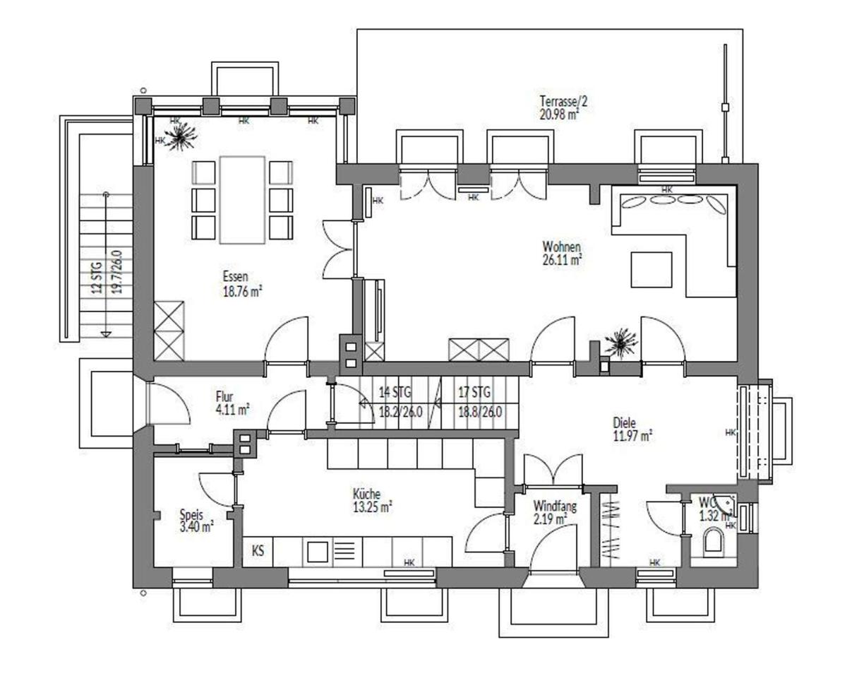
In einer ruhigen Sackgasse gelegen, erhebt sich diese eindrucksvolle Offiziers-Villa aus dem Jahr 1936 auf einem ca. 800 m² großen Grundstück – ein architektonisches Kleinod, das Geschichte atmet und zugleich modernen Wohnkomfort auf höchstem Niveau bietet. Die unter Berücksichtigung des Denkmalschutzes liebevoll sanierte Immobilie vereint authentisches Ambiente mit zeitgemäßer Ausstattung und überzeugt mit einer Gesamtnutzfläche von über ca. 300 m², davon ca. 231 m² Wohnfläche (lt. Berechnung).
Der gepflegte Außenbereich und die großzügig angelegte Zufahrt vermitteln das Gefühl von Eleganz und Grandezza, welches sich im Inneren fortsetzt. Das stilvolle Entree führt in die harmonisch verbundenen Räume, die durch eine repräsentative Doppelflügeltür verbunden sind und ein offenes, kommunikatives Raumgefühl schaffen. Ergänzt wird das Raumangebot durch eine praktische Abstellkammer, einen separaten Dienstboteneingang, einen Garderobenbereich sowie ein stilvolles WC.
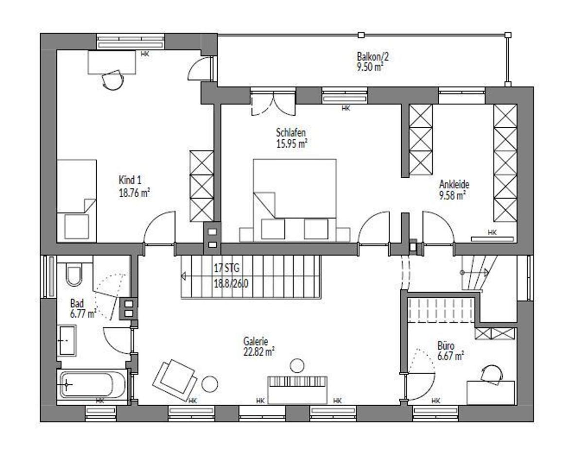
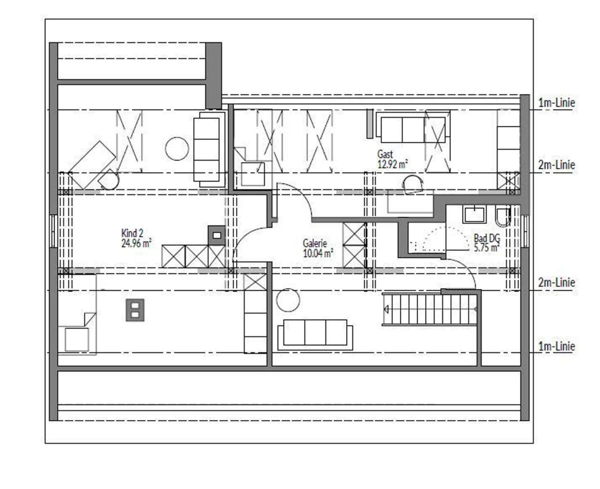
Über die original erhaltene Massivholztreppe gelangen Sie in das Obergeschoss. Dort empfängt Sie ein großzügiger Galeriebereich. Das Hauptschlafzimmer mit angeschlossener Ankleide, ein helles Tageslichtbad mit Dusche und Badewanne sowie ein Kinderzimmer und ein separates Homeoffice bieten Rückzugsorte mit Atmosphäre und Stil. Im Dachgeschoss erwarten Sie zwei weitere geräumige Zimmer sowie ein eigenes Duschbad – ideal als Gäste- oder Jugendbereich.
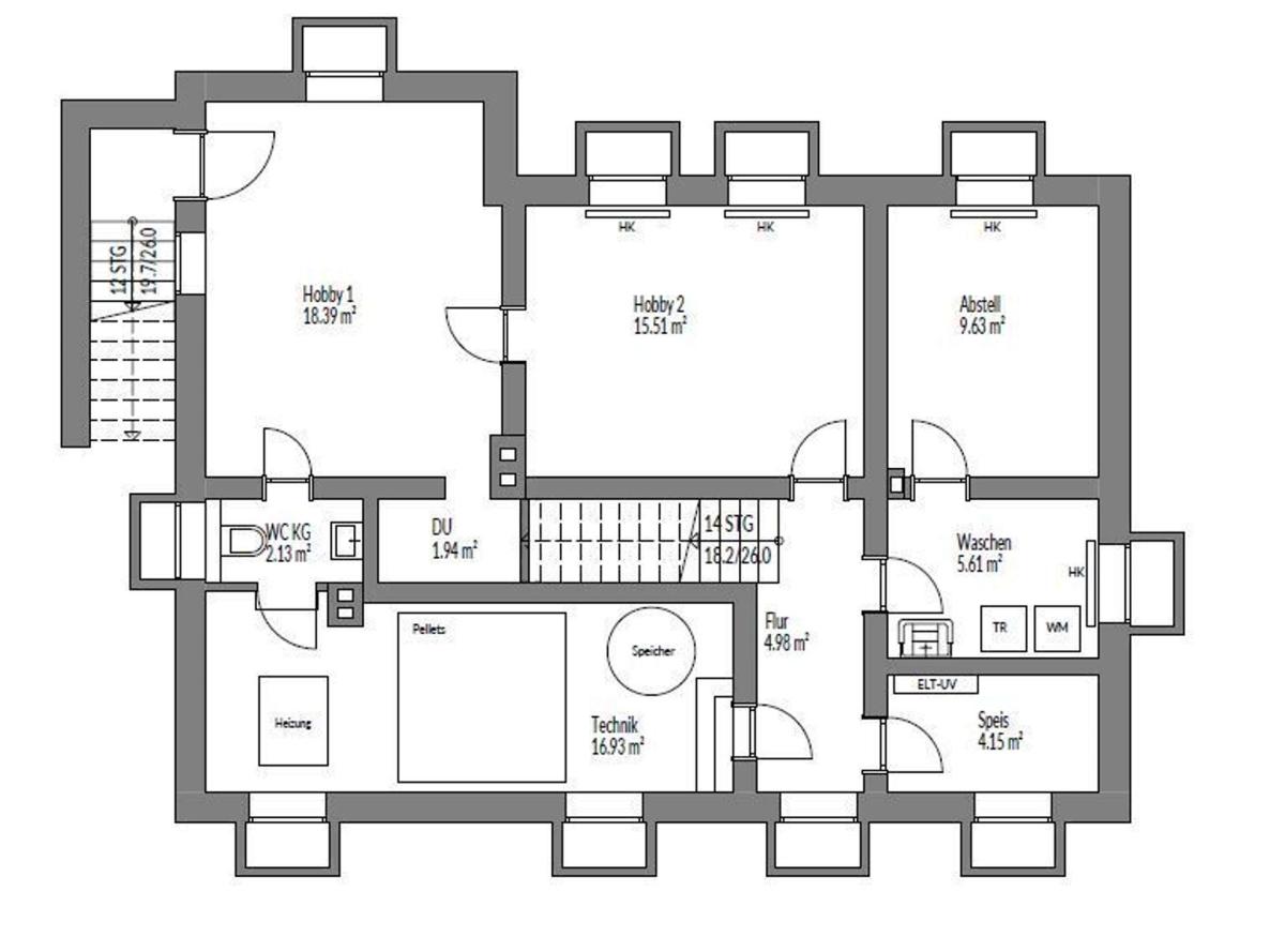
Im Kellergeschoss befindet sich ein hochwertig gestalteter Wellnessbereich mit eigenem Zugang ins Freie – ein exklusiver Ort der Entspannung. Darüber hinaus stehen ein vielseitig nutzbarer Gäste- oder Hobbybereich in Wohnraumqualität, eine Waschküche sowie ein Abstellraum zur Verfügung. Für Weinkenner ist der original erhaltene Weinkeller mit historischem Ziegelboden ein absolutes Highlight.
Technisch präsentiert sich die Villa auf dem neuesten Stand: Eine moderne Pelletheizung, ein großzügiger Warmwasserspeicher sowie eine Wasseraufbereitungsanlage sorgen für einen energieeffizienten Betrieb und zeitgemäßen Wohnkomfort.
Dieses herrschaftliche Anwesen ist weit mehr als ein Haus – es ist ein Lebensgefühl, das Tradition, Stil und zeitgemäßen Komfort in einzigartiger Weise miteinander verbindet.


Bausubstanz & Energieausweis

Objektzustand
Vollsaniert
Wesentlicher Energieträger
Holzpellets
Heizungsart
Zentralheizung
Befeuerung
Holz-Pelletheizung
Energieausweis
Laut Gesetz nicht erforderlich

Ausstattung

Allgemein:



  • Aus dem Jahr 1936

  • Sanierung unter Auflagen des Denkmalschutzes im Jahr 2025

  • GrundstĂĽck ca. 800 m²

  • Wohnfläche ca. 231 m² (lt. Plan)

  • Nutzfläche ca. 79 m² (lt. Plan)

  • Einzelgarage und zusätzlich 2 AuĂźenstellplätze

  • Deckenhöhen im EG und OG ca. 2,80 m

  • Original erhaltene, restaurierte ein- bzw. zweiflĂĽglige Doppelkastenfenster

  • Drei Badezimmer mit FuĂźbodenheizung, Duravit Badezimmerausstattung und bodengleichen Duschen mit Thermostat-Duschsystemen

  • Elektroinstallation auf neustem Stand, mit NetzwerkanschlĂĽssen in fast jedem Raum

  • Original erhaltene Massivholztreppe

  • Schön gestaltete Zufahrt bzw. Eingangsbereich


EG



  • Kaminanschluss fĂĽr gemĂĽtliche Winterabende in Wohn- bzw. Esszimmer

  • Moderne Treppenstufenbeleuchtung beim Treppengeländer

  • Historische MassivholzeingangstĂĽren mit Profilierungen

  • Separater Dienstboteneingang fĂĽr mehr Privatsphäre

  • Praktische Speisekammer

  • Eintritt in die Diele durch eine historische KassettentĂĽr

  • Die KĂĽche und die Diele sind mit Solnhofer Natursteinplatten ausgelegt, die restlichen Wohnräume mit restauriertem Echtholzparkett, das Wohnzimmer ist mit Eichen-Mosaikparkett ausgestattet


OG



  • Schlichte weiĂźe Stuckleisten an der Decke im Flur

  • Masterschlafzimmer mit eigener Ankleide und Zugang zum SĂĽd-Ostbalkon

  • Schwarze Holzfensterläden mit durchgehenden und feststehenden Lamellen


DG



  • Restaurierter Dielenboden

  • Modern restaurierte Dachpfeiler

  • Lichtdurchflutet auf Grund neuer Dachfenster


KG



  • Deckenspots im Keller

  • Ziegelboden im Weinkeller

  • Einen Technikraum mit Pelletheizung, Warmwasserspeicher und Wasseraufbereitungsanlage

  • Vorbereitet fĂĽr einen Wellnessbereich

  • Mit separatem Eingang, um die Etage abzutrennen und eine Wohnung fĂĽr beispielsweise Gäste/ Au-Pair


Lagebeschreibung

Die Immobilie befindet sich in einer der begehrtesten Wohnlagen von Fürstenfeldbruck – ruhig gelegen in einer wenig befahrenen Anliegerstraße in einem gewachsenen, historischen Villenviertel. Die Nachbarschaft ist geprägt von stilvollen Altbauten, gepflegten Gärten und einem hohen Maß an Privatsphäre. Hier verbinden sich Ruhe, Sicherheit und ein gehobenes Wohnumfeld mit hervorragender Anbindung an die städtische Infrastruktur.


Fürstenfeldbruck selbst zählt zu den attraktivsten Städten im westlichen Umland von München. Die Kombination aus urbaner Nähe, landschaftlicher Schönheit und historischem Charme macht die Kreisstadt zu einem besonders gefragten Wohnort. Die Innenstadt mit ihren charmanten Geschäften, Cafés, kulturellen Einrichtungen und dem bekannten Veranstaltungsforum ist in wenigen Minuten erreichbar.


Sämtliche Einrichtungen des täglichen Bedarfs – darunter Einkaufsmöglichkeiten, Kindergärten, Schulen und medizinische Versorgung – befinden sich in komfortabler Nähe. Die Anbindung an den öffentlichen Nahverkehr ist sehr gut: Der S-Bahnhof Fürstenfeldbruck sowie verschiedene Busverbindungen sorgen für eine schnelle Verbindung in die Münchner Innenstadt. Auch mit dem Auto ist die Landeshauptstadt über die B2 oder die nahegelegene A8 in rund 30 Minuten erreichbar.


Naturfreunde kommen ebenfalls auf ihre Kosten: Die Amperauen, der Stadtpark sowie zahlreiche Rad- und Wanderwege laden zu ausgedehnten Spaziergängen, sportlichen Aktivitäten oder entspannten Stunden im Grünen ein.


Insgesamt bietet diese Lage ein seltenes Zusammenspiel aus Ruhe, Stil und Urbanität – ideal für Menschen, die das Besondere schätzen und dabei auf eine hervorragende Infrastruktur nicht verzichten möchten.


DEN KAUFPREIS FINDEN SIE NACH ANFRAGE UNTER "SONSTIGES"


Sonstige Angaben

Das südlich angrenzende Grundstück mit einer Fläche von ca. 1.400 m² kann zusätzlich erworben werden.


Da es sich um ein denkmalgeschütztes Haus handelt, wird kein Energieausweis benötigt.


Wohnung finden so einfach wie möglich - das ist unsere Mission!

Kostenlose Basic Features

0 € monatlich


  • Individuelles Such-Profil anlegen
  • Suchaufträge speichern
  • One-Klick Kontaktaufnahme

alles anzeigen

Jetzt kostenlos anmelden

Premium Features

19,99 € monatlich


  • Alle kostenlosen Features
  • Smart-Alarm per Whatsapp
  • Deine Chancen checken
  • Wohngegend analysieren

alles anzeigen

Jetzt Premium freischalten

Gewerblicher Anbieter

RealWert Bayern Immobilien- und Finanzierungsvermittlungs GmbH
WĂĽrmstraĂźe 4
82319 Starnberg

WohnglĂĽck-ID:
Objekt-Nr.:
WGL-768309
1700-GW