Büro / Praxen in Schweinfurt

Aufzug
Keller

Ca. 182 m² Gewerbefläche für Büro oder Praxis in absolut zentraler Lage von Schweinfurt zu vermieten

Anfragen bisher

Premium

Meine Chancen

Premium

Fairer Preis

Premium

1.456 €

Kaltmiete

3 Zi.

3. OG

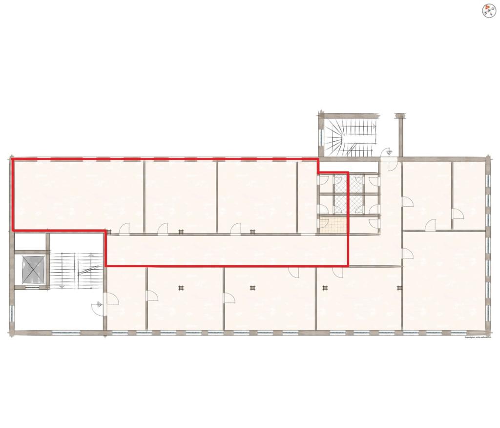
Grundriss

97421 Schweinfurt

Gewerblicher Anbieter

SpardaImmobilienWelt GmbH
Eilgustraße 9
90443 Nürnberg

Details

Bürofläche
182 m²
Zimmerzahl
3
Typ der Gewerbeimmobilie
Büro / Praxen
Etage, Geschoss
3
Objektzustand
Gepflegt
Baujahr
1910

Kosten

Kaltmiete
1.456 €
Was kostet dein Umzug?

Objektbeschreibung

Gewerbefläche für Büro oder Praxis in absolut zentraler Lage von Schweinfurt zu vermieten.


Die Gewerbeeinheit mit ca. 182 m² befindet sich im 3. OG und ist mittels Aufzug zu erreichen.


Stellplätze sind vorhanden, Sie können 10 Tiefgaragenstellplätze oder 18 Doppelparker anmieten.


Lassen Sie sich das Exposé mit weiteren Bildern zusenden. Bei einem Termin vor Ort können wir gerne alles Weitere besprechen.


Hinweis: Derzeit bildet das gesamte Obergeschoss eine Gewerbeeinheit. Die räumliche Trennung wird mit Anmietung der Teilfläche vollzogen.


Bausubstanz & Energieausweis

A+

A

B

C

D

121,3 kWh/(m²*a)

E

F

G

H

Baujahr
1910
Objektzustand
Gepflegt
Wesentlicher Energieträger
FERN
Heizungsart
Sonstige
Energieausweis
liegt vor
Energieausweistyp
Bedarfsausweis
Gültig bis
10.03.2034
Energieeffizienzklasse
D
Endenergiebedarf
121,3 kWh/(m²*a)

Ausstattung


  • flexible Ständerwände

  • Toiletten Damen/Herren + separater Abstellraum mit Wasseranschluss

  • Teppichböden

  • EDV-Verkabelung

  • Tiefgaragenstellplätze und Duplexparker möglich

  • sofortiger Mietbeginn möglich

  • Kellerraum vorhanden


Lagebeschreibung

Die kreisfreie Stadt Schweinfurt/Bayern mit ihren rund 53.500 Einwohnern ist Verwaltungssitz des Landkreises Schweinfurt, Oberzentrum, Hochschul-, Schul-Verwaltungsstadt und fränkischer Weinort.


Schweinfurt liegt mit ihren drei Anbindungen an die A70 und eine Anbindung an die A71 verkehrstechnisch sehr günstig. Mit Regionalbahn- und Regionalexpresszügen ist die Stadt Schweinfurt an den Schienennahverkehr angebunden, der Hafen Schweinfurt liegt im Wasserstraßenverkehrsnetz Mitteleuropas, das den Osten und den Westen verbindet. Selbstverständlich pendeln die städtischen Busse regelmäßig, sodass Sie auch ohne Auto die vielfältigen sportlichen und kulturellen Veranstaltungen der Stadt besuchen können.


Sonstige Angaben

UNSER SERVICE FÜR SIE ALS EIGENTÜMER:


Planen Sie den Verkauf oder die Vermietung Ihrer Immobilie, so ist es für Sie wichtig, deren Marktwert zu kennen.


Lassen Sie kostenfrei und unverbindlich den aktuellen Wert Ihrer Immobilie professionell durch einen unserer SIW-Immobilienspezialisten einschätzen. Auf Wunsch erledigen wir für Sie den gesamten Verkaufsprozess von der Bewertung bis zur Schlüsselübergabe.....ganz nach Ihren individuellen Bedürfnissen und Wünschen.


Wir freuen uns auf Ihre Kontaktaufnahme unter 0911-2477 7500 oder zuhause@spardaimmobilienwelt.de


Wohnung finden so einfach wie möglich - das ist unsere Mission!

Kostenlose Basic Features

0 € monatlich


  • Individuelles Such-Profil anlegen
  • Suchaufträge speichern
  • One-Klick Kontaktaufnahme

alles anzeigen

Jetzt kostenlos anmelden

Premium Features

19,99 € monatlich


  • Alle kostenlosen Features
  • Smart-Alarm per Whatsapp
  • Deine Chancen checken
  • Wohngegend analysieren

alles anzeigen

Jetzt Premium freischalten

Gewerblicher Anbieter

SpardaImmobilienWelt GmbH
Eilgustraße 9
90443 Nürnberg

Wohnglück-ID:
Objekt-Nr.:
WGL-751566
SIW-3491_1