Bungalow in Sankt Ingbert (Rentrisch)

Einliegerwohnung
Garten/­-mitbenutzung
Garage/­Stellplatz

Großzügiger Bungalow mit Weitblick und Potenzial in St. Ingbert-Rentrisch - ideal für Familien

Anfragen bisher

Premium

Meine Chancen

Premium

Fairer Preis

Premium

249.000 €

Kaufpreis

159 m²

7 Zi.

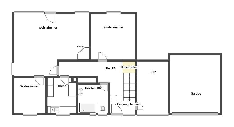
Grundriss

66386 St. Ingbert

Gewerblicher Anbieter

Bank 1 Saar Immobilien GmbH
Kaiserstr. 17-19
66111 Saarbrücken

Details

Grundstücksfläche
815 m²
Zimmerzahl
7
Haustyp
Bungalow
Etagenzahl
2
Anzahl Schlafzimmer
5
Anzahl Badezimmer
2
Anzahl Garage/ Stellplatz
1
Letzte Modernisierung/ Sanierung
2010
Baujahr
1969

Kosten

Kaufpreis
249.000 €
Käuferprovision
3,57 %
Was kostet dein Umzug?

Stellplätze

Stellplatztyp
Freiplatz
Anzahl
2

Objektbeschreibung

In begehrter, ruhiger Wohnlage von St. Ingbert-Rentrisch erwartet Sie dieser charmante, einseitig Bungalow mit herrlichem Weitblick ins Grüne. Das ca. 1969 erbaute Einfamilienhaus überzeugt mit einem durchdachten Grundriss, viel Platz und einem großzügigen Grundstück in Hanglage.


Das Haus erstreckt sich über ein Erdgeschoss mit großem Balkon sowie ein voll unterkellertes Untergeschoss, das über einen separaten Außenzugang auch als Einliegerwohnung oder Büroeinheit nutzbar ist. Die große Garage mit elektrischem Tor sowie ein gepflegter Garten mit Terrasse runden das Gesamtbild ab.


Ob Familien, Zwei-Generationen-Konstellationen oder Eigennutzer mit Vermietungsabsicht – hier bietet sich ein vielseitig nutzbares Zuhause mit viel Potenzial und traumhafter Aussichtslage.


Im Erdgeschoss befinden sich zwei Schlafzimmer, ein Tageslichtbad, ein großzügiger Wohn-/Essbereich mit Zugang zum Balkon und eine Küche. Der trockene Keller verfügt über drei wohnlich ausgebaute Räume, weitere Nebenflächen und ein zweites Badezimmer.


Das Haus befindet sich in einem gepflegten Zustand, weist jedoch Renovierungs- und Sanierungsbedarf auf – eine hervorragende Gelegenheit für Käufer, die ihr zukünftiges Zuhause nach eigenen Vorstellungen gestalten möchten.


Fazit:
Ein massiv gebauter Bungalow in ruhiger Lage mit separater Einheit im Untergeschoss, traumhaftem Weitblick und vielseitigen Nutzungsmöglichkeiten. Ob Mehrgenerationenwohnen, Eigennutzung mit Einliegerwohnung oder als Anlageobjekt – dieses Haus bietet die ideale Grundlage für Ihr neues Zuhause.


Wir freuen uns auf Ihre Kontaktaufnahme! Ihr Immobilienspezialist im Saarland.


Bausubstanz & Energieausweis

A+

A

B

C

D

E

F

G

228,2 kWh/(m²*a)

H

Baujahr
1969
Letzte Modernisierung
2010
Wesentlicher Energieträger
Öl
Heizungsart
Zentralheizung
Befeuerung
Ölheizung
Energieausweis
liegt vor
Energieausweistyp
Bedarfsausweis
Ausstellungsdatum
17.05.2024
Gültig bis
16.05.2034
Energieeffizienzklasse
G
Endenergiebedarf
228,2 kWh/(m²*a)

Ausstattung

Individuelle Ausstattungsmerkmale:

- Garage/ Stellplatz

Ausstattungsmerkmale im Überblick



  • Einseitig angebauter Bungalow, Baujahr ca. 1969

  • Voll unterkellert mit separatem Zugang zum Untergeschoss

  • Großes Grundstück mit unverbaubarem Weitblick

  • Großer Balkon im EG und Terrasse im Garten

  • Garage mit elektrischem Tor

  • Zentrale Öl-Brennwertheizung (2010) mit Solarthermie-Anlage (2 Paneele, ca. 2000)

  • Fenster: 2-fach verglaste Kunststofffenster mit Rollläden

  • Satteldach mit Fertigziegelelementen

  • Böden: Überwiegend Fliesen und Laminat

  • Zwei Schlafzimmer und Wohn-/Esszimmer im EG

  • Drei wohnlich nutzbare Räume im UG, Tageslichtbad

  • Renovierungs- und Sanierungsbedarf vorhanden

  • Zeitnahe Übergabe an Käufer möglich


Lagebeschreibung

Die Immobilie liegt in ruhiger und dennoch verkehrsgünstiger Lage in St. Ingbert-Rentrisch, einem beliebten Stadtteil von St. Ingbert mit hohem Wohnwert. Die Friedlandstraße ist eine wenig befahrene Nebenstraße – ideal für Familien und Ruhesuchende.


Die Innenstadt von St. Ingbert erreichen Sie in wenigen Fahrminuten. Auch die Autobahnanschlüsse in Richtung Saarbrücken und Kaiserslautern sind in kürzester Zeit erreichbar. Öffentliche Verkehrsmittel, wie Bus und Bahn, stehen ebenfalls in der Nähe zur Verfügung und sorgen für eine gute Anbindung an das regionale Verkehrsnetz.


Einkaufsmöglichkeiten, Schulen, Kindergärten sowie medizinische Versorgung finden Sie in Rentrisch und der Kernstadt St. Ingbert – ebenso wie zahlreiche Freizeit- und Naherholungsangebote.


Sonstige Angaben

Fragen Sie nach einer Finanzierung durch unsere Hausbank die Bank1Saar - Sie bekommen sehr kurzfristig einen persönlichen Termin für eine Baufinanzierungsberatung. Dank regionaler Fachexpertise können wir schnell ein attraktives Angebot unterbreiten und Ihren Traum vom Haus kompetent realisieren!


Wohnung finden so einfach wie möglich - das ist unsere Mission!

Kostenlose Basic Features

0 € monatlich


  • Individuelles Such-Profil anlegen
  • Suchaufträge speichern
  • One-Klick Kontaktaufnahme

alles anzeigen

Jetzt kostenlos anmelden

Premium Features

19,99 € monatlich


  • Alle kostenlosen Features
  • Smart-Alarm per Whatsapp
  • Deine Chancen checken
  • Wohngegend analysieren

alles anzeigen

Jetzt Premium freischalten

Gewerblicher Anbieter

Bank 1 Saar Immobilien GmbH
Kaiserstr. 17-19
66111 Saarbrücken

Wohnglück-ID:
Objekt-Nr.:
WGL-727485
006938#eBkRJ