Mehrfamilienhaus in Hetzerath

Balkon/­Terrasse
derzeit vermietet
Gäste WC
Keller
Einbauküche
Garage/­Stellplatz

Vollvermietet & renditestark – Kapitalanlage in Hetzerath mit über 5,5 % p.a.

Anfragen bisher

Premium

Meine Chancen

Premium

Fairer Preis

Premium

1.050.000 €

Kaufpreis

475,44 m²

15 Zi.

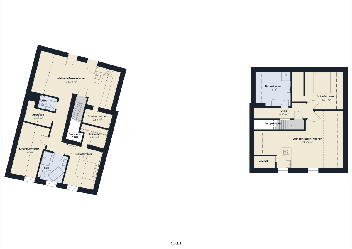
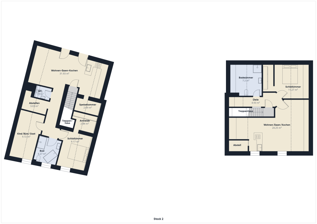
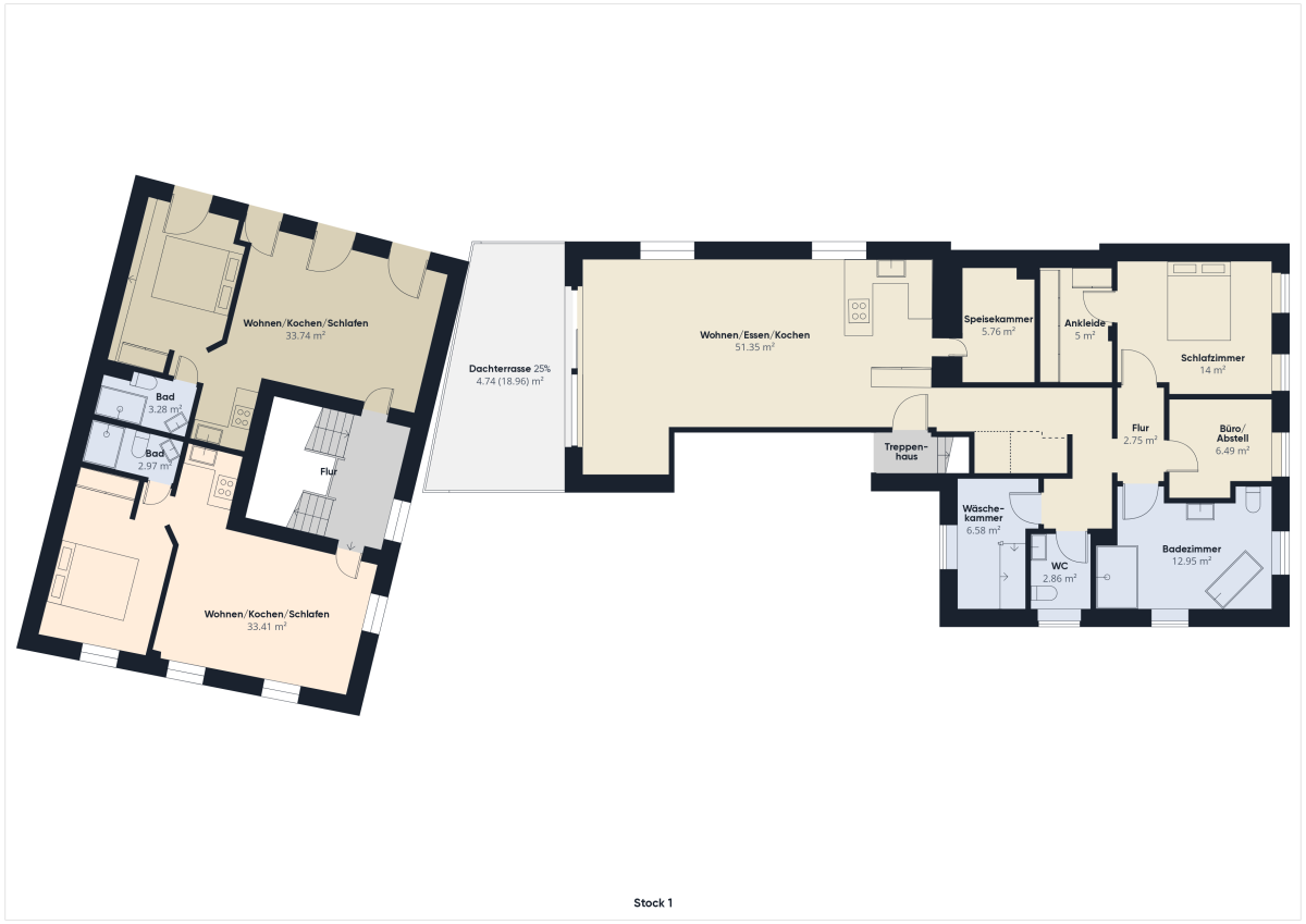
Grundriss

54523 Hetzerath

Gewerblicher Anbieter

Friedmann Immobilien GmbH
Am Wissenschaftspark 11
54296 Trier

Details

Grundstücksfläche
457 m²
Zimmerzahl
15
Haustyp
Mehrfamilienhaus
Etagenzahl
3
Bezugsfrei ab
Nach Absprache.
Anzahl Schlafzimmer
9
Anzahl Badezimmer
7
Anzahl Garage/ Stellplatz
1
Objektzustand
Vollsaniert
Letzte Modernisierung/ Sanierung
2022

Kosten

Kaufpreis
1.050.000 €
Käuferprovision
3,57 % (inkl. 19 % USt.)
Die Provision ist verdient und fällig unmittelbar nach Abschluss des Kaufvertrages.
Was kostet dein Umzug?

Stellplätze

Stellplatztyp
Freiplatz
Anzahl
7

Objektbeschreibung

Solide investieren und von Anfang an profitieren – dieses vollvermietete 6-Parteien-Mehrfamilienhaus in attraktiver Lage von Hetzerath bietet Ihnen als Kapitalanleger eine starke Bruttorendite von über 5,5 %. Die kernsanierte, gut ausgestattete Immobilie überzeugt mit stabilem Mietertrag, gutem Zustand und einer zukunftssicheren Lage in Nähe zur Wirtschaftsregion Trier. Das Objekt besteht aus zwei nebeneinanderliegenden Gebäuden mit je drei Wohnungen. Haus 1 wurde 2007 kernsaniert und 2022 vom Wohn- und Geschäftshaus in ein reines Wohnhaus umgewandelt. Im Zuge dessen ist die Erdgeschosswohnung neu entstanden. Haus 2 wurde erst 2020/2021 final fertiggestellt. Zur Immobilie gehören insgesamt 6 Außenstellplätze und eine große, in Haus 2 integrierte Garage. Es sind zwei Heizanlagen installiert, weshalb auch eine spätere Trennung beider Gebäude möglich wäre.


Ob als langfristige Anlage zur Vermögenssicherung oder als Baustein für den Vermögensaufbau – dieses Objekt bietet Ihnen eine rentable, risikoarme Investitionsmöglichkeit mit Potenzial.
Nutzen Sie die Gelegenheit und sichern Sie sich ein Investment, das heute schon Ertrag bringt und morgen weiter wächst.


Die Fotos in dieser Anzeige zeigen Wohnung 1 vor der Neuvermietung. Zum Schutz der Privatsphäre der aktuellen Mieter können wir keine Fotos der bewohnten Einheiten veröffentlichen.


Das vollständige Exposé erhalten Sie nach Ihrer Anfrage über den Button „Anbieter kontaktieren“ in dieser Anzeige. Gerne beantworten wir Ihre Fragen und stehen für ein persönliches Gespräch in unserem Büro oder vor Ort gerne zur Verfügung.


Bausubstanz & Energieausweis

A+

A

B

C

D

E

F

G

H

Objektzustand
Vollsaniert
Letzte Modernisierung
2022
Wesentlicher Energieträger
Luftwärmepumpe
Heizungsart
Wärmepumpe
Befeuerung
Wärmepumpe
Energieausweis
liegt vor
Energieausweistyp
Bedarfsausweis
Ausstellungsdatum
09.05.2019
Gültig bis
08.05.2029
Energieeffizienzklasse
A_PLUS
Endenergiebedarf
18,6 kWh/(m²*a)

Lagebeschreibung

Hetzerath ist eine charmante Gemeinde im malerischen Landkreis Bernkastel-Wittlich, eingebettet in die sanften Hügel der Moselregion. Die idyllische Lage bietet eine perfekte Kombination aus ländlicher Ruhe und guter Erreichbarkeit zu den umliegenden Städten Trier, Schweich und Wittlich.


Die Anbindung an die Verkehrsinfrastruktur ist hervorragend. Hetzerath liegt in unmittelbarer Nähe zur Autobahn A1, die eine schnelle Verbindung zu den genannten Städten und darüber hinaus auch bspw. nach Koblenz oder Saarbrücken ermöglicht. Auch der öffentliche Nahverkehr ist gut ausgebaut, sodass die Bewohner bequem die umliegenden Orte erreichen können.


In Hetzerath selbst finden sich alle Einrichtungen des täglichen Bedarfs, wie Einkaufsmöglichkeiten, Schulen und Freizeitangebote, die den Alltag der Bewohner bereichern. Im Industriepark Region Föhren, genau zwischen Hetzerath und Föhren gelegen, sind rund 80 Firmen ansässig, die zahlreiche Arbeitsplätze zur Verfügung stellen und Wohnungen dadurch stets gefragt sind.


Sonstige Angaben

Die Kaltmiete beträgt insgesamt 4.840 € / Monat bzw. 58.080 € / Jahr (je inkl. Stellplätze).


Wohnung finden so einfach wie möglich - das ist unsere Mission!

Kostenlose Basic Features

0 € monatlich


  • Individuelles Such-Profil anlegen
  • Suchaufträge speichern
  • One-Klick Kontaktaufnahme

alles anzeigen

Jetzt kostenlos anmelden

Premium Features

19,99 € monatlich


  • Alle kostenlosen Features
  • Smart-Alarm per Whatsapp
  • Deine Chancen checken
  • Wohngegend analysieren

alles anzeigen

Jetzt Premium freischalten

Gewerblicher Anbieter

Friedmann Immobilien GmbH
Am Wissenschaftspark 11
54296 Trier

Wohnglück-ID:
Objekt-Nr.:
WGL-725470
HELHS63