Wohn-Grundstück in Stade

Baugrundstück für Ihr Wohnprojekt

Anfragen bisher

Premium

Meine Chancen

Premium

Fairer Preis

Premium

580.000 €

Kaufpreis

21683 Stade

Gewerblicher Anbieter

OVB-Immobilien GmbH
Sietwender Straße 2
21706 Drochtersen

Details

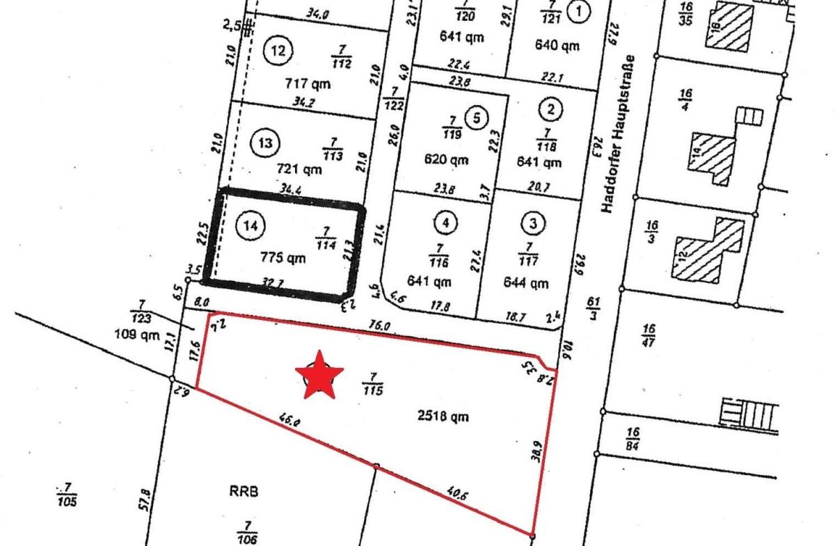
Grundstücksfläche
2.518 m²
Typ des Grundstücks
Wohn-Grundstück

Kosten

Kaufpreis
580.000 €
Käuferprovision
3,57 %
Die Käufer-Provision ist verdient und fällig mit notarieller Beurkundung. Mit dem Verkäufer wurde ein provisionspflichtiger Maklervertrag in gleicher Höhe abgeschlossen.
Was kostet dein Umzug?

Objektbeschreibung

Gut geschnittenes Baugrundstück am Ortsrand von Stade-Haddorf zu verkaufen, bevorzugt für ein größeres Wohnprojekt.


Bausubstanz & Energieausweis

Heizungsart
Sonstige

Ausstattung


  • Grundstücksgröße 2.518 qm

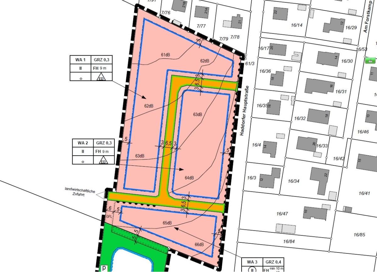
  • Bebauungsplan Nr. 246, Hansestadt Stade

  • 2 Vollgeschosse vorgeschrieben

  • Firsthöhe min 10 m max. 12 m

  • GRZ 0,4


Lagebeschreibung

Neubaugebiet am Rande von Stade-Haddorf.
Bushaltestellen erreichen Sie in nur wenigen Gehminuten. Fußläufig liegen außerdem Discounter, ein Supermarkt, Baumärkte und viele andere Einkaufsmöglichkeiten. Kindergarten und Grundschule befinden sich nur 5 min Fußweg entfernt.
Der Ortsteil Haddorf mit rund 2.500 Einwohnern liegt in ländlich geprägter Umgebung und ist ca. 6 km von der Stader Innenstadt entfernt.
Die Stadt Stade ist die Kreisstadt des gleichnamigen Landkreises und hat rund 46.000 Einwohner. Stade liegt an der Schwinge in unmittelbarer Nähe zur Elbe, eingebettet in den schönen Regionen Kehdingen und Altes Land. Die sehenswerte Altstadt von Stade lädt zum gemütlichen Bummeln und Shoppen ein. Nur etwa 45 Kilometer westlich von Hamburg gelegen gehört Stade bereits zur Metropolregion Hamburg und verfügt auch aufgrund dessen über regelmäßige Zug- und S-Bahn-Verbindungen in die große Hansestadt.


Sonstige Angaben

Bitte nutzen Sie das entsprechende Kontaktformular, damit wir Ihnen unser ausführliches Exposé zur Verfügung stellen können. Wir bitten um Verständnis, dass wir Informationen zu unseren Objekten nur erteilen, wenn Sie bei Ihrer Anfrage Ihre vollständige Adresse, E-Mail und Telefonnummer angeben. Telefonisch erreichen Sie den Ansprechpartner für diese Immobilie unter 04143 - 9901 4931.


VERBRAUCHERINFO:



  1. Maklerleistung ist der Nachweis der Gelegenheit zum Abschluss eines Vertrages bzw. Vermittlung eines Vertrages über eine Immobilie gegen die Courtagezahlungspflicht des Kunden

  2. Unternehmer, Anschrift, Beschwerdeadressat
    OVB-Immobilien GmbH, Mühlenstraße 6-12, 26789 Leer
    Tel.: 0491-9272200, Fax: 0491-9272202
    GF: Georg Alder, Thomas Lüken, Carola Meyer-Diekmann

  3. Es besteht ein Widerrufsrecht

  4. Wir haben einen provisionspflichtigen Maklervertrag in gleicher Höhe mit dem Verkäufer abgeschlossen (§656c BGB)

  5. Wir verweisen auf unsere Allgemeinen Geschäftsbedingungen


Wohnung finden so einfach wie möglich - das ist unsere Mission!

Kostenlose Basic Features

0 € monatlich


  • Individuelles Such-Profil anlegen
  • Suchaufträge speichern
  • One-Klick Kontaktaufnahme

alles anzeigen

Jetzt kostenlos anmelden

Premium Features

19,99 € monatlich


  • Alle kostenlosen Features
  • Smart-Alarm per Whatsapp
  • Deine Chancen checken
  • Wohngegend analysieren

alles anzeigen

Jetzt Premium freischalten

Gewerblicher Anbieter

OVB-Immobilien GmbH
Sietwender Straße 2
21706 Drochtersen

Wohnglück-ID:
Objekt-Nr.:
WGL-661591
4_198a