Doppelhaushälfte in Gaggenau

Balkon/­Terrasse
Dachboden
Einliegerwohnung
Garten/­-mitbenutzung
Gäste WC
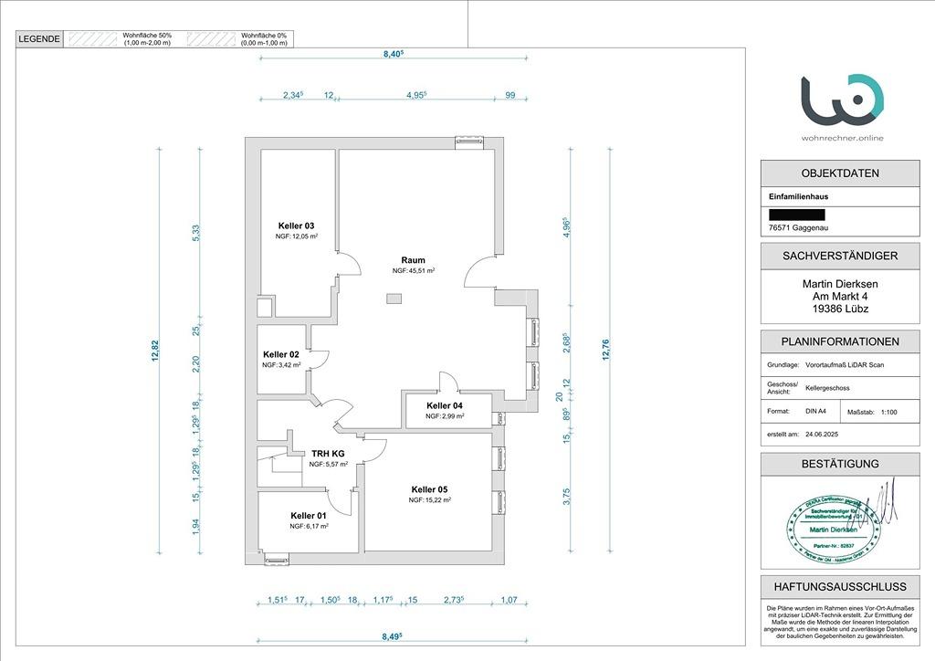
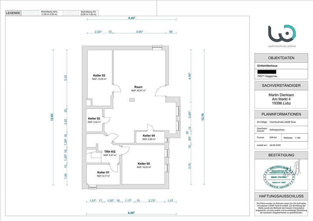
Keller
Einbauküche
Garage/­Stellplatz
 

Anfragen bisher

Premium

Meine Chancen

Premium

Fairer Preis

Premium

680.000 €

Kaufpreis

240 m²

7 Zi.

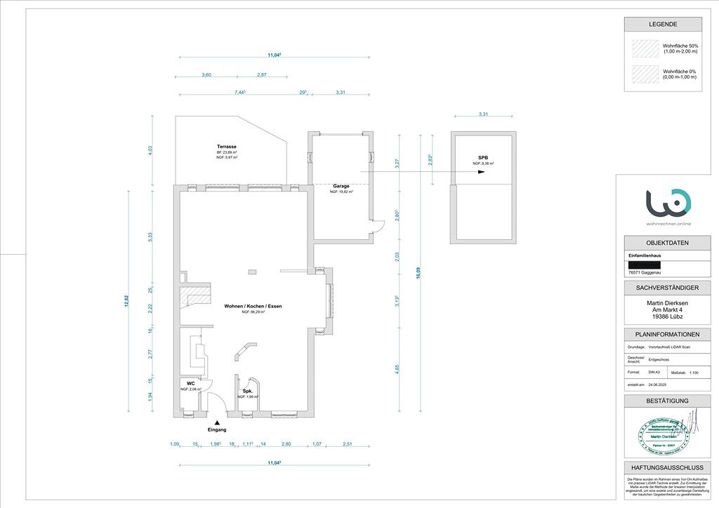
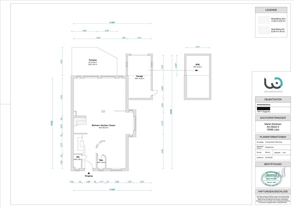
Grundriss

76571 Gaggenau

Privater Anbieter

Details

Grundstücksfläche
408 m²
Zimmerzahl
7
Haustyp
Doppelhaushälfte
Nutzfläche
60 m²
Bezugsfrei ab
01.09.2025
Anzahl Schlafzimmer
4
Anzahl Badezimmer
1
Anzahl Garage/ Stellplatz
2
Objektzustand
Gepflegt
Baujahr
2002

Kosten

Kaufpreis
680.000 €
Was kostet dein Umzug?

Stellplätze

Stellplatztyp
Freiplatz
Anzahl
2
Stellplatztyp
Garage
Anzahl
1

Objektbeschreibung

Dieses großzügige Zuhause bietet alles, was Familien oder Paare mit Platzbedarf suchen: Lichtdurchflutete Räume, eine hochwertige Ausstattung, einen gepflegten Garten mit großer Südterrasse - und das Ganze eingebettet in die Natur des Sonnenplateaus oberhalb Gaggenaus. Nach Gaggenau, Ettlingen oder Malsch sind es nur wenige Minuten.

Das Haus ist voll unterkellert und bietet die Möglichkeit, Wohnen und Arbeiten unter einem Dach zu vereinen. Eine hochwertige Dämmung der Fassade und des Daches tragen zu einer sehr guten energetischen Qualität bei. Zudem wurden 2022 eine Wärmepumpe eingebaut und die Fassade renoviert.

Aufteilung:
Das EG besteht aus einem weitläufigen, offenen Wohn-/Essbereich mit Fußbodenheizung und Kamin, einer hochwertigen Einbauküche mit angeschlossener Vorratskammer sowie einem Gäste-WC.

Im OG befinden sich 4 helle, großzügige Zimmer und ein großes Badezimmer mit Fußbodenheizung. Zudem führt eine Holztreppe zu einem offenen, ausgebauten Dachgeschossbereich.

Im Keller findet sich neben den üblichen Nutzräumen (u.a. großzügiger Hauswirtschaftsraum mit Podest für Waschmaschine und Trockner) ein großer Bereich mit separatem Außenzugang, der z.B. als Büro oder Hobbyraum genutzt werden kann; auch ein Ausbau als Einliegerwohnung ist denkbar.

Lage

Die Immobilie befindet sich in einem idyllischen, familienfreundlichen Wohngebiet. Freiolsheim liegt zentral zwischen Gaggenau, Ettlingen und Malsch. Die Nähe zu Karlsruhe macht den Standort für Berufspendler und Kulturfreunde besonders attraktiv. Geschäfte, Kindergarten, Grundschule, Ärzte, Apotheken, Schwimmbäder und Sportvereine sind in wenigen Minuten erreichbar. Für Naturliebhaber ist der Ort ein Paradies.


Ausstattung

- Massivbau
- Internet bis 250 Mbit/s
- Wärmepumpe (2022, 31.000 €)
- Fassade renoviert (2022)
- Fußbodenheizung EG und Bad
- Garage mit Automatiktor, 2 Außenstellplätze
- Gegensprechanlagen
- EBK mit hochwertigen Markengeräten (Bosch, Siemens, Neff)
- Balkon und Terrasse mit Südausrichtung
- Gäste-WC
- Holztreppe nach oben/Holztüren
- Duschbad
- Fliesen und Laminat


BITTE KEINE MAKLERANFRAGEN



Bausubstanz & Energieausweis

Objektzustand
Gepflegt
Wesentlicher Energieträger
Strom
Heizungsart
Wärmepumpe
Energieausweis
liegt vor
Energieausweistyp
Bedarfsausweis
Endenergiebedarf
48,4 kWh/(m²*a)

Wohnung finden so einfach wie möglich - das ist unsere Mission!

Kostenlose Basic Features

0 € monatlich


  • Individuelles Such-Profil anlegen
  • Suchaufträge speichern
  • One-Klick Kontaktaufnahme

alles anzeigen

Jetzt kostenlos anmelden

Premium Features

19,99 € monatlich


  • Alle kostenlosen Features
  • Smart-Alarm per Whatsapp
  • Deine Chancen checken
  • Wohngegend analysieren

alles anzeigen

Jetzt Premium freischalten

Privater Anbieter

Wohnglück-ID:
Objekt-Nr.:
WGL-661311