Einfamilienhaus freistehend in Schülp

Balkon/­Terrasse
derzeit vermietet
Einbauküche
Garage/­Stellplatz

Einfamilienhaus in ländlicher Lage mit großem Grundstück - vermietet

Anfragen bisher

Premium

Meine Chancen

Premium

Fairer Preis

Premium

120.000 €

Kaufpreis

90 m²

3,5 Zi.

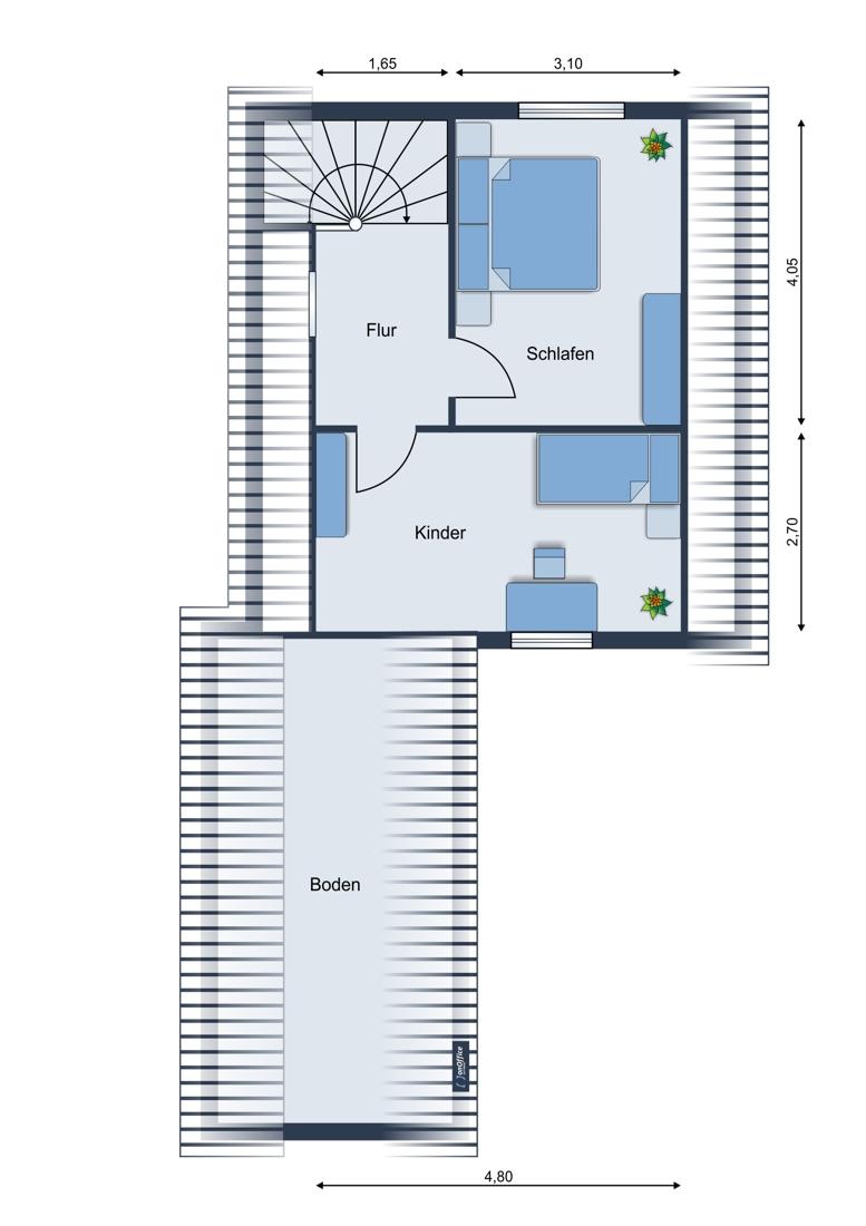
Grundriss

25764 Schülp

Gewerblicher Anbieter

Werth Immobilien GbR
Am Markt 24
25746 Heide

Details

Grundstücksfläche
904 m²
Zimmerzahl
3,5
Haustyp
Einfamilienhaus freistehend
Bezugsfrei ab
nach Vereinbarung
Anzahl Schlafzimmer
2
Anzahl Badezimmer
1
Anzahl Garage/ Stellplatz
1
Objektzustand
Renovierungsbedürftig
Baujahr
1959

Kosten

Kaufpreis
120.000 €
Käuferprovision
3,57 % inkl. MwSt.
Was kostet dein Umzug?

Stellplätze

Stellplatztyp
Freiplatz
Anzahl
1

Objektbeschreibung

Diese im Jahr 1959 errichtete Immobilie befindet sich in ländlicher Lage in der Gemeinde Schülp (Dithmarschen) und bietet eine attraktive Grundstücksgröße von ca. 904 m². Das Wohnhaus verfügt über eine Wohn- und Nutzfläche* von insgesamt ca. 90 m², ergänzt durch ca. 57 m² zusätzliche Abstellräume, die im Jahr 2000 teilweise angebaut wurden.


Im Erdgeschoss befinden sich ein Eingangsbereich, ein Wohnzimmer, ein separates WC sowie eine kleine Küche mit angrenzendem Esszimmer. Das Duschbad – in dem sich auch die Heizungsanlage befindet – sowie ein großzügiger Abstellraum, der aktuell als Schlafzimmer genutzt wird, vervollständigen das Raumangebot auf dieser Ebene. Das Dachgeschoss bietet zusätzlich einen Flur und zwei weitere Schlafräume.


Beheizt wird die Immobilie über eine Flüssiggasheizung aus dem Jahr 2010; der zugehörige Flüssiggastank befindet sich auf dem Grundstück. Das Haus ist seit ca. 20 Jahren vermietet, die monatlichen Mieteinnahmen belaufen sich auf 480,00 € Kaltmiete.


Die Immobilie befindet sich insgesamt in einem renovierungsbedürftigen Zustand und bietet somit Potenzial für individuelle Gestaltungswünsche oder eine Modernisierung.


Dank ihrer ruhigen, naturnahen Lage eignet sich diese Immobilie ideal für Kapitalanleger oder für Interessenten mit handwerklichem Geschick, die das Objekt perspektivisch selbst nutzen möchten.


Bausubstanz & Energieausweis

A+

A

B

C

D

E

F

G

H

368,6 kWh/(m²*a)

Baujahr
2010
Objektzustand
Renovierungsbedürftig
Wesentlicher Energieträger
FLUESSIGGAS
Heizungsart
Zentralheizung
Befeuerung
Gasheizung
Energieausweis
liegt vor
Energieausweistyp
Bedarfsausweis
Gültig bis
17.05.2035
Energieeffizienzklasse
H
Endenergiebedarf
368,6 kWh/(m²*a)

Ausstattung



  • ca. 90 m² Wohn- und Nutzfläche*




  • zzgl. 57 m² Abstellräume (Nebengebäude)




  • vermietet 480,00 € Kaltmiete / Monat




  • 904 m² Grundstück




  • Flüssiggastank




  • Gas Hzg 2010




  • sanierungsbedürftig !




  • das Haus ist seit ca. 20 Jahren vermietet
    -> das Mietverhältniss muss übernommen werden!




Lagebeschreibung

Die Gemeinde Schülp liegt im Kreis Dithmarschen in Schleswig-Holstein, nur wenige Kilometer von der Nordsee entfernt. Eingebettet in eine weitläufige Marschlandschaft, bietet der Ort eine naturnahe und ruhige Wohnlage mit gleichzeitig guter Anbindung: Über die nahegelegene Stadt Wesselburen erreichen Sie bequem die Bundesstraße 5 und die Autobahn 23 in Richtung Hamburg. In Wesselburen finden sich zudem alle wichtigen Einrichtungen des täglichen Bedarfs – darunter Einkaufsmöglichkeiten, Ärzte, Kindergärten, Schulen und ein Bahnhof mit direkter Verbindung nach Heide und Husum.


Schülp selbst besteht aus mehreren Ortsteilen, darunter Schülperneuensiel, Schülperaltensiel und Schülperweide. Das Ortsbild ist geprägt von historischen Höfen, großzügigen Grundstücken und der Nähe zum Nord-Ostsee-Kanal sowie zur Eider. Die Umgebung eignet sich ideal für ausgedehnte Spaziergänge, Radtouren oder Naturbeobachtungen – insbesondere im nahegelegenen Naturschutzgebiet Dithmarscher Eiderwatt. Auch das Eidersperrwerk, die Strände bei Büsum oder St. Peter-Ording sowie das Katinger Watt sind in kurzer Zeit erreichbar.


Sonstige Angaben

Die Besichtigung ist jederzeit möglich, jedoch nach vorheriger Terminabsprache! Bitte wahren Sie die Diskretion und sehen Sie vom Betreten des Grundstücks ohne Begleitung des Immobilienberaters ab. Sämtliche Unterlagen und Angaben wurden uns vom Auftraggeber übergeben / mitgeteilt. Für die Richtigkeit dieser Angaben können wir daher keine Gewähr übernehmen. Irrtum und Zwischenverkauf vorbehalten.


Es gelten die Allgemeinen Geschäftsbedingungen.


Finanzierung: Sie haben noch keine Finanzierung? Sprechen Sie uns an wir vermitteln Ihnen gern einen kompetenten Ansprechpartner, der für Sie ein unverbindliches Angebot ausarbeitet.


Bitte haben Sie Verständnis dafür, dass wir nur die E-Mails beantworten, in denen die vollständige Anschrift sowie die Telefonnummer des Absenders angegeben wird.


Weitere Objekte finden Sie auf unserer Homepage www.werth-immobilien.de


HINWEIS*:
Die Angaben Wohn- und Nutzfläche: Eine Überprüfung der Flächen und eine Berechnung nach WoFlV hat nicht stattgefunden.
Die Angaben beziehen sich auf die gesamten Grundflächen.


Die Grundrisse im Exposé dienen zur Orientierung. Die Maße, die Darstellung des Inventars und die Raumaufteilungen können ggf. vom Ist-Zustand abweichen.


Wohnung finden so einfach wie möglich - das ist unsere Mission!

Kostenlose Basic Features

0 € monatlich


  • Individuelles Such-Profil anlegen
  • Suchaufträge speichern
  • One-Klick Kontaktaufnahme

alles anzeigen

Jetzt kostenlos anmelden

Premium Features

19,99 € monatlich


  • Alle kostenlosen Features
  • Smart-Alarm per Whatsapp
  • Deine Chancen checken
  • Wohngegend analysieren

alles anzeigen

Jetzt Premium freischalten

Gewerblicher Anbieter

Werth Immobilien GbR
Am Markt 24
25746 Heide

Wohnglück-ID:
Objekt-Nr.:
WGL-610781
HE-550-CV-25