Etagenwohnung in Pocking

Aufzug
Balkon/­Terrasse
Keller

Erstbezug - Neubau Seniorenwohnen: Barrierefreie 2-Zimmer-Wohnung im 2. OG mit Dachterrasse!

Anfragen bisher

Premium

Meine Chancen

Premium

Fairer Preis

Premium

304.262,2 €

Kaufpreis

72,79 m²

2 Zi.

2. OG

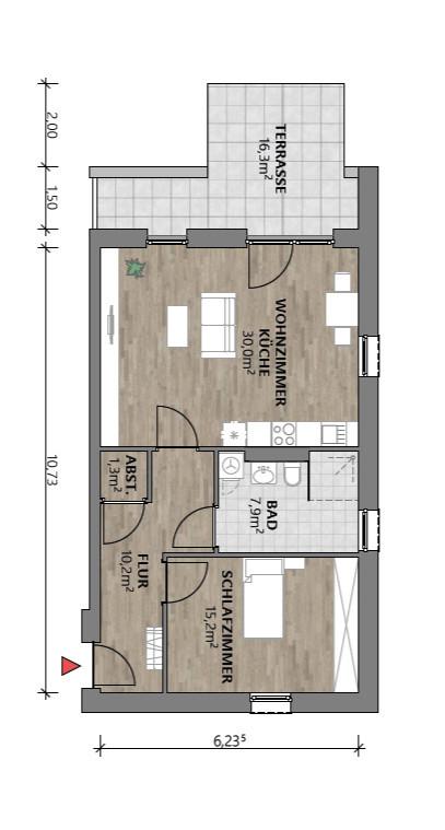
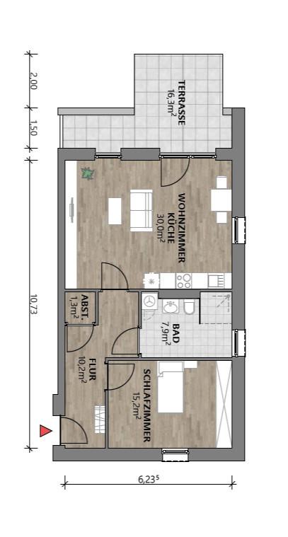
Grundriss

94060 Pocking

Gewerblicher Anbieter

VR-Bank Vilshofen-Pocking eG
Simbacher Str. 8
94094 Rotthalmünster

Details

Zimmerzahl
2
Wohnungstyp
Etagenwohnung
Etage, Geschoss
2
Bezugsfrei ab
nach Fertigstellung
Anzahl Schlafzimmer
1
Anzahl Badezimmer
1
Objektzustand
Erstbezug
Baujahr
2025

Kosten

Kaufpreis
304.262,2 €
Käuferprovision
0,00 %
Was kostet dein Umzug?

Objektbeschreibung

Ideale Lage - ideale Wohnung: Barrierefreie & provisionsfreie 2-Zimmer-Wohnung (2. OG) im Seniorenwohnen in Hartkirchen!
Es entstehen 16 seniorengerechte Wohnung und eine Zahnarztpraxis.




  • Baujahr: Fertigstellung voraussichtlich Oktober 2026 (Baubeginn erfolgt in Kürze)




  • Wohnung Nr. 13 (Wohnhaus 1/Typ E)




  • Wohnfläche: ca. 72,79 m²




  • Wohnfläche/Nutzfläche: ca. 77,68 m² (inkl. Kellerabteil)




  • Aufteilung: Diele, Küche/Wohnzimmer, Schlafzimmer, Abstellraum, Badezimmer




  • Dachterrasse




  • Kellerraum: Nr.: 13




  • zzgl. Garage (pro Garage 25.000,00 € zum Kaufpreis)




Bauausführung (Barrierefreies Bauen nach DIN 18040-2):



  • Barrierefreie Nassräume

  • Bodenebener Duschbereich

  • Aufzüge in die einzelnen Geschosse

  • Hausnotruf

  • Rauchmeldeanlage

  • elektrische Rollläden

  • dezentrale Lüftungsanlage mit Wärmerückgewinnung

  • Fußbodenheizung

  • mineralische/ökologische Deckanstriche

  • hochwertige Holz/Alu-Fenster

  • provisionsfrei


Pflege- und Betreuungsangebot auf Wunsch möglich - diese Betreuung bietet Ihnen:




  • Rufbereitschaft rund um die Uhr




  • Hauswirtschaftliche Hilfe




  • Essen auf Rädern




  • Übernahme bei Einkaufsfahrten




  • Begleitung bei Arztfahrten




  • Pflege und Betreuung aufgrund der Leistungsansprüche nach SGB XI und SGB V




  • Es liegt noch kein Energieausweis vor, da sich das Gebäude noch im Rohbau befindet!




Bausubstanz & Energieausweis

Baujahr
2025
Objektzustand
Erstbezug
Wesentlicher Energieträger
Wärmepumpe
Heizungsart
Wärmepumpe
Befeuerung
Wärmepumpe
Energieausweis
Laut Gesetz nicht erforderlich

Lagebeschreibung

Von Ihrer neuen barrierefreien Wohnung in Hartkirchen erreichen Sie in Kürze einen Allgemeinarzt, sowie einen Physiotherapeuten und einen ambulanten Pflegedienst. In ca. 6 Minuten sind Sie in der Stadt Pocking, die alles wichtige an Infrastruktur bietet. Zudem gelangen Sie in ca. 15 Minuten zum Kurort Bad Füssing. Hier können Sie die Seele baumeln lassen. Das größte Golf-Resort liegt in Bad Griesbach und ist ca. 20 Minuten entfernt. Die Krankenhäuser Rotthalmünster und Passau erreichen Sie ebenfalls in ca. 20 Minuten.


Wohnung finden so einfach wie möglich - das ist unsere Mission!

Kostenlose Basic Features

0 € monatlich


  • Individuelles Such-Profil anlegen
  • Suchaufträge speichern
  • One-Klick Kontaktaufnahme

alles anzeigen

Jetzt kostenlos anmelden

Premium Features

19,99 € monatlich


  • Alle kostenlosen Features
  • Smart-Alarm per Whatsapp
  • Deine Chancen checken
  • Wohngegend analysieren

alles anzeigen

Jetzt Premium freischalten

Gewerblicher Anbieter

VR-Bank Vilshofen-Pocking eG
Simbacher Str. 8
94094 Rotthalmünster

Wohnglück-ID:
Objekt-Nr.:
WGL-584454
0-2035#1C3NUX