Hallen / Lager / Produktion in Alsfeld

LOFTBÜRO? LAGER? VERKAUFSFLÄCHE? ZUM SELBSTAUSBAU!

Anfragen bisher

Premium

Meine Chancen

Premium

Fairer Preis

Premium

1.750 €

Kaltmiete

1. OG

36304 Alsfeld

Gewerblicher Anbieter

msi - Mike Schneider Immobilien GmbH
Schwabenröder Straße 7a
36304 Alsfeld

Details

Typ der Gewerbeimmobilie
Hallen / Lager / Produktion
Etage, Geschoss
1
Nutzfläche
449 m²
Objektzustand
Gepflegt
Baujahr
1968

Kosten

Kaltmiete
1.750 €
Nebenkosten
250 €
Kaution
5.250 €
Was kostet dein Umzug?

Objektbeschreibung

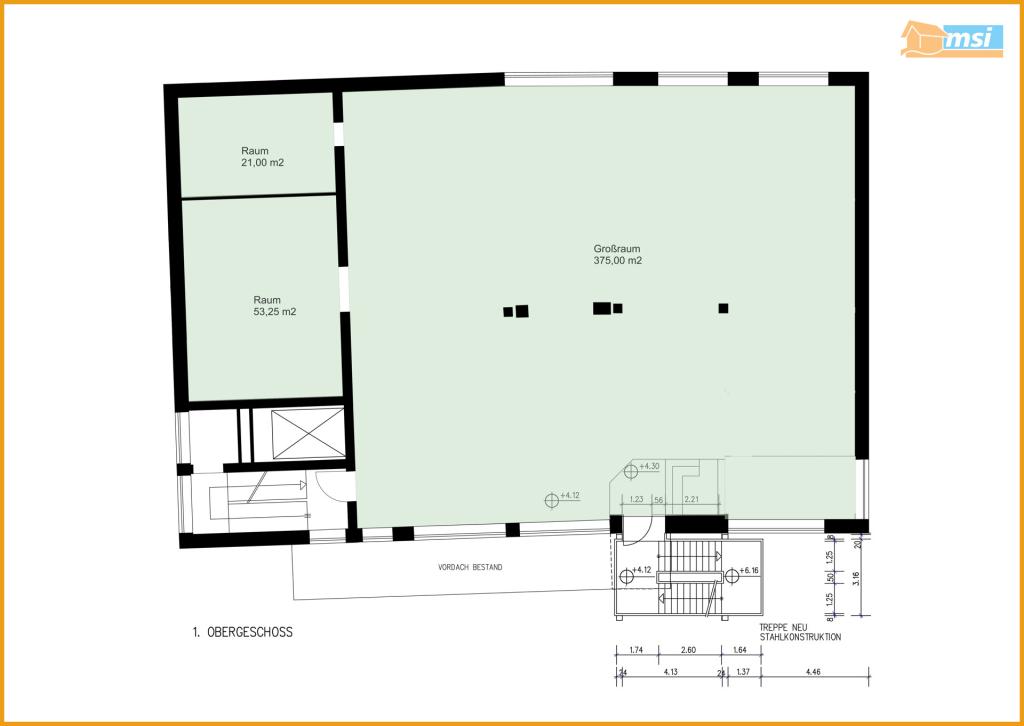
Auf ca. 449 m² Gesamtfläche erstreckt sich dieses Gewerbeangebot im 1. Obergeschoss der Alten Molkerei in Alsfeld. Hier steht Ihnen ein großer Verkaufsraum und zwei Lagerräume zur Verfügung. Die Aufteilung und Gestaltung kann individuell durch den Mieter erfolgen. Ein Gemeinschaft-WC steht Ihnen hier ebenfalls zur Verfügung. Kontaktieren Sie uns einfach!


Bausubstanz & Energieausweis

Objektzustand
Gepflegt
Heizungsart
Zentralheizung
Befeuerung
Gasheizung

Ausstattung

Die Räume werden mit einer Gaszentralheizung(2019) beheizt. Der Boden ist überwiegend mit Fliesen belegt.


Lagebeschreibung

Diese Räumlichkeiten befinden sich in guter, auffälliger Lage, direkt in Alsfeld. Der Stadtkern der schönen historischen Fachwerkstadt Alsfeld ist nur wenige Gehminuten entfernt. Einkaufsmöglichkeiten, Schulen und Kindergarten sind in unmittelbarer Nähe. Bahn- und Autobahn-Anschluss an die A 5 Frankfurt-Kassel, welcher zwei Fahrminuten entfernt ist, sind ebenso vorhanden. Weitere Informationen/Bilder erhalten Sie auf Anfrage oder unter www.msi-hessen.de


Wohnung finden so einfach wie möglich - das ist unsere Mission!

Kostenlose Basic Features

0 € monatlich


  • Individuelles Such-Profil anlegen
  • Suchaufträge speichern
  • One-Klick Kontaktaufnahme

alles anzeigen

Jetzt kostenlos anmelden

Premium Features

19,99 € monatlich


  • Alle kostenlosen Features
  • Smart-Alarm per Whatsapp
  • Deine Chancen checken
  • Wohngegend analysieren

alles anzeigen

Jetzt Premium freischalten

Gewerblicher Anbieter

msi - Mike Schneider Immobilien GmbH
Schwabenröder Straße 7a
36304 Alsfeld

Wohnglück-ID:
Objekt-Nr.:
WGL-552249
4126