Loft in Berlin (Weißensee)

KLASSE-Loft mit Balkon in Pankow. Blick in die Ferne incl.!

Anfragen bisher

Premium

Meine Chancen

Premium

Fairer Preis

Premium

310.000 €

Kaufpreis

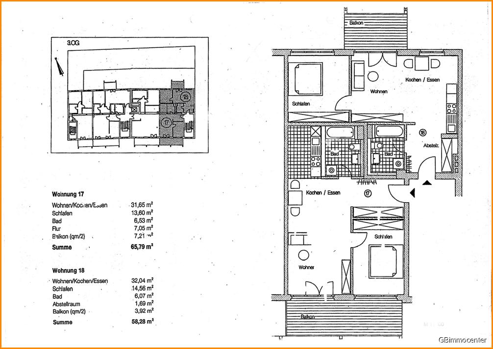
58,28 m²

2 Zi.

Grundriss

13086 Berlin

Gewerblicher Anbieter

A. Wolter & Partner GbR
Halbe-Hufen-Weg 12B
13125 Berlin

Details

Zimmerzahl
2
Wohnungstyp
Loft
Anzahl Badezimmer
1
Objektzustand
Gepflegt
Baujahr
1998

Kosten

Kaufpreis
310.000 €
Käuferprovision
Käufer und Verkäufer jeweils 11.000 Euro (inkl. ges. MwSt., fällig bei Vertragsabschluss.
Was kostet dein Umzug?

Objektbeschreibung

Die Wohnung mit ihren großen Fenstern und der Balkon sind an der nördlichen Gebäudeseite gelegen. Die hohen, hellen Räume und der weite Blick bis hin zur Straßenbebauung der Charlottenstraße vermitteln ein erhabenes Gefühl.


Ein Loft-Gefühl!


Der Aufgang ist ein sogenannter Zweispänner. (Es gehen jeweils zwei Wohnungen vom Treppenhaus ab.)


Hinweis: Die Wohnung ist vermietet. Die Kaltmiete beträgt aktuell 555 Euro kalt.


Bausubstanz & Energieausweis

Baujahr
1998
Objektzustand
Gepflegt
Wesentlicher Energieträger
GAS
Heizungsart
Zentralheizung
Befeuerung
Gasheizung
Energieausweis
liegt vor
Energieausweistyp
Verbrauchsausweis
Gültig bis
23.03.2030
Energieverbrauchskennwert
114 kWh/(m²*a)

Ausstattung


  • Laminat in den Wohnbereichen

  • Fliesen in den Küchen und Sanitärbereichen.


Lagebeschreibung

Die offerierte Wohnung befindet sich auf der "Weißenseer Spitze" gebildet durch die Prenzlauer Promenade und die Gustav-Adolf-Straße. Die Langhansstraße ist für den individualverkehrine Einbahnstraße. Straßenbahnen (Tram) fahren in beide Richtungen.
Das Ensemble, in dem sich die Wohnung befindet, war ehemals eine Möbelfabrik. In den Jahren 1997 bis 1999 erfolgte der Umbau in eine beliebte Wohnanlage mit Loft-Ambiente umgebaut. Das Grundstück verfügt über eine Grünanlage mit Spielplatz.


Sonstige Angaben

Sofern Sie bereits Ihre finanziellen Angelegenheiten geklärt haben und uns auf Abfordern einen entsprechenden Eigenkapital- oder Ihren persönlichen Finanzierbarkeitsnachweis vorweisen können, steht einer Besichtigung und ggf. einem baldigen Erwerb nichts mehr im Wege.
Sollten Sie Finanzierungsbedarf haben, welcher aber noch nicht geprüft wurde, gehen Sie am besten gleich zu einem Finanzierungsspezialisten unserer Empfehlung.

Dieses Exposé stellt in knapper Form die wesentlichen Daten des Objektes dar. Haben Sie einen ersten Überblick verschafft? Ich freue mich Sie persönlich kennen zu lernen. Sollten Sie noch Fragen haben, können Sie sich gerne an mich wenden. Den Namen des Eigentümers gebe ich Ihnen auf Wunsch bekannt.
Bitte haben Sie dafür Verständnis, dass wir nur Anfragen beantworten können, die mit vollständiger Absender- und Telefonnummernangabe versehen sind. Wir haben dem Verkäufer dafür Nachweis zu erbringen.
Irrtum und Zwischenverkauf behalten wir uns vor. Besichtigungen sind nur nach vorheriger Absprache mit unserem Büro möglich. Bitte beachten sie die Geschäftsbedingungen. Sämtliche Angaben erfolgen aufgrund von Informationen der Eigentümerseite so dass von uns keine Gewähr übernommen werden kann.

UNSER EXPERTENTEAM HILFT IHNEN IN ALLEN FRAGEN ZUM IMMOBILIENERWERB!


Wohnung finden so einfach wie möglich - das ist unsere Mission!

Kostenlose Basic Features

0 € monatlich


  • Individuelles Such-Profil anlegen
  • Suchaufträge speichern
  • One-Klick Kontaktaufnahme

alles anzeigen

Jetzt kostenlos anmelden

Premium Features

19,99 € monatlich


  • Alle kostenlosen Features
  • Smart-Alarm per Whatsapp
  • Deine Chancen checken
  • Wohngegend analysieren

alles anzeigen

Jetzt Premium freischalten

Gewerblicher Anbieter

A. Wolter & Partner GbR
Halbe-Hufen-Weg 12B
13125 Berlin

Wohnglück-ID:
Objekt-Nr.:
WGL-483183
WO907