Mehrfamilienhaus in Trier (Kernscheid)

Balkon/­Terrasse
Einliegerwohnung
Gäste WC
Garage/­Stellplatz

Neues vermietetes 3-Familienhaus als KFW 55 Energiesparhaus in ruhiger Lage Trier-Kernscheid

Anfragen bisher

Premium

Meine Chancen

Premium

Fairer Preis

Premium

1.282.000 €

Kaufpreis

280,74 m²

10 Zi.

54296 Trier

Gewerblicher Anbieter

Scherf Profi Immobilien Service GmbH
Paulinstraße 104
54292 Trier

Details

Grundstücksfläche
650 m²
Zimmerzahl
10
Haustyp
Mehrfamilienhaus
Mieteinnahmen pro Monat
3.535 €
Anzahl Schlafzimmer
8
Anzahl Badezimmer
4
Anzahl Garage/ Stellplatz
1
Objektzustand
Erstbezug
Baujahr
2024

Kosten

Kaufpreis
1.282.000 €
Käuferprovision
1,785 % incl. Mwst
Was kostet dein Umzug?

Stellplätze

Stellplatztyp
Garage
Anzahl
3

Objektbeschreibung

Attraktives vermietetes Mehrfamilienhaus mit separaten Zugängen und moderner Technik in schöner Lage von Trier-Kernscheid
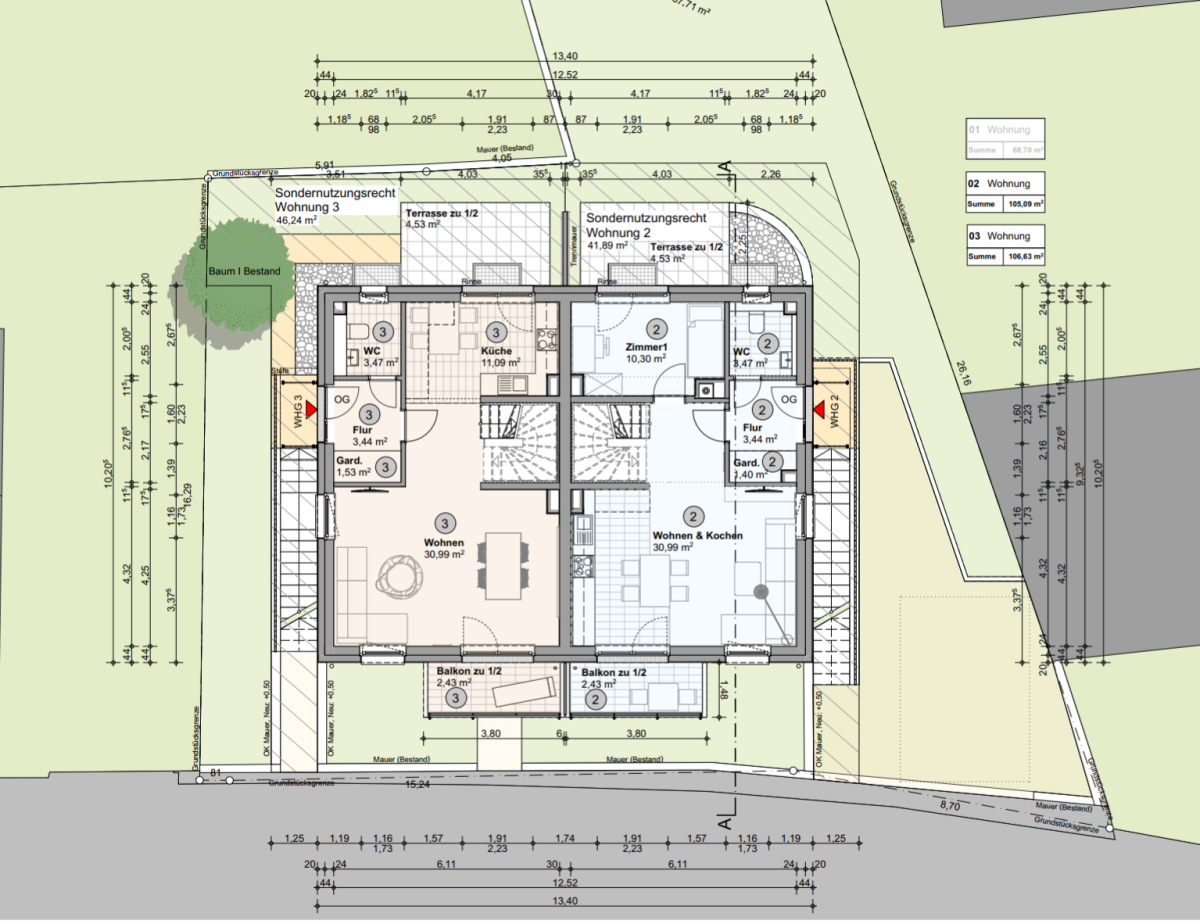
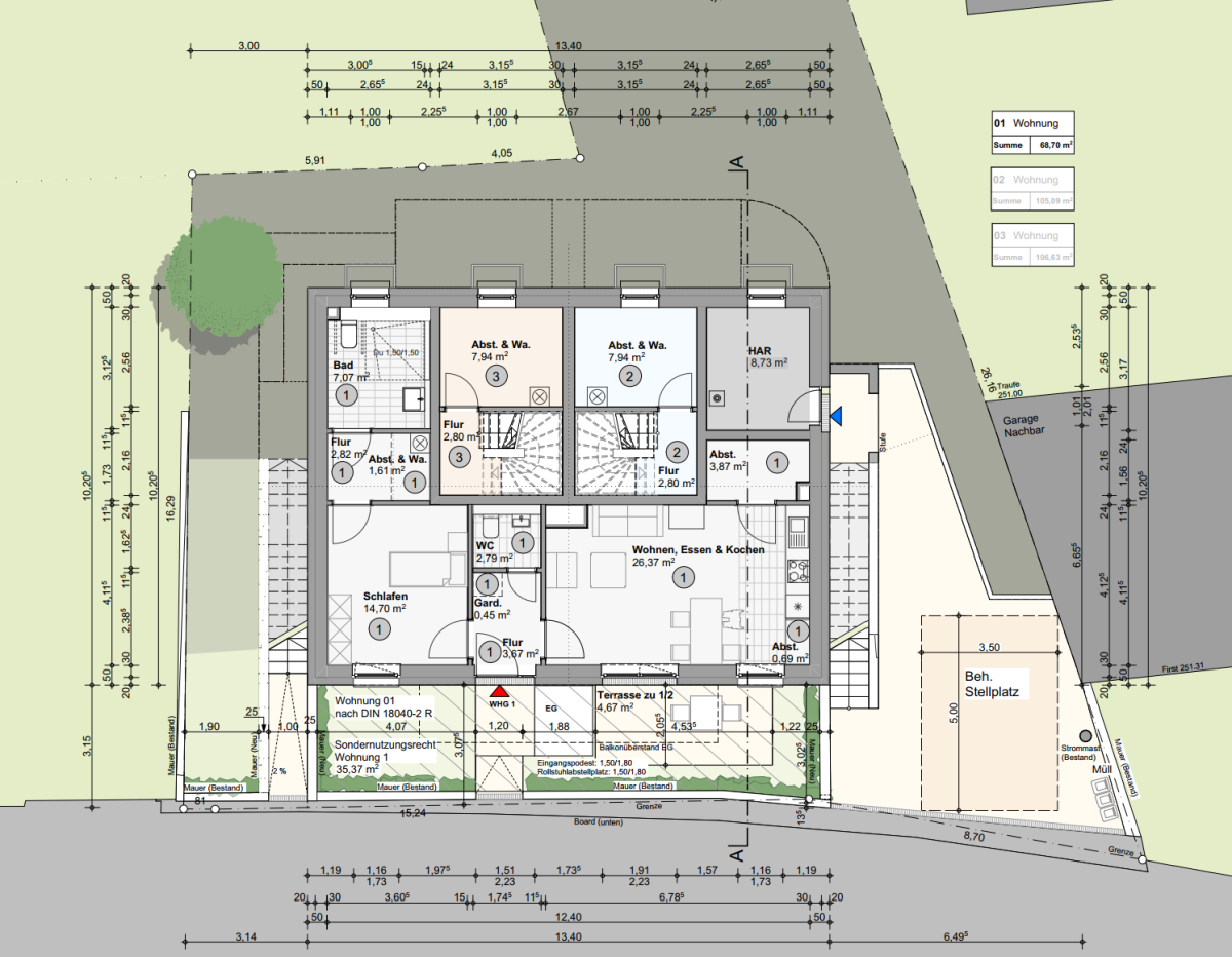
Moderne Wohnungen in gefragter Lage von ca. 69 m² bis ca. 106 m² Wohnfläche in einem Mehrfamilienhaus mit nur 3 Wohneinheiten und separaten Zugängen. .
Die Baubeschreibung sieht die Beheizung mit einer Wärmepume vor. Das Objekt erfüllt den Standard KFW Effizienzhaus 55. Die vorgesehene 3-fach Verglasung der Fenster, elektrische Rollläden, die hochwertige Außendämmung, eine kontrollierte Wohnraumbelüftung mit Wärmerückgewinnung sowie die moderne Heiztechnik ermöglichen sehr günstige Heizkosten. Die Innenausstattung können Sie noch mitbestimmen. Es sind hochwertige Parkettböden und attraktive Fliesen in einer guten Qualität im Standard ausgeführt worden


Wohnung Nr. 1 im Erdgeschoss. Die Wohnung besteht aus dem attraktiven Wohnraum mit integrierter Küche von ca. 28 m² mit Zugang auf die schöne Terrasse von ca. 9 m². Der Küche ist ein Abstellraum zugeorndet. Von der zentralen Diele erreichen Sie das Gäste-WC sowie den Privatbereich bestehend aus dem geräumigen Schlafzimmer von ca. 15 m², dem Hauswirtschaftsbereich sowie das große Bad mit Fenster von ca. 9 m².


Wohnung Nr. 2 mit separatem Zugang im Obergeschoss (bergseitig Erdgeschoß). Die Wohnungen bestehen in der unteren Wohnebene aus dem attraktiven Wohnraum mit integrierter Küche von ca. 41 m² mit Zugang auf den sonnigen Balkon und auf die schöne rückseitige Terrasse von ca. 10 m² und in Garten. Diele, Garderobe und Gäste-WC vervollständigen das Angebot im Erdgeschoß. In der oberen Wohnebene befindet sich das Bad mit Fenster von ca. 9 m², das geräumige Elternzimmer von ca. 15 m² sowie ein weiteres Kinderzimmer von ca. 14 m².


Wohnung Nr. 3 mit separatem Zugang im Obergeschoss (bergseitig Erdgeschoß). Die Wohnungen bestehen in der unteren Wohnebene aus dem attraktiven Wohnraum mit integrierter Küche von ca. 31 m² mit Zugang auf den sonnigen Balkon. Von der zentralen Diele erreichen Sie das Gäste-WC sowie das geräumige Kinderzimmer/Büro/Schlafzimmer von ca. 15 m² mit Zugang auf die schöne Terrasse von ca. 10 m² und in den Garten. In der oberen Wohnebene befindet sich das Bad mit Fenster von ca. 9 m², das geräumige Elternzimmer von ca. 15 m² sowie ein weiteres Kinderzimmer von ca. 14 m².


Zum Objekt sind ein behindertengerechter Stellplatz und 3 Bestandsgaragen zugeordnet.


Die Wohnungen sind bezugsfertig und wurden vermietet.
Die Mieteinnahme beträgt monatlich 3.535 EUR - entsprechend jährlich 42.420 EUR + Nebenkosten.


Die Realisierung erfolgt durch einen Bauträger mit entsprechenden Referenzobjekten.
Wir informieren Sie gerne


Bausubstanz & Energieausweis

A+

17,7 kWh/(m²*a)

A

B

C

D

E

F

G

H

Baujahr
2020
Objektzustand
Erstbezug
Wesentlicher Energieträger
Luft/Wasser-Wärmepumpe
Heizungsart
Fußbodenheizung
Befeuerung
Wärmepumpe
Energieausweis
liegt vor
Energieausweistyp
Bedarfsausweis
Ausstellungsdatum
31.08.2020
Gültig bis
30.08.2030
Energieeffizienzklasse
A+
Endenergiebedarf
17,7 kWh/(m²*a)

Ausstattung

Attraktives vermietetes Mehrfamilienhaus mit separaten Zugängen und moderner Technik in schöner Lage von Trier-Kernscheid
Moderne Wohnungen in gefragter Lage von ca. 69 m² bis ca. 106 m² Wohnfläche in einem Mehrfamilienhaus mit nur 3 Wohneinheiten und separaten Zugängen. .
Die Baubeschreibung sieht die Beheizung mit einer Wärmepume vor. Das Objekt erfüllt den Standard KFW Effizienzhaus 55. Die vorgesehene 3-fach Verglasung der Fenster, elektrische Rollläden, die hochwertige Außendämmung, eine kontrollierte Wohnraumbelüftung mit Wärmerückgewinnung sowie die moderne Heiztechnik ermöglichen sehr günstige Heizkosten. Die Innenausstattung können Sie noch mitbestimmen. Es sind hochwertige Parkettböden und attraktive Fliesen in einer guten Qualität im Standard ausgeführt worden


Wohnung Nr. 1 im Erdgeschoss. Die Wohnung besteht aus dem attraktiven Wohnraum mit integrierter Küche von ca. 28 m² mit Zugang auf die schöne Terrasse von ca. 9 m². Der Küche ist ein Abstellraum zugeorndet. Von der zentralen Diele erreichen Sie das Gäste-WC sowie den Privatbereich bestehend aus dem geräumigen Schlafzimmer von ca. 15 m², dem Hauswirtschaftsbereich sowie das große Bad mit Fenster von ca. 9 m².


Wohnung Nr. 2 mit separatem Zugang im Obergeschoss (bergseitig Erdgeschoß). Die Wohnungen bestehen in der unteren Wohnebene aus dem attraktiven Wohnraum mit integrierter Küche von ca. 41 m² mit Zugang auf den sonnigen Balkon und auf die schöne rückseitige Terrasse von ca. 10 m² und in Garten. Diele, Garderobe und Gäste-WC vervollständigen das Angebot im Erdgeschoß. In der oberen Wohnebene befindet sich das Bad mit Fenster von ca. 9 m², das geräumige Elternzimmer von ca. 15 m² sowie ein weiteres Kinderzimmer von ca. 14 m².


Wohnung Nr. 3 mit separatem Zugang im Obergeschoss (bergseitig Erdgeschoß). Die Wohnungen bestehen in der unteren Wohnebene aus dem attraktiven Wohnraum mit integrierter Küche von ca. 31 m² mit Zugang auf den sonnigen Balkon. Von der zentralen Diele erreichen Sie das Gäste-WC sowie das geräumige Kinderzimmer/Büro/Schlafzimmer von ca. 15 m² mit Zugang auf die schöne Terrasse von ca. 10 m² und in den Garten. In der oberen Wohnebene befindet sich das Bad mit Fenster von ca. 9 m², das geräumige Elternzimmer von ca. 15 m² sowie ein weiteres Kinderzimmer von ca. 14 m².


Zum Objekt sind ein behindertengerechter Stellplatz und 3 Bestandsgaragen zugeordnet.


Die Wohnungen sind bezugsfertig und wurden vermietet.
Die Mieteinnahme beträgt monatlich 3.535 EUR - entsprechend jährlich 42.420 EUR + Nebenkosten.


Die Realisierung erfolgt durch einen Bauträger mit entsprechenden Referenzobjekten.
Wir informieren Sie gerne


Lagebeschreibung

Trier-Kernscheid, "das Dorf in der Stadt Trier", gefragte Wohnlage mit hohem Wohnwert im Grünen zwischen Trier-Olewig und Trier-Irsch. Die Universität erreichen Sie auf kurzen Wegen. Ebenso ist die Innenstadt gut erreichbar.


Gleichermaßen ist eine gute Verkehrsanbindung in alle Richtungen gegeben.


Sonstige Angaben

Vereinbaren Sie einen Beratungs bzw. Besichtigungstermin !


Unsere Nachweis/Vermittlungsgebühr beträgt 1,785 % incl. MwSt, berechnet vom Kaufpreis.
Entsprechend der aktuellen Gesetzgebung zahlt ein Verbraucher beim Erwerb einer Eigentumswohnung oder eines Einfamilienhauses eine Maklergebühr in Höhe der Gebühr, die auch der Verkäufer für diese Vermittlung zahlt, im konkreten Fall 1,785 % des Kaufpreises incl. MwSt..


Widerrufsrecht für Verbraucher: Sie können als Verbraucher Ihre Erklärung innerhalb von 14 Tagen ohne Angabe von Gründen in Textform ( z. B. Brief, E-Mail) widerrufen. Zur Wahrung der Widerrufsfrist genügt die rechtzeitige Absendung des Widerrufs oder die Rückgabe der Sache. Der Widerruf ist zu richten an: Firma Scherf Profi Immobilien Service GmbH, Paulinstraße 104, 54292 Trier - Telefon: 0651 - 978 78 0, Email: Info@scherf-immobilien.de


Einwilligung zur Nutzung und Übermittlung vorhabensbezogener Daten gem. Art 7 DSGVO:
Mit der Angebotsanfrage willigen Sie ein, dass die Firma Scherf Profi Immobilien Service GmbH, mit dem Sitz in Trier, Ihre personenbezogenen Daten zum Zweck der Übermittlung von Angeboten und Kaufverhandlungen mit Zusendung von weiteren Informationen aus dem Immobilienbüro verarbeitet und Ihnen diese Informationen zusendet bzw. Sie anruft. Sie werden hiermit ausdrückllich darüber informiert, dass Sie diese Einwilligung jederzeit und ohne Angaben von Gründen gegenüber dem Immobilienbüro widerrufen können ( per Post oder Email ).


Wohnung finden so einfach wie möglich - das ist unsere Mission!

Kostenlose Basic Features

0 € monatlich


  • Individuelles Such-Profil anlegen
  • Suchaufträge speichern
  • One-Klick Kontaktaufnahme

alles anzeigen

Jetzt kostenlos anmelden

Premium Features

19,99 € monatlich


  • Alle kostenlosen Features
  • Smart-Alarm per Whatsapp
  • Deine Chancen checken
  • Wohngegend analysieren

alles anzeigen

Jetzt Premium freischalten

Gewerblicher Anbieter

Scherf Profi Immobilien Service GmbH
Paulinstraße 104
54292 Trier

Wohnglück-ID:
Objekt-Nr.:
WGL-462651
MFHKED104