Hallen / Lager / Produktion in Gadebusch

Garten/­-mitbenutzung
Gäste WC
Einbauküche
Garage/­Stellplatz

***1A Lage, Gewerbehalle mit Büros in Gadebusch***

Anfragen bisher

Premium

Meine Chancen

Premium

Fairer Preis

Premium

3.500 €

Kaltmiete

19205 Gadebusch

Gewerblicher Anbieter

FALC Immobilien
Wollbrügger Str. 10
19205 Gadebusch

Details

Grundstücksfläche
2.500 m²
Lagerfläche
700 m²
Zimmerzahl
5
Typ der Gewerbeimmobilie
Hallen / Lager / Produktion
Bezugsfrei ab
sofort
Anzahl Badezimmer
1
Anzahl Garage/ Stellplatz
1
Objektzustand
Gepflegt
Baujahr
1993

Kosten

Kaltmiete
3.500 €
Nebenkosten
1.400 €
Was kostet dein Umzug?

Stellplätze

Stellplatztyp
Freiplatz
Anzahl
1

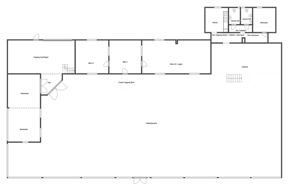
Objektbeschreibung

Dieses vielseitig nutzbare Gewerbeobjekt bietet auf insgesamt 700 m² Nutzfläche ideale Voraussetzungen für verschiedenste Geschäftsmodelle. Ob Handel, Handwerk, Dienstleistung oder Lager – hier finden Sie optimale Arbeitsbedingungen in bester Lage. Die großzügigen Räumlichkeiten und die durchdachte Aufteilung ermöglichen eine flexible Nutzung.


Ein besonderes Highlight ist die repräsentative Scheibenfront, die Ihre Produkte oder Dienstleistungen bestens zur Schau stellt und für maximale Sichtbarkeit sorgt. Die stark frequentierte Bundesstraße B104 liegt direkt vor der Tür – mit täglich bis zu 30.000 vorbeifahrenden Fahrzeugen ein unschätzbarer Standortvorteil.


Ausstattung und Raumaufteilung


Gewerbefläche: 700 m²
Großer Verkaufsraum: Ideal für Ausstellungen, Kundenbereiche oder Showrooms.
Abgetrennte Werkstatt: Perfekt für Handwerksbetriebe oder Serviceleistungen.
Hochlager: Bietet zusätzlichen Stauraum für Materialien, Waren oder Equipment.
Zwei Büroräume: Ruhige Arbeitsbereiche für Verwaltung und Organisation.
Küche: Praktisch ausgestattet für Mitarbeiterpausen.
Sanitäre Anlagen: Separate WC-Bereiche für Damen und Herren.
Außenbereich


12 PKW-Stellplätze: Direkt vor dem Objekt, bequem für Kunden und Mitarbeiter.
Schleppdach mit Rolltor: Zugang zum Lagerbereich – ideal für Lieferungen und Warenannahme.
Zusätzliche Grundstücksfläche: Vielseitig nutzbar, z. B. als Erweiterungsfläche oder zur Außenlagerung.
Besonderheiten


Top-Lage an der B104: Die exponierte Lage sorgt für maximale Aufmerksamkeit und Kundenfrequenz.
Große Scheibenfront: Attraktive Präsentationsmöglichkeiten und viel Tageslicht im Verkaufsraum.
Flexible Nutzungsmöglichkeiten: Perfekt für unterschiedlichste Branchen.
Lage


Das Objekt befindet sich in Gadebusch, einer aufstrebenden Kleinstadt im Landkreis Nordwestmecklenburg. Die direkte Anbindung an die stark frequentierte Bundesstraße B104 garantiert eine hervorragende Erreichbarkeit und Sichtbarkeit. Die zentrale Lage zwischen den Städten Schwerin, Lübeck und Wismar macht diesen Standort besonders attraktiv.


Zusammenfassung der Vorteile


Großzügige und flexible Raumaufteilung
Exzellente Verkehrsanbindung und Sichtbarkeit
Repräsentative Außenwirkung mit großflächiger Schaufensterfront
Ausreichend Parkplätze direkt am Objekt
Vielseitig nutzbare Außenflächen
Preis und Verfügbarkeit


Dieses Gewerbeobjekt steht Ihnen ab sofort zur Verfügung. Für weitere Informationen oder zur Vereinbarung eines Besichtigungstermins kontaktieren Sie uns gerne.


Bausubstanz & Energieausweis

A+

A

B

C

D

E

F

G

H

Objektzustand
Gepflegt
Wesentlicher Energieträger
Gas
Heizungsart
Gasheizung
Befeuerung
Gasheizung
Energieausweis
liegt vor
Energieausweistyp
Verbrauchsausweis
Ausstellungsdatum
17.05.2018
Gültig bis
16.05.2028
Energieverbrauchskennwert
166 kWh/(m²*a)
Energieeffizienzklasse
C

Lagebeschreibung

Willkommen in einer charmanten Kleinstadt, die Ihnen mit ihrer Nähe zur Natur eine eindrucksvolle Lebensqualität bietet. Gadebusch, eingebettet zwischen historischen Gebäuden und einer lebendigen Gemeinschaft, bietet ruhiges Wohnen mit komfortabler Anbindung an größere Städte.


Top-Lage an der B104: Die exponierte Lage sorgt für maximale Aufmerksamkeit und Kundenfrequenz.
Große Scheibenfront: Attraktive Präsentationsmöglichkeiten und viel Tageslicht im Verkaufsraum.
Flexible Nutzungsmöglichkeiten: Perfekt für unterschiedlichste Branchen.
Lage


Das Objekt befindet sich in Gadebusch, einer aufstrebenden Kleinstadt im Landkreis Nordwestmecklenburg. Die direkte Anbindung an die stark frequentierte Bundesstraße B104 garantiert eine hervorragende Erreichbarkeit und Sichtbarkeit. Die zentrale Lage zwischen den Städten Schwerin, Lübeck und Wismar macht diesen Standort besonders attraktiv.


Wohnung finden so einfach wie möglich - das ist unsere Mission!

Kostenlose Basic Features

0 € monatlich


  • Individuelles Such-Profil anlegen
  • Suchaufträge speichern
  • One-Klick Kontaktaufnahme

alles anzeigen

Jetzt kostenlos anmelden

Premium Features

19,99 € monatlich


  • Alle kostenlosen Features
  • Smart-Alarm per Whatsapp
  • Deine Chancen checken
  • Wohngegend analysieren

alles anzeigen

Jetzt Premium freischalten

Gewerblicher Anbieter

FALC Immobilien
Wollbrügger Str. 10
19205 Gadebusch

Wohnglück-ID:
Objekt-Nr.:
WGL-422886
FALC-MF-62132