Wohn-Grundstück in Köln (Weiden)

Attraktives Baugrundstück für ein Doppelhaus in guter Wohnlage

Anfragen bisher

Premium

Meine Chancen

Premium

Fairer Preis

Premium

980.000 €

Kaufpreis

50858 Köln

Gewerblicher Anbieter

Lotz & Team
An der Engelsfuhr 55
51467 Bergisch Gladbach

Details

Grundstücksfläche
813 m²
Typ des Grundstücks
Wohn-Grundstück

Kosten

Kaufpreis
980.000 €
Käuferprovision
3.57% (inkl. MwSt.)
Was kostet dein Umzug?

Objektbeschreibung

Das herrliche Baugrundstück mit altem Baumbestand hat eine Grundstücksfläche von etwa 813 m². Das schöne Grundstück liegt in einer ruhigen und zentralen Wohnlage von Köln-Weiden. Das Baugrundstück befindet sich in zweiter Reihe und ist über eine gemeinsame Zufahrt mit eingetragenem Wegerecht erreichbar.


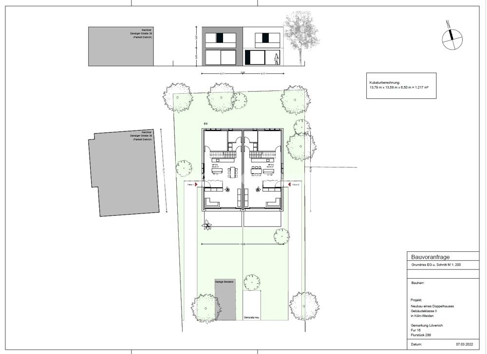
Bei der Neubauplanung auf dem hinteren Baugrundstück (Flur 16, Flurstück 745) kann nach dem vorliegenden und gültigen Bauvorbescheid, ein Doppelhaus bzw. zwei Doppelhaushälften in einer zweigeschossigen Bauweise und einem Flachdach errichtet werden. Die bestehenden Pläne für ein Doppelhaus haben eine Grundfläche (Breite x Tiefe) von ca. 12,48 m x 13,98 m. Die Ausrichtung der Terrasse und des Gartenbereichs sind nach Südwesten geplant.


Die Gesamtwohnfläche für ein geplantes Doppelhaus liegt bei etwa 320 m². Die Wohnfläche für eine Doppelhaushälfte beträgt ca. 160 m². Das große Grundstück hat eine günstige rechteckige Form und könnte bei Bedarf in zwei Teilgrundstücken aufgeteilt werden. Auf dem Grundstück befinden sich eine Einzelgarage (Fläche, ca. 24 m²) an der Grundstücksgrenze. Diese kann auch weiterhin genutzt oder abgerissen werden, um Platz für eine moderne Doppelgarage, Carports oder PKW-Stellplätze zu schaffen.


Auf dem vorderen Grundstück steht ein Mehrfamilienhaus mit einer Arztpraxis und 6 Wohneinheiten. Die Zufahrt zum Baugrundstück und dem hinteren Parkplatz mit 2 Garagen und 4 PKW-Stellplätzen führt links am Haus vorbei.


Wir freuen uns, Ihnen das attraktive Baugrundstück mit den verschiedenen Nutzungs- und Gestaltungsmöglichkeiten in einem persönlichen Besichtigungstermin vorzustellen!


Bausubstanz & Energieausweis

Heizungsart
Sonstige

Lagebeschreibung

Das angebotene Baugrundstück befindet sich im Herzen von Köln-Weiden in einer zentralen und ruhigen Seitenstraße (Sackgasse) in der Nähe der Aachener Straße. Weiden ist ein Stadtteil am westlichen Stadtrand von Köln und liegt im Stadtbezirk Lindenthal. Die Kölner Innenstadt ist ca. 8 km entfernt.


Der Stadtteil ist unter anderem durch das Rheincenter bekannt, welches sich in unmittelbarer Nähe befindet. Dieses Einkaufszentrum bieten eine einzigartige Auswahl an Einkaufsmöglichkeiten mit einem attraktiven Mix an Fachgeschäften, Cafés und Restaurants. Darüber hinaus sind mehrere Ärzte und Apotheken fußläufig erreichbar. Außerdem finden auf dem Markt in Köln-Weiden regelmäßig Wochenmärkte statt, die eine Auswahl an frischen Produkten aus der Region anbieten.


Einige Schulen, wie z.B. eine Gemeinschaftsgrundschule, eine Ganztagsschule, ein Gymnasium und zwei Kindergärten sind vor Ort und bieten eine ideale Umgebung für Familien. Die Naturschutzgebiete Königsdorfer Forst und der Buschbeller Wald laden mit seinen weitläufigen Wegen, Wiesen und Wäldern zum Joggen, Spazieren und Verweilen ein.


Die Verkehrsanbindungen mit Bahn, Bus oder Auto sind hervorragend. Die Stadtbahnlinien 1 mit der Haltestelle „Weiden-Zentrum“ und den Buslinien 136, 145, 148, 149 sind nur einige Gehminuten sowie die S-Bahnhaltestelle „Lövenich“ S12/S19 etwa 1 km entfernt. Die Autobahn A4 mit der Anschlussstelle Köln-Lövenich (ca. 800 m) und das nahe gelegene Autobahnkreuz Köln-West sind ebenfalls gut und schnell zu erreichen.


Sonstige Angaben

Das schöne Grundstück ist ein individueller Traum für eine oder zwei Familien. Das erforderliche Wege- und Leitungsrecht für das hintere Grundstück ist im Grundbuch eingetragen. Des Weiteren können wir Ihnen für die Neubauplanung einen seriösen Massivhausbau-Anbieter für individuelle und nachhaltige Architektenhäuser nennen.


Die Käuferprovision beträgt 3,57 % vom Kaufpreis inklusive 19 % gesetzlicher Mehrwertsteuer. Die Provision ist mit notariellem Kaufvertragsabschluss verdient und nach Rechnungsstellung an uns zu zahlen. Die Weitergabe des Exposés an einen Dritten entbindet nicht von der Provisionspflicht dieses Angebots.


Alle Angaben sind ohne Gewähr und basieren ausschließlich auf Informationen, die uns von unserem Auftraggeber zur Verfügung gestellt wurden. Wir übernehmen keine Gewähr für die Vollständigkeit, Richtigkeit und Aktualität dieser Angaben. Die Grundrisse sind nicht maßstabsgerecht und dienen lediglich der Veranschaulichung. Das vorliegende Exposé ist als unverbindliche Information zu verstehen und kann nicht als Rechtsgrundlage herangezogen werden. Rechtskräftig ist ausschließlich der notariell abgeschlossene Kaufvertrag.


Für einen Besichtigungstermin und weitere Informationen zum angebotenen Grundstück nutzen Sie einfach das Kontaktformular per E-Mail oder rufen Sie uns an!


Wohnung finden so einfach wie möglich - das ist unsere Mission!

Kostenlose Basic Features

0 € monatlich


  • Individuelles Such-Profil anlegen
  • Suchaufträge speichern
  • One-Klick Kontaktaufnahme

alles anzeigen

Jetzt kostenlos anmelden

Premium Features

19,99 € monatlich


  • Alle kostenlosen Features
  • Smart-Alarm per Whatsapp
  • Deine Chancen checken
  • Wohngegend analysieren

alles anzeigen

Jetzt Premium freischalten

Gewerblicher Anbieter

Lotz & Team
An der Engelsfuhr 55
51467 Bergisch Gladbach

Wohnglück-ID:
Objekt-Nr.:
WGL-1277604
KL2066