Einfamilienhaus freistehend in Groß-Umstadt (Klein-Umstadt)

Balkon/­Terrasse
Denkmalschutz
Einliegerwohnung
Garten/­-mitbenutzung
Einbauküche
Garage/­Stellplatz

Familienfreundliches Haus mit vielseitiger Aufteilung

Anfragen bisher

Premium

Meine Chancen

Premium

Fairer Preis

Premium

270.000 €

Kaufpreis

169 m²

7 Zi.

64823 Groß-Umstadt

Gewerblicher Anbieter

McMakler GmbH
Am Postbahnhof 17
10243 Berlin

Details

Grundstücksfläche
292 m²
Zimmerzahl
7
Haustyp
Einfamilienhaus freistehend
Etagenzahl
2
Bezugsfrei ab
nach Absprache
Anzahl Schlafzimmer
6
Anzahl Badezimmer
3
Anzahl Garage/ Stellplatz
1
Objektzustand
Renovierungsbedürftig

Kosten

Kaufpreis
270.000 €
Käuferprovision
Die Provision i.H.v. 3,57 % inkl. MwSt. ist mit Kaufvertragsbeurkundung fällig, sofern der Verkaufspreis über 83.000,00 € liegt. Liegt der Verkaufspreis dagegen bei/unter 83.000,00 €, ist die fest vereinbarte Mindestprovision i.H.v. mind. 5.950,00
Was kostet dein Umzug?

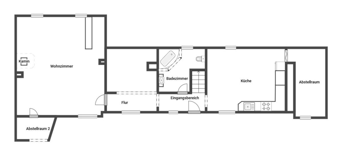
Objektbeschreibung

Objektnr: 1070646


Dieses geräumige Haus bietet eine solide Grundsubstanz und die Möglichkeit, ein Zuhause nach eigenen Vorstellungen zu gestalten. Die Elektrik wurde ca. 2014 erneuert, ebenso wie die überwiegend ausgetauschten Fenster. Zwei Dachflächen wurden 2016 modernisiert. Heizung und Fassade entsprechen nicht mehr dem heutigen Standard und bieten Raum für eine zukunftsorientierte Sanierung. Das Haus steht unter Denkmalschutz.


Die durchdachte Raumaufteilung ermöglicht vielseitige Nutzung:


Im Erdgeschoss befindet sich eine kleine Ein-Zimmer-Wohnung, ergänzt durch mehrere Abstellräume und einen Gewölbekeller. Dieser Bereich eignet sich hervorragend als Gästebereich oder Rückzugsort für erwachsene Kinder.


Eine Treppe im Hof führt in das erste Obergeschoss mit einer großzügigen Küche samt Vorratsraum, einem Tageslichtbad mit Eckbadewanne sowie einem weitläufigen Wohnzimmer mit Kamin. Ein zusätzlicher Abstellraum, der derzeit als Brennholzlager dient, bietet weiteren Stauraum.


Im Obergeschoss stehen drei Schlafzimmer, ein Ankleidezimmer und ein Tageslichtbad mit Dusche zur Verfügung – ideal für Familien. Eine kleine Treppe führt in den Spitzboden, der zwei zusätzliche Schlafzimmer bereithält.


Zur Immobilie gehören zudem eine sonnige Terrasse, ein kleiner Garten und eine Garage, die das Angebot abrunden.


Dieses Haus ist eine perfekte Wahl für Käufer, die Raum und Gestaltungsmöglichkeiten suchen, handwerkliches Geschick mitbringen und das Potenzial der Immobilie erkennen, die mit etwas Einsatz zu neuem Leben erweckt werden kann.


Aufgrund von Denkmalschutz ist kein Energieausweis erforderlich.


Bausubstanz & Energieausweis

Objektzustand
Renovierungsbedürftig
Heizungsart
Sonstige
Energieausweis
Laut Gesetz nicht erforderlich

Ausstattung


  • Großzügiges Wohnhaus mit viel Platz für Familie, Mehrgenerationenwohnen oder individuelle Nutzung

  • Teilweise modernisiert, unter anderem Elektrik, Dachflächen und überwiegend erneuerte Fenster

  • Bis zu sechs Schlafzimmer, praktische Nebenräume und Gewölbekeller vorhanden

  • Terrasse, kleiner Garten und Garage ergänzen das Angebot


Lagebeschreibung

Lage: Attraktive Lage in Groß-Umstadt-Klein-Umstadt mit guten Voraussetzungen für Selbstnutzer
Bildung und Betreuung: Gutes Bildungs- und Betreuungsangebot mit Schule und Kindergarten (max. 3 km Entfernung)
Nahversorgung: Anlaufstellen wie Supermarkt, Apotheke, Postfiliale und Bankfiliale in einem Radius von max. 6 km
Anbindung: Bahnhof und Autobahn komfortabel erreichbar


Sonstige Angaben

Vereinbaren Sie noch heute einen Besichtigungstermin!








Alle Angaben sind ohne Gewähr und basieren ausschließlich auf Informationen, die uns von unserem Auftraggeber zur Verfügung gestellt wurden. Wir übernehmen keine Gewähr für die Vollständigkeit, Richtigkeit und Aktualität der Angaben.


Wohnung finden so einfach wie möglich - das ist unsere Mission!

Kostenlose Basic Features

0 € monatlich


  • Individuelles Such-Profil anlegen
  • Suchaufträge speichern
  • One-Klick Kontaktaufnahme

alles anzeigen

Jetzt kostenlos anmelden

Premium Features

19,99 € monatlich


  • Alle kostenlosen Features
  • Smart-Alarm per Whatsapp
  • Deine Chancen checken
  • Wohngegend analysieren

alles anzeigen

Jetzt Premium freischalten

Gewerblicher Anbieter

McMakler GmbH
Am Postbahnhof 17
10243 Berlin

Wohnglück-ID:
Objekt-Nr.:
WGL-1271980
699e69b8799e7ac664dc7373