Etagenwohnung in Rottenburg am Neckar

Aufzug
Balkon/­Terrasse
Keller
Einbauküche
Garage/­Stellplatz

Schöne neuwertige 2,5-Zimmer-Wohnung mit Balkon in Rottenburg - Ergenzingen

Anfragen bisher

Premium

Meine Chancen

Premium

Fairer Preis

Premium

890 €

Kaltmiete

62,08 m²

2,5 Zi.

1. OG

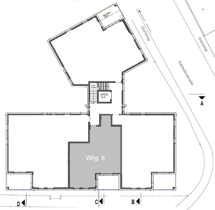
Grundriss

Stehelinstraße 1
72108 Rottenburg

Gewerblicher Anbieter

Volksbank Raiffeisenbank AmmerGäu eG
Gäustraße 5
72108 Rottenburg am Neckar

Details

Zimmerzahl
2,5
Wohnungstyp
Etagenwohnung
Etage, Geschoss
1
Etagenzahl
4
Nutzfläche
3,5 m²
Bezugsfrei ab
01.06.2026
Anzahl Schlafzimmer
1
Anzahl Badezimmer
1
Anzahl Garage/ Stellplatz
1
Objektzustand
Neuwertig
Baujahr
2024

Kosten

Kaltmiete
890 €
Nebenkosten
170 €
Kaution
1.780 €
Was kostet dein Umzug?

Stellplätze

Stellplatztyp
Tiefgarage
Anzahl
1
Miete
60 €

Objektbeschreibung

Diese attraktive, neuwertige 2,5-Zimmer-Wohnung befindet sich im ersten Obergeschoss eines gepflegten Mehrfamilienhauses mit 15 Wohneinheiten. Das Objekt wurde erst im Dezember 2024 fertiggestellt und steht zum Erstbezug ab dem 01.06.2026 bereit.


Die Wohnung besticht durch eine gehobene Ausstattung und ein durchdachtes Wohnkonzept. Zu den Highlights zählen ein modernes Bad mit Dusche, eine modernen Markeneinbauküche inklusive moderner Elektrogeräte sowie einem Balkon. Ein barrierefreier Zugang ist durch den hauseigenen Aufzug gewährleistet.


Auch energetisch überzeugt die Immobilie: Dank des KfW-55-EE-Standards, einer modernen Wärmepumpe und einer kontrollierten Wohnraumlüftung genießen Sie ein erstklassiges Raumklima bei hoher Energieeffizienz. Die Fußbodenheizung lässt sich in jedem Raum individuell regulieren und sorgt für behaglichen Wohnkomfort. Abgerundet wird das Angebot durch einen praktischen Tiefgaragenstellplatz.


Die monatliche Kaltmiete für die Wohnung 6 beträgt inklusive Einbauküche (80,00 €) und Tiefgaragenstellplatz (60,00 €) 950,00 €.


Die Gesamtmiete setzt sich wie folgt zusammen:
Kaltmiete der Wohnung 810,00 €
Einbauküche 80,00 €
Tiefgaragenstellplatz 60,00 €
Nebenkostenabschlag 170,00 €
Gesamtmiete 1.120,00 €


Mietkaution 2 Kaltmieten 1.620,00 €


Bausubstanz & Energieausweis

A+

A

B

C

D

E

F

G

H

Baujahr
2024
Objektzustand
Neuwertig
Wesentlicher Energieträger
Elektroenergie
Heizungsart
Fußbodenheizung
Befeuerung
Elektroheizung
Energieausweis
liegt vor
Energieausweistyp
Verbrauchsausweis
Gültig bis
14.08.2034
Energieeffizienzklasse
A+

Ausstattung


  • Aufzug

  • Bad mit Dusche

  • Fliesen in Küche, Wohn-/Essbereich und Bad

  • Laminat im Schlafzimmer

  • Fußbodenheizung

  • Hochwertige Sanitärausstattung

  • Dreifach verglaste Fenster

  • Elektrische Rollläden

  • Moderne Küche

  • Balkon

  • Abstell-/Kellerraum im Untergeschoss

  • ein Tiefgaragenstellplatz

  • Fahrradabstellplatz außen

  • gemeinschaftlicher Wasch- und Trockenraum


Sonstiges
Möglichkeit zum Bezug von Mieterstrom und zur Installation einer Wall-Box.


Lagebeschreibung

Das Mehrfamilienhaus befindet sich im Ortskern von Ergenzingen. Der Ort ist mit rund 4.500 Einwohnern der größte Stadtteil Rottenburgs.
Der Ort verfügt über eine gute Infrastruktur. In unmittelbarer Nähe befindet sich eine Bäckerei und eine Metzgerei, Banken, Post und ein Supermarkt. Arzt und Apotheke sind ebenfalls bequem zu Fuß erreichbar. Schulen und Kindertagesstätte befinden sich im Ort. Die Bushaltestelle ist nur 1 Gehminute und der Bahnhof nur 6 Gehminuten vom Wohnhaus entfernt.
Es besteht eine direkte und sehr gute Anbindung an die A 81 und auch die attraktiven Städte Tübingen, Rottenburg, Nagold, Herrenberg und Horb sind über die B28 in kurzer Zeit erreichbar. Zum Flughafen Stuttgart sind es ca. 50 Kilometer.


Sonstige Angaben

Eckdaten:
Etage: 1. Obergeschoss
Zimmer: 2,5
Wohnfläche: ca. 62,08 m²
Stellplätze: 1


Wohnen/Essen ca. 25,83 m²
Schlafen ca. 15,76 m²
Kochen ca. 9,03 m²
Bad/WC ca. 5,30 m²
Abstellraum ca. 2,42 m²
Balkon 50 % ca. 3,74 m²


Gesamt ca. 62,08 m²


Wohnung finden so einfach wie möglich - das ist unsere Mission!

Kostenlose Basic Features

0 € monatlich


  • Individuelles Such-Profil anlegen
  • Suchaufträge speichern
  • One-Klick Kontaktaufnahme

alles anzeigen

Jetzt kostenlos anmelden

Premium Features

19,99 € monatlich


  • Alle kostenlosen Features
  • Smart-Alarm per Whatsapp
  • Deine Chancen checken
  • Wohngegend analysieren

alles anzeigen

Jetzt Premium freischalten

Gewerblicher Anbieter

Volksbank Raiffeisenbank AmmerGäu eG
Gäustraße 5
72108 Rottenburg am Neckar

Wohnglück-ID:
Objekt-Nr.:
WGL-1266471
2-06-5