Mehrfamilienhaus in Neukirchen/Pleiße

Gäste WC
Keller
Einbauküche
Garage/­Stellplatz

Zweifamilienhaus oder großes Einfamilienhaus mit großer Garage, Schuppen und Garten

Anfragen bisher

Premium

Meine Chancen

Premium

Fairer Preis

Premium

135.000 €

Kaufpreis

180 m²

7 Zi.

08459 Neukirchen/Pleiße

Gewerblicher Anbieter

PlanetHome Group GmbH
Feringastraße 11
85774 Unterföhring

Details

Grundstücksfläche
1.000 m²
Zimmerzahl
7
Haustyp
Mehrfamilienhaus
Etagenzahl
3
Anzahl Badezimmer
2
Anzahl Garage/ Stellplatz
2
Baujahr
1913

Kosten

Kaufpreis
135.000 €
Käuferprovision
3,57 %
Was kostet dein Umzug?

Stellplätze

Stellplatztyp
Carport
Anzahl
1
Stellplatztyp
Duplex
Anzahl
1

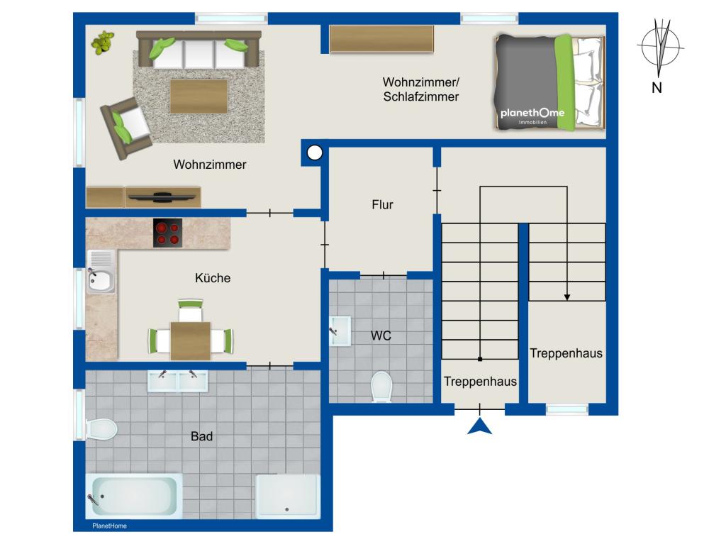
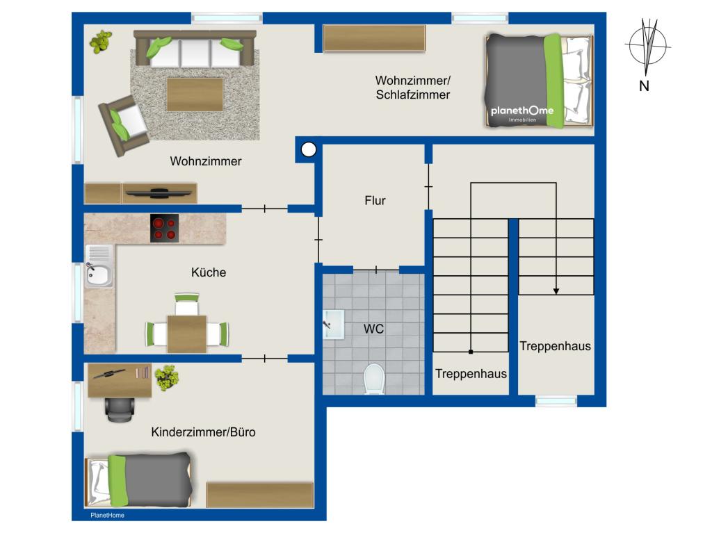
Objektbeschreibung

Zum Verkauf steht ein Zweifamilienhaus, welches sich über drei Etagen erstreckt. Es könnte auch als großes Einfamilienhaus genutzt werden. Im Innenhof finden Sie ein Nebengelass und eine große Garage. Das Haus wurde ca. im Jahre 1913 gebaut und in den 90er Jahren saniert. Hierbei wurden zwei Gas-Etagenheizungen und Holzfenster mit Schallschutz eingebaut sowie das Dach in den 80er Jahren gedeckt. Insgesamt besteht Renovierungsbedarf, der mit wenig Mitteln behoben werden kann.
Hinter dem Haus befindet sich ein schöner, idyllischer Garten, der zum Entspannen einlädt.
Das Haus ist vollunterkellert. Das Anwesen steht derzeit leer und wäre somit sofort verfügbar.


Zu erwähnen ist, dass bisher die Klärgrube des Nachbarn genutzt wurde. Diese kann während eventuellen Renovierungsarbeiten noch genutzt werden. Ab Einzug sollte eine eigene vollbiologische Klärgrube genutzt werden, diese muss der neue Eigentümer allerdings noch errichten lassen.


Interessant? Wir freuen uns auf Ihre schriftliche Anfrage.


Bausubstanz & Energieausweis

A+

A

B

C

D

E

F

G

H

291,7 kWh/(m²*a)

Heizungsart
Etagenheizung
Energieausweis
liegt vor
Energieausweistyp
Bedarfsausweis
Ausstellungsdatum
30.03.2023
Gültig bis
30.03.2033
Energieeffizienzklasse
H
Endenergiebedarf
291,7 kWh/(m²*a)

Lagebeschreibung

Die Gemeinde Neukirchen/ Pleiße ist eine eigenständige Gemeinde im Landkreis Zwickau. In kurzer Entfernung zum Haus (ca. 450 m) befindet sich ein sehr schöner Kindergarten,
ein Einkaufszentrum sowie eine Schule. Ein Arzt befindet sich auch in Neukirchen. Die Städte Crimmitschau, Meerane, Werdau und Zwickau sind unweit entfernt. Ebenso der VW-Standort Mosel.
Den Bus erreichen sie in ca. 100 m.


Wohnung finden so einfach wie möglich - das ist unsere Mission!

Kostenlose Basic Features

0 € monatlich


  • Individuelles Such-Profil anlegen
  • Suchaufträge speichern
  • One-Klick Kontaktaufnahme

alles anzeigen

Jetzt kostenlos anmelden

Premium Features

19,99 € monatlich


  • Alle kostenlosen Features
  • Smart-Alarm per Whatsapp
  • Deine Chancen checken
  • Wohngegend analysieren

alles anzeigen

Jetzt Premium freischalten

Gewerblicher Anbieter

PlanetHome Group GmbH
Feringastraße 11
85774 Unterföhring

Wohnglück-ID:
Objekt-Nr.:
WGL-126575
171861