Einfamilienhaus freistehend in Murrhardt

Balkon/­Terrasse
derzeit vermietet
Garten/­-mitbenutzung
Gäste WC
Keller
Einbauküche
Garage/­Stellplatz

Charmantes EFH mit großem Garten und viel Potenzial in ruhiger Naturlage von Hinterbüchelberg

Anfragen bisher

Premium

Meine Chancen

Premium

Fairer Preis

Premium

250.000 €

Kaufpreis

202 m²

5 Zi.

71540 Murrhardt

Gewerblicher Anbieter

McMakler GmbH
Am Postbahnhof 17
10243 Berlin

Details

Grundstücksfläche
574 m²
Zimmerzahl
5
Haustyp
Einfamilienhaus freistehend
Etagenzahl
2
Bezugsfrei ab
nach Absprache
Anzahl Schlafzimmer
4
Anzahl Badezimmer
1
Anzahl Garage/ Stellplatz
1
Objektzustand
Renovierungsbedürftig
Baujahr
1917

Kosten

Kaufpreis
250.000 €
Käuferprovision
Die Provision i.H.v. 3,57 % inkl. MwSt. ist mit Kaufvertragsbeurkundung fällig, sofern der Verkaufspreis über 83.000,00 € liegt. Liegt der Verkaufspreis dagegen bei/unter 83.000,00 €, ist die fest vereinbarte Mindestprovision i.H.v. mind. 5.950,00
Was kostet dein Umzug?

Objektbeschreibung

Objektnr: 1071288


Dieses charmante Einfamilienhaus in ruhiger Lage von Hinterbüchelberg-Murrhardt vereint ländliche Idylle mit großzügigem Platzangebot und vielfältigen Nutzungsmöglichkeiten. Ursprünglich im Jahr 1917 erbaut und in den 1960er-Jahren durch einen Anbau über den Garagen erweitert, bietet die Immobilie heute eine interessante Grundlage für individuelle Wohnkonzepte oder eine umfassende Sanierung nach eigenen Vorstellungen.


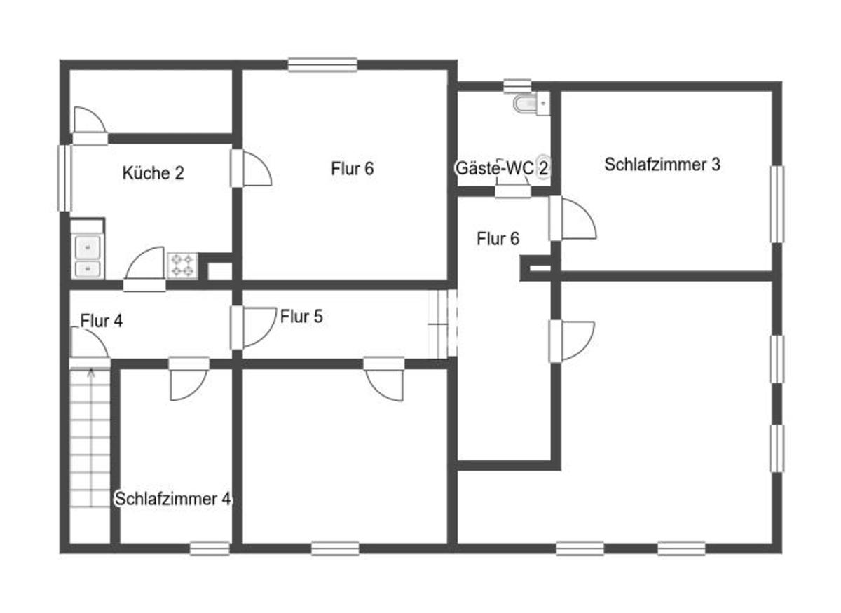
Der Zugang zum Haus erfolgt über eine außenliegende Treppe, die in das Erdgeschoss führt. Dort gelangt man zunächst in einen Vorraum, von dem aus sowohl die Erdgeschosswohnung als auch das Obergeschoss erreichbar sind. Im Erdgeschoss erwartet Sie eine klassische und funktionale Raumaufteilung: Über den Flur erschließen sich ein separates WC, eine Küche sowie drei gut geschnittene Schlafzimmer. Das modernisierte Badezimmer ist mit Badewanne und WC ausgestattet. Herzstück der Etage ist das helle und großzügige Wohnzimmer mit direktem Zugang zum Balkon, von dem aus sich ein wunderschöner Ausblick in die ruhige Umgebung genießen lässt.


Das Obergeschoss bietet weiteres Ausbaupotenzial und flexible Nutzungsmöglichkeiten. Hier befindet sich ein Raum mit vorhandenen Küchenanschlüssen, von dem aus ein weiteres Zimmer zugänglich ist. Ergänzt wird diese Etage durch vier zusätzliche Zimmer sowie eine separate Toilette.


Das Haus ist vollständig unterkellert und verfügt über zwei massiv gebaute Garagen, die sich unter dem Anbau befinden. Das großzügige Gartengrundstück mit einer Fläche von insgesamt 574 m² umgibt das Gebäude und bietet viel Raum für Erholung, Gartenliebhaber oder Familien.


Beheizt wird die Immobilie über eine Ölzentralheizung. Der Zustand des Hauses ist insgesamt sanierungsbedürftig, sodass umfangreiche Modernisierungsmaßnahmen erforderlich sind. Aktuell ist das Objekt langjährig vermietet und stellt somit auch für Kapitalanleger eine interessante Perspektive dar.


Insgesamt handelt es sich um eine Immobilie mit viel Potenzial in einer besonders ruhigen und naturnahen Lage, die darauf wartet, mit neuem Leben erfüllt zu werden.


Bausubstanz & Energieausweis

A+

A

B

C

D

E

F

G

H

417,6 kWh/(m²*a)

Baujahr
1987
Objektzustand
Renovierungsbedürftig
Wesentlicher Energieträger
Öl
Heizungsart
Zentralheizung
Befeuerung
Ölheizung
Energieausweis
liegt vor
Energieausweistyp
Bedarfsausweis
Energieeffizienzklasse
H
Endenergiebedarf
417,6 kWh/(m²*a)

Ausstattung


  • In ruhiger Umgebung in Waldrandlage von Murrhardt, zur Vermietung (aktuell vermietet) und zur Selbstnutzung

  • Tolle Außenbereiche: Der Garten auf ca. 574 m² großzügigem Grund lädt zum Verweilen ein - ein Balkon bereichert das Erlebnis

  • Das Objekt präsentiert sich in einem renovierungsbedürftigen Zustand

  • Vielseitig ausgestattetes Haus mit einer Einbauküche sowie Fliesenböden

  • Objekt bietet Staufläche im Keller sowie Platz für Pkw dank 2 Garagen


Lagebeschreibung

Lage: Idyllische Waldrandlage - genießen Sie einen hohen Erholungswert
Bildung und Betreuung: Nahegelenes Bildungs- und Betreuungsangebot umfasst einen Kindergarten (max 6 km)
Nahversorgung: Rund 6 km zu wichtigen Anlaufstellen wie Supermärkten, Apotheken, Postfilialen und Bankfilialen
Anbindung: Bushaltestelle, Bahnhof und Autobahn komfortabel erreichbar


Sonstige Angaben

Vereinbaren Sie noch heute einen Besichtigungstermin!








Alle Angaben sind ohne Gewähr und basieren ausschließlich auf Informationen, die uns von unserem Auftraggeber zur Verfügung gestellt wurden. Wir übernehmen keine Gewähr für die Vollständigkeit, Richtigkeit und Aktualität der Angaben.


Wohnung finden so einfach wie möglich - das ist unsere Mission!

Kostenlose Basic Features

0 € monatlich


  • Individuelles Such-Profil anlegen
  • Suchaufträge speichern
  • One-Klick Kontaktaufnahme

alles anzeigen

Jetzt kostenlos anmelden

Premium Features

19,99 € monatlich


  • Alle kostenlosen Features
  • Smart-Alarm per Whatsapp
  • Deine Chancen checken
  • Wohngegend analysieren

alles anzeigen

Jetzt Premium freischalten

Gewerblicher Anbieter

McMakler GmbH
Am Postbahnhof 17
10243 Berlin

Wohnglück-ID:
Objekt-Nr.:
WGL-1252323
69e0c8ea26a362e9d2f8652b