Wohnung in Frankfurt-Riedberg (Kalbach-Riedberg)

Aufzug
Balkon/­Terrasse
Gäste WC
Keller
Einbauküche
Garage/­Stellplatz

Terrassenliebhaber aufgepasst! Riedberg

Anfragen bisher

Premium

Meine Chancen

Premium

Fairer Preis

Premium

649.900 €

Kaufpreis

110 m²

3 Zi.

Erdg.

Grundriss

60439 Frankfurt-Riedberg

Gewerblicher Anbieter

UK Immobilien
Auf der Kuhr 38
60435 Frankfurt am Main

Details

Zimmerzahl
3
Immobilienart
Wohnung
Etagenzahl
3
Bezugsfrei ab
nach Vereinbarung
Anzahl Schlafzimmer
2
Anzahl Badezimmer
1
Anzahl Garage/ Stellplatz
1
Objektzustand
Gepflegt
Baujahr
2012

Kosten

Kaufpreis
649.900 €
Käuferprovision
Käuferprovision 3,00 % inkl. MwSt. vom beurkundeten Kaufpreis
Käuferprovision 3,00 % inkl. gesetzl. MwSt. von dem beurkundeten Kaufpreis verdient und fällig nach notarieller Beurkundung vom Käufer an UK Immobilien. Wir haben einen entgeltpflichtigen Maklervertrag in gleicher Höhe mit der Verkäuferin abgeschlossen. (Maklervertrag mit beiden Seiten gem. §656c BGB). Die Höhe der Bruttocourtage unterliegt der Anpassung bei Steuersatzänderungen. Grunderwerbsteuer, Notar- und Gerichtskosten trägt der Käufer. Zwischenverkauf vorbehalten.
Was kostet dein Umzug?

Stellplätze

Stellplatztyp
Duplex
Anzahl
1
Kaufpreis
20.000 €

Objektbeschreibung

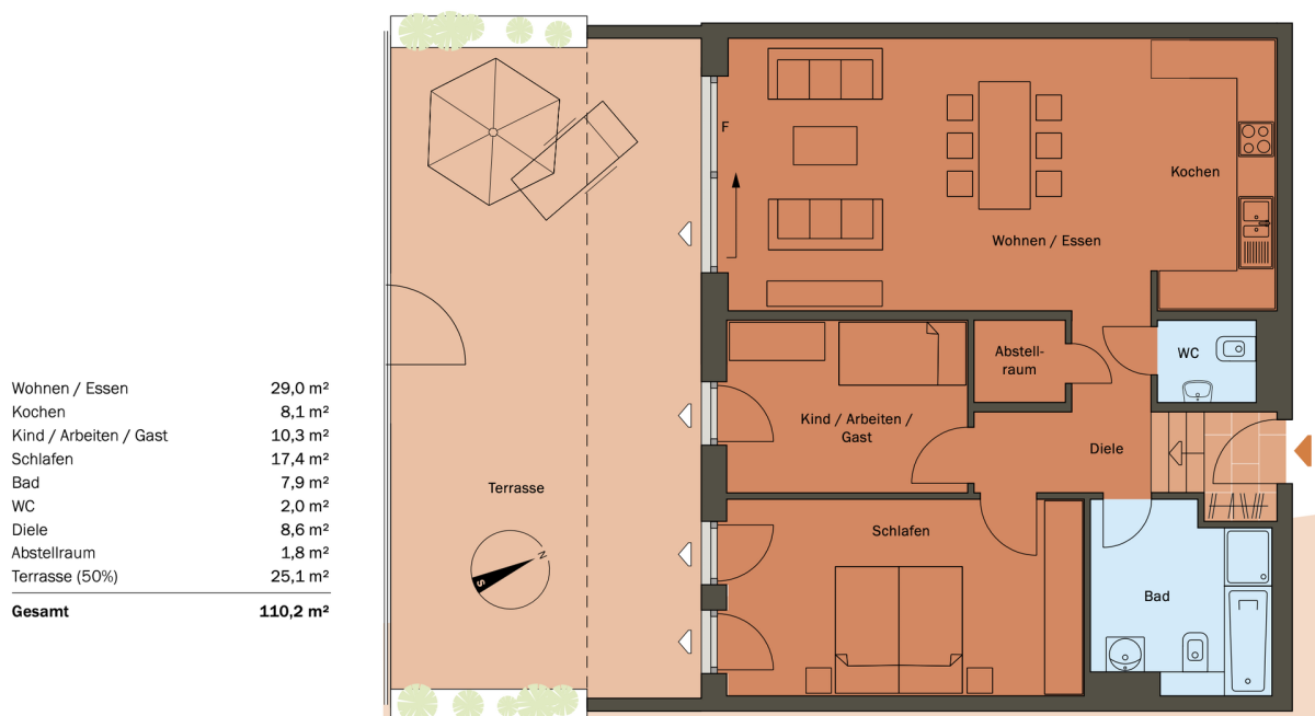
Es erwartet Sie eine sehr großzügige 3-Zimmer-Wohnung im Hochparterre auf dem Riedberg. Absolutes Highlight ist die weitläufige XXL-Terrasse mit realen 50 m², welche die Tagesverlaufssonne einfängt und tolle Entfaltungsmöglichkeiten bietet.
Als sehr großzügig ist auch der Wohn-Ess-Kochbereich mit 37 m² zu bezeichnen, welcher umfangreiche Möblierungsmöglichkeiten bietet. Auf die Terrasse gelangt man über eine große Schiebetür, welche entsprechend kaum Platz benötigt.


Die Einbauküche fügt sich harmonisch an einer Wandseite mit ein und ist mit allen techn. Geräten ausgestattet.


Schlafzimmer und 3. Zimmer bieten...ZUM WEITERLESEN ERHALTEN SIE ALLE INFOS NACH ANFRAGE! Fordern Sie jetzt das Lang-Exposè an!





Bitte stellen Sie Ihre Anfrage über das Kontaktformular (Anbieter kontaktieren) und schreiben uns IMMER über DIE Emailadresse, welche bei der Erstanfrage angegeben wird!
Bitte NICHT die CHAT-Systeme der Portale nutzen, sondern antworten ausschließlich auf unsere Emails!






  • Überprüfen Sie den Spam-/Werbungsordner auf unsere Antwort !

  • Emailadresse korrekt angegeben, genug Speicher vorhanden?!

  • Alle Fotos und Informationen sind im Lang-Exposé einzusehen - jetzt anfordern!


Info: Das Exposé kann Ihnen unmittelbar nur zur Verfügung gestellt werden, wenn Sie dem vorzeitigen Beginn unserer Tätigkeit zustimmen. Ansonsten sind weitere Informationen und auch Besichtigungen erst in 14 Tagen abrufbar/umzusetzen. Mit der Anfrage bei und durch Inanspruchnahme der Dienstleistung der Firma UK Immobilien, wird ein Maklervertrag geschlossen. Kosten entstehen Ihnen erst nach Unterschrift eines Kaufvertrags! Sofern Ihnen Ihr gesetzlich zustehendes Widerrufsrecht nicht bekannt sein sollte, erhalten Sie in der dann erscheinenden Widerrufsbelehrung ein kurzes Info-Video.


Terminabsprache ist erforderlich und ausschließlich über UK-Immobilien durchzuführen.
ALLE INFOS ERHALTEN SIE NACH ANFRAGE!


EIGENTÜMER-SERVICE:
Es steht ein Verkauf oder eine Vermietung Ihrer Immobilie an? Dann sollten Sie den aktuellen Marktwert kennen! Wir bewerten für Sie professionell, unabhängig, kostenfrei und unverbindlich!
UK IMMOBILIEN - Regionaldirektion Frankfurt Nord-Ost des
BVFI - Bundesverband für die Immobilienwirtschaft


Bausubstanz & Energieausweis

A+

A

B

C

D

E

F

G

H

Objektzustand
Gepflegt
Wesentlicher Energieträger
Fernwärme
Heizungsart
Fußbodenheizung
Befeuerung
Fernwärme
Energieausweis
liegt vor
Energieausweistyp
Verbrauchsausweis
Ausstellungsdatum
26.09.2024
Gültig bis
25.09.2034
Energieverbrauchskennwert
37 kWh/(m²*a)
Energieeffizienzklasse
A

Ausstattung


  • Sehr geräumige, gut geschnittene 3-Zimmer-Wohnung im Hochparterre

  • Süd-West-XXL-Terrasse

  • Energie-Effizienzhaus für geringe Heizkosten

  • Großzügiger Wohnbereich mit 37 m²

  • Einbauküche inkl. aller techn. Geräte

  • Fußbodenheizung

  • Echtholz-Eichen-Parkettboden

  • Modernes Bad mit Badewanne sowie Dusche mit Echtglas-Duschkabine

  • Fenster mit Sonnenschutzverglasung

  • Raumhohe Wohnungstüren

  • Große Schiebetür vom Wohnzimmer zur Terrasse

  • Abstellraum

  • Videogegensprechanlage

  • Hochwertige Außenanlagengestaltung

  • Tiefgaragen-Stellplatz (Duplex) zugehörig zu erwerben


Fordern Sie jetzt das Lang-Exposé an für alle Fotos, Besichtigungstermin, Prüfung Ihrer Finanzierung und weiterer Informationen.


Bitte stellen Sie Ihre Anfrage über das Kontaktformular (Anbieter kontaktieren) und teilen uns freundlicherweise mit, inwieweit Sie bzgl. einer Finanzierung aufgestellt sind.


VIP-Kunden und FANs wissen immer die neuesten Angebote:
https://www.uk-immobilien.com/VIP-Angebote
https://www.facebook.com/UKImmobilien.ffm
https://www.instagram.com/ukimmobilien
Eigentümer-Service für Sie: Wunsch-Mieter-Suche zum Festpreis;
Verkauf auf hohem Niveau!


Lagebeschreibung

Der Riedberg entwickelt sich schnell. Universität, Einkaufszentrum, öffentliche Verkehrsmittel, Autobahnanschluß, kurze Wege in die Frankfurter City, nach Bad Homburg oder nach Oberursel, nach Offenbach, zum Flughafen oder zum Hauptbahnhof, zur Messe oder ins Bankenviertel oder in die Oper.
Im Norden Frankfurts boomt seit 2001 ein neuer Stadtteil am Riedberg zwischen Kalbach und Niederursel. Hier entsteht auf einem ehemals landwirtschaftlich genutzten Gelände ein vollwertiger Stadtteil, der etwa 15.000 Menschen Wohnung gibt und Kindertagesstätten, Grund- und weiterführende Schulen, Einkaufsmöglichkeiten, der Science-City-Campus Riedberg der Goethe-Universität, Sportstätten und weitere Infrastruktur zur Verfügung stellt.
Die enge Verzahnung mit der bestehenden Stadt schaffen die U-Bahnverbindungen U8/U9 zum Nordwestzentrum und zur Frankfurter Innenstadt sowie die Anbindung an die Ringautobahn A661 und A5 und zwei Hauptausfallstraßen (Rosa-Luxemburg-Strasse und Eschersheimer Landstraße).


Sonstige Angaben

BESICHTIGUNG? GERNE!
Sie erreichen uns am besten und bevorzugt über das Anfrageformular vom Portal (Anbieter kontaktieren).
Bitte lesen Sie sich das dann freigegebene Exposé vollständig durch, um Enttäuschungen und Zeit zu sparen.
Für die meisten Immobilien sind fotorealistische 360-GRAD-Besichtigungen verfügbar - entsprechend im Angebot verlinkt. Zudem bieten wir für jede Immobilie ONLINE-LIVE-Besichtigungen!


Der Eigentümer hat uns beauftragt, den Verkauf seiner Immobilie zu koordinieren und diese zu vermitteln. Auf Wunsch des Eigentümers und aus formellen Gründen, bitten wir Sie ausdrücklich, von direkten Kontakten zu Bewohner oder Eigentümer etc. abzusehen und Besichtigungstermine bzw. Informationsgespräche ausschließlich über uns zu vereinbaren.


Info: Das Exposé kann Ihnen unmittelbar nur zur Verfügung gestellt werden, wenn Sie dem vorzeitigen Beginn unserer Tätigkeit zustimmen. Ansonsten sind weitere Informationen und auch Besichtigungen erst in 14 Tagen abrufbar/umzusetzen. Kosten entstehen Ihnen erst nach Unterschrift eines Kaufvertrags! Sofern Ihnen Ihr gesetzlich zustehendes Widerrufsrecht nicht bekannt sein sollte, erhalten Sie in der dann erscheinenden Widerrufsbelehrung ein kurzes Info-Video.


Alle Angaben erfolgen gem. Datenschutzgesetz freiwillig. Mit der Übersendung Ihrer Anfrage geben Sie uns die Erlaubnis, Sie zu kontaktieren. Besichtigung nur nach Vereinbarung und Terminbestätigung.


Alle Angaben stammen vom Verkäufer und sind von uns nicht im Einzelnen überprüft worden, weshalb wir keine Haftung für die Richtigkeit der Angaben übernehmen. Insbesondere die Angaben zur Wohnfläche und zum Baujahr haben wir nicht durch eigene Nachforschungen oder eine Wohnflächenberechnung kontrolliert. Alle Zahlen und Größenangaben sind ca.-Angaben. Ein Grundriss dient zu Illustrations-/Orientierungszwecken und muss nicht zwingend maßstabsgerecht sein.


Grunderwerbsteuer, Notar- und Gerichtskosten trägt der Käufer. Zwischenverkauf vorbehalten. Sollte das von uns nachgewiesene Objekt bekannt sein, teilen Sie uns dies unverzüglich mit. Die Weitergabe dieses Exposés an Dritte ohne unsere Zustimmung löst ggf. Provisions- bzw. Schadenersatzansprüche aus.


Diese Immobilie passt nicht zu Ihren Vorstellungen?
Eine Gesamtübersicht über unser aktuelles Immobilienangebot finden Sie auf unserer Homepage unter www.uk-immobilien.com


VIP-Immobilien-Wecker
Um neue Immobilienangebote noch vor deren Portal-Veröffentlichung zu erhalten, können Sie Ihr persönliches VIP-Suchprofil hinterlegen: https://www.uk-immobilien.com/vip-angebote/


EIGENTÜMER-SERVICE:
Es steht ein Verkauf oder eine Vermietung Ihrer Immobilie an? Dann sollten Sie den aktuellen Marktwert kennen! Wir bewerten für Sie professionell, kostenfrei und unverbindlich!
Unser Service für Immobilieneigentümer: Marktgerechte Immobilienbewertung


Auf dieser Plattform wird nur ein kleiner Teil unserer Immobilienangebote präsentiert. Alle Angebote sind unter www.uk-immobilien.com einzusehen.


Wohnung finden so einfach wie möglich - das ist unsere Mission!

Kostenlose Basic Features

0 € monatlich


  • Individuelles Such-Profil anlegen
  • Suchaufträge speichern
  • One-Klick Kontaktaufnahme

alles anzeigen

Jetzt kostenlos anmelden

Premium Features

19,99 € monatlich


  • Alle kostenlosen Features
  • Smart-Alarm per Whatsapp
  • Deine Chancen checken
  • Wohngegend analysieren

alles anzeigen

Jetzt Premium freischalten

Gewerblicher Anbieter

UK Immobilien
Auf der Kuhr 38
60435 Frankfurt am Main

Wohnglück-ID:
Objekt-Nr.:
WGL-1252101
4075-1