Sonstige in Berlin (Prenzlauer Berg)

Gäste WC
Keller

Zwei Gewerbeflächen im Paket - Hier ist fast alles realisierbar!

Anfragen bisher

Premium

Meine Chancen

Premium

Fairer Preis

Premium

1.099.000 €

Kaufpreis

200 m²

5 Zi.

Erdg.

Grundriss

10405 Berlin

Gewerblicher Anbieter

FALC Immobilien Berlin-Mariendorf
Marienfelder Allee 26
12277 Berlin

Details

Zimmerzahl
5
Haustyp
Sonstige
Bezugsfrei ab
sofort
Objektzustand
Gepflegt
Letzte Modernisierung/ Sanierung
2000
Baujahr
1900

Kosten

Kaufpreis
1.099.000 €
Käuferprovision
7,14% inklusive Mehrwertsteuer
Was kostet dein Umzug?

Objektbeschreibung

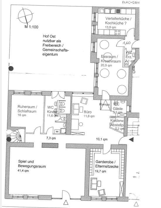
Hier handelt es sich um zwei zusammengelegte Gewerbeeinheiten. Die vielseitig nutzbare Gewerbeeinheit überzeugt durch eine durchdachte Raumaufteilung und flexible Nutzungsmöglichkeiten. Insgesamt stehen fünf gut geschnittene Räume zur Verfügung, die je nach Bedarf offen gestaltet oder voneinander abgetrennt genutzt werden können. Dadurch eignet sich die Fläche sowohl für kommunikative Arbeitskonzepte als auch für klar strukturierte, separate Nutzungsbereiche.


Ergänzt wird das Raumangebot durch zwei separate Toiletten sowie einen praktischen Abstellraum, der zusätzlichen Stauraum innerhalb der Einheit bietet. Ein zugehöriger Keller schafft weitere Lager- oder Archivflächen.


Die Einheit wurde zuletzt als Kindertagesstätte genutzt und erfüllt somit bereits viele Anforderungen für eine entsprechende Nutzung, sodass eine erneute Verwendung als Kita problemlos möglich ist. Gleichzeitig bietet die flexible Grundrissgestaltung ideale Voraussetzungen für zahlreiche andere Gewerbeformen. Ob als Büro, Praxis, Kanzlei, Ladengeschäft oder für alternative gewerbliche Konzepte – hier lassen sich unterschiedlichste Nutzungsideen realisieren.


Insgesamt handelt es sich um eine anpassungsfähige und funktionale Gewerbefläche, die sowohl durch ihre Struktur als auch durch ihre vielfältigen Einsatzmöglichkeiten überzeugt.


Aktuell ist die gesamte Gewerbefläche an einen zuverlässigen Mieter vermietet. Die Jahresnettokaltmiete beträgt 34.176€. Der Vertrag läuft noch bis Mai 2027. Der Mieter würde allerdings auch früher aus der Einheit ausziehen, sodass man zeitnah die Einheit selbst nutzen könnte oder umgestalten und anderweitig vermieten könnte. Es gibt bereits viele Anfragen von verschiedenen Gewerken.


Bausubstanz & Energieausweis

A+

A

B

C

D

E

F

G

H

Objektzustand
Gepflegt
Letzte Modernisierung
2000
Wesentlicher Energieträger
Gas
Heizungsart
Zentralheizung
Befeuerung
Gasheizung
Energieausweis
liegt vor
Energieausweistyp
Verbrauchsausweis
Ausstellungsdatum
13.04.2018
Gültig bis
12.04.2028
Energieverbrauchskennwert
86 kWh/(m²*a)
Energieeffizienzklasse
C
Energieverbrauch für Warmwasser enthalten
Ja

Ausstattung

Die Einheit verfügt über eine große Fensterfront zur Straße.


Ein großer Keller mit direktem Zugang über die Gewerberäume bietet zusätzliche Lagermöglichkeiten.


Das Haus wird über eine Gas-Heizung beheizt.


Lagebeschreibung

Die Gewerbeeinheit in der Jablonskistraße 24 befindet sich im beliebten Berliner Stadtteil Prenzlauer Berg und überzeugt durch ihre angenehm ruhige Lage innerhalb eines gewachsenen Wohn- und Geschäftsumfelds.


Die Straße selbst ist geprägt von einer entspannten, nachbarschaftlichen Atmosphäre und bietet damit ideale Voraussetzungen für Gewerbe, die Wert auf ein konzentriertes Arbeiten oder diskrete Kundenkontakte legen. Abseits des hektischen Großstadttrubels entsteht hier ein Umfeld, das sowohl für Dienstleister, Kreativschaffende als auch für ruhige Praxis- oder Büroeinheiten hervorragend geeignet ist.


In der näheren Umgebung finden sich dennoch vielfältige Angebote des täglichen Bedarfs, charmante Cafés sowie kleinere Geschäfte, die das Viertel lebendig machen, ohne dabei an Ruhe einzubüßen. Diese ausgewogene Mischung macht den Standort besonders attraktiv für Gewerbetreibende, die eine inspirierende, aber zugleich entspannte Arbeitsumgebung suchen.


Die Anbindung an den öffentlichen Nahverkehr ist sehr gut: Tram- und Buslinien sowie fußläufig erreichbare S- und U-Bahnstationen sorgen für eine komfortable Erreichbarkeit aus allen Teilen Berlins.


Insgesamt bietet dieser Standort eine gelungene Kombination aus ruhiger Lage, urbanem Umfeld und guter Infrastruktur – ideale Voraussetzungen für nachhaltigen geschäftlichen Erfolg.


Sonstige Angaben

Eine Besichtigung sagt mehr als jede Beschreibung, bei Interesse zögern Sie nicht und vereinbaren Sie einen unverbindlichen Termin.
Wir bieten nicht nur eine kostenlose Hotline, sondern auch einen Service am Wochenende an.


Bei Interesse geben Sie bitte immer Ihre vollständigen Kontaktdaten an.


Die Objektbeschreibung beruht ganz oder zum Teil auf Angaben des Eigentümers. Für die Richtigkeit oder Vollständigkeit übernehmen wir keine Gewähr.


Sie haben auf Anhieb nichts gefunden oder suchen Sie etwas ganz bestimmtes?
Teilen Sie uns einfach mit was Sie suchen und wonach wir für Sie die Augen offen halten dürfen. Profitieren Sie von den Vorteilen einer professionellen Maklersuche. Der Suchauftrag ist unverbindlich.
Auf unser Homepage www.falcimmo.de unter der Rubrik Immobiliensuche halten wir für Sie zum einen den Onlinesuchauftrag bereit, haben aber auch viele andere nützliche Informationen für Kaufinteressenten und Eigentümer.


Wohnung finden so einfach wie möglich - das ist unsere Mission!

Kostenlose Basic Features

0 € monatlich


  • Individuelles Such-Profil anlegen
  • Suchaufträge speichern
  • One-Klick Kontaktaufnahme

alles anzeigen

Jetzt kostenlos anmelden

Premium Features

19,99 € monatlich


  • Alle kostenlosen Features
  • Smart-Alarm per Whatsapp
  • Deine Chancen checken
  • Wohngegend analysieren

alles anzeigen

Jetzt Premium freischalten

Gewerblicher Anbieter

FALC Immobilien Berlin-Mariendorf
Marienfelder Allee 26
12277 Berlin

Wohnglück-ID:
Objekt-Nr.:
WGL-1249391
FALC-RD-83790