Mehrfamilienhaus in München (Pasing)

Balkon/­Terrasse
Garage/­Stellplatz

Mehrgenerationenhaus in bester Umgebung München/Pasing

Anfragen bisher

Premium

Meine Chancen

Premium

Fairer Preis

Premium

1.300.000 €

Kaufpreis

220 m²

8 Zi.

81243 München

Gewerblicher Anbieter

Raiffeisenbank Schwabmünchen-Stauden eG

Details

Grundstücksfläche
420 m²
Zimmerzahl
8
Haustyp
Mehrfamilienhaus
Anzahl Garage/ Stellplatz
1
Baujahr
1970

Kosten

Kaufpreis
1.300.000 €
Käuferprovision
3,570 %
Was kostet dein Umzug?

Stellplätze

Stellplatztyp
Garage
Anzahl
1

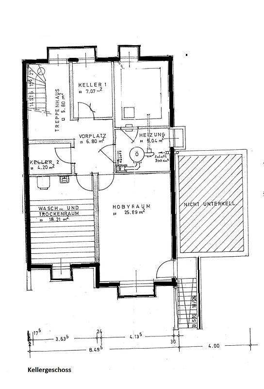
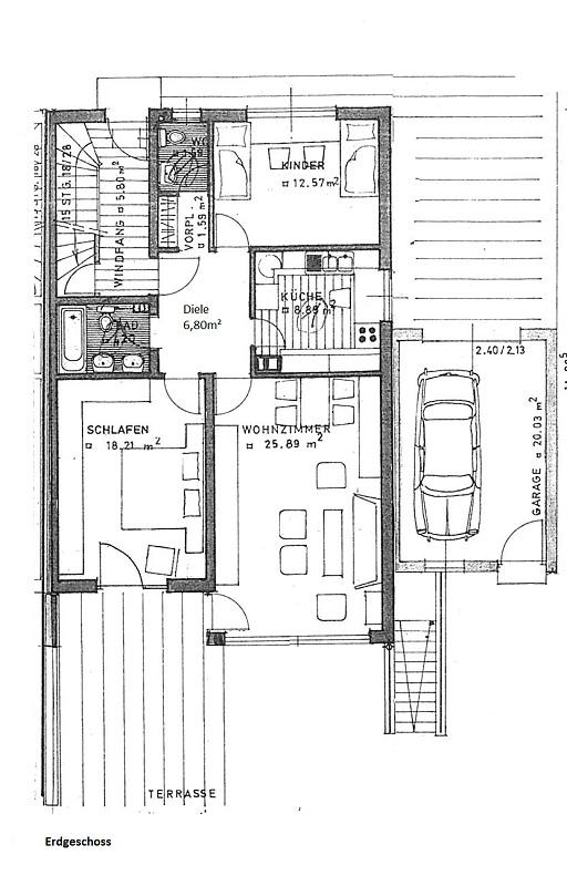
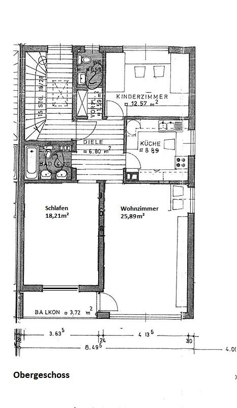
Objektbeschreibung

Die massiv erbaute Doppelhaushälfte aus dem Jahr 1970 wurde im Jahr 2020 durch den Ausbau des Dachgeschosses erweitert. Dadurch sind drei helle und schön geschnittene Wohneinheiten entstanden. 
Die Dachgeschosswohnung ist gut ausgestattet und bereits an einen solventen Mieter gut vermietet, während die beiden weiteren Einheiten derzeit noch zur freien Verfügung stehen.

Einteilung der Wohneinheiten:
Die Erd- und Obergeschosswohnung mit einer Wohnfläche von je ca. 80 Quadratmetern und 3-ZKB sind vom Grundriss her identisch geschnitten.
Ein großes Wohnzimmer und Schlafzimmer - im südlichen Teil gelegen - haben beide einen direkten Zugang auf die Terrasse oder den Balkon. Ein weiteres geräumiges Kinderzimmer befindet sich im nördlichen Teil. 
Je ein Badezimmer sowie ein separates Gäste-WC runden die beiden Wohnungen ab.

Die modern gestaltete DG-Wohnung mit einer Wohnfläche von ca. 60 Quadratmetern wurde im Jahre 2020 komplett und modern ausgebaut. Hier entstand ein großer Studiobereich mit Küchenzeile - schön mit hohen Decken und offenen Sichtbalken.
Ergänzt wird diese Wohnung durch ein Schlafzimmer, Badezimmer mit Dusche und einem separaten Gäste-WC. Die Wohnung wurde vermietet, die monatliche Miethöhe beträgt 1.200 Euro.

Das Objekt bietet vielfältige Nutzungsmöglichkeiten, beispielsweise als Mehrgenerationenhaus oder einer attraktiven Kapitalanlage. Der Garten sowie der Balkon sind nach Süden ausgerichtet und sorgen für eine helle, freundliche Wohnatmosphäre.

Im Jahr 2023 wurde die Elektrik vollständig erneuert.
Eine Garage sowie ein zusätzlicher Stellplatz runden das Angebot ab.

Das Haus wird durch eine Öl-Heizung aus dem Jahr 1993 beheizt.
Der Energiebedarf des Hauses beläuft sich auf 118,6 kWh/(m² x a), Kennzeichen: D.

Wir freuen uns auf Ihre Anfrage.


Bausubstanz & Energieausweis

A+

A

B

C

D

118,6 kWh/(m²*a)

E

F

G

H

Wesentlicher Energieträger
Öl
Heizungsart
Ölheizung
Befeuerung
Ölheizung
Energieausweis
liegt vor
Energieausweistyp
Bedarfsausweis
Ausstellungsdatum
22.09.2022
Gültig bis
21.09.2032
Energieeffizienzklasse
D
Endenergiebedarf
118,6 kWh/(m²*a)

Lagebeschreibung

Das Objekt befindet sich in einem ruhigen und beliebten Wohngebiet in München / Pasing.

Im charmanten Westen von München, im lebendigen Stadtteil Pasing, vereint diese Lage das Beste aus zwei Welten: urbanes Leben und entspannte Rückzugsorte.

Pasing begeistert mit seinem historischen Flair rund um den Pasinger Marienplatz und einer ausgezeichneten Infrastruktur. Die Pasinger Arcaden laden zum Bummeln ein, während kleine Cafe?s und grüne Oasen den Alltag entschleunigen.

Dank optimaler Anbindung - ob mit der S-Bahn oder mit dem Auto - erreichen Sie die Münchener Innenstadt in kürzester Zeit, während Sie gleichzeitig die Nähe zur Natur genießen: Die Würmauen und zahlreiche Parks bieten Raum zum Durchatmen und Auftanken.


Ein Wohlfühlort, der nicht nur jung und alt verbindet - willkommen in Pasing.


Wohnung finden so einfach wie möglich - das ist unsere Mission!

Kostenlose Basic Features

0 € monatlich


  • Individuelles Such-Profil anlegen
  • Suchaufträge speichern
  • One-Klick Kontaktaufnahme

alles anzeigen

Jetzt kostenlos anmelden

Premium Features

19,99 € monatlich


  • Alle kostenlosen Features
  • Smart-Alarm per Whatsapp
  • Deine Chancen checken
  • Wohngegend analysieren

alles anzeigen

Jetzt Premium freischalten

Gewerblicher Anbieter

Raiffeisenbank Schwabmünchen-Stauden eG

Wohnglück-ID:
Objekt-Nr.:
WGL-1248524
0-1744#lSTY2