Dachgeschosswohnung in Potsdam (Innenstadt)

Aufzug
Balkon/­Terrasse
Denkmalschutz
Garten/­-mitbenutzung
Einbauküche

Bezugsfreie - sehr schöne 2 Zimmer-Wohnung an einem bedeutsamen Potsdamer Standort!

Anfragen bisher

Premium

Meine Chancen

Premium

Fairer Preis

Premium

469.000 €

Kaufpreis

68 m²

2 Zi.

3. OG

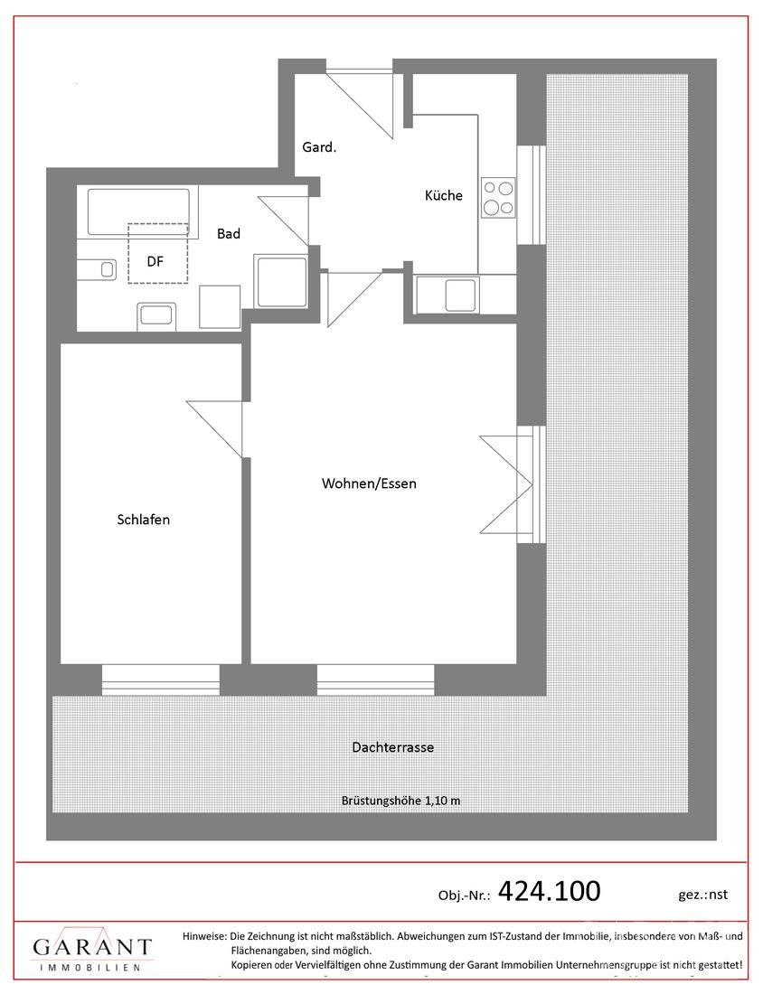
Grundriss

14473 Potsdam

Gewerblicher Anbieter

Garant Immobilien AG
Konrad-Zuse-Ring 11
14469 Potsdam

Details

Zimmerzahl
2
Wohnungstyp
Dachgeschosswohnung
Etage, Geschoss
3
Etagenzahl
3
Bezugsfrei ab
sofort
Anzahl Badezimmer
1
Objektzustand
Gepflegt
Baujahr
1863

Kosten

Kaufpreis
469.000 €
Hausgeld
366 €
Käuferprovision
3,57 % (inkl. MwSt.)
Was kostet dein Umzug?

Objektbeschreibung

Hier trifft zeitgemäßer Wohnkomfort, auf die Atmosphäre eines denkmalgeschützten Fabrikpalastes. So könnte man die neuen Wohnräume, direkt am Ufer der Nuthe, zwischen dem Park Babelsberg, dem Weberviertel und der Innenstadt beschreiben. Leben im Grünen, aber auch mitten in der Stadt. Es erwartet Sie ein besonderes "Loft-Living" Erlebnis, kombiniert mit einer modernen Ausstattung und natürlich einem Top-Investitionsstandortes.


Die 2 Zimmer-Wohnung können Sie über den Hausflur und/oder den Fahrstuhl erreichen, welcher Sie direkt und barrierearm, vor Ihre Wohnung bringt. Ausgestattet mit einem warmen Eichenparkett, einer Einbauküche und einem mit Tageslicht versorgtem Wannen- und Duschbad, erreicht man hier zügig den "Wohlfühlmodus".


Als Highlight kann man definitiv die Terrasse bezeichnen, welche sich u.a. am Außenrand der Nord-West Seite befindet. Ein eigener Stellplatz und das Kellerabteil runden das Gesamtpaket dieses wunderbaren Standortes ab.



Weitere Angebote unter www.GARANT-IMMO.de


Bausubstanz & Energieausweis

Objektzustand
Gepflegt
Heizungsart
Gasheizung
Befeuerung
Gasheizung

Ausstattung


  • Eichenparkett

  • Einbauküche

  • doppelt isolierte Fenster (Alu)

  • Tageslichtbad (Oberlicht - Wannen und Duschbereich)

  • Große Terrasse (N/W)

  • Kfz-Stellplatz vor dem Haus (Außenstellplatz)

  • Kellerabteil

  • Gartennutzung

  • Spielplatz





Lagebeschreibung

Dank der zentralen Lage im Herzen der Potsdamer Gartenlandschaft, ist Ihr Weg vom "Jute Kiez" in die Weltstadt, besonders kurz und egal welches Verkehrsmittel Sie wählen. Ab Haltestelle des Objektes, sind Sie mit dem Stadtbus in drei Minuten am Potsdamer Hauptbahnhof. Von dort erreichen Sie in 20 Minuten den Berliner "Bahnhof Zoo". Wer zwischendrin aussteigen möchte, fährt mit der Tram von der Haltestelle Alt Nowawes zum S-Bahnhof Babelsberg und ist von dort in ca. 10 Minuten bei den Jachten am Großen Wannsee und in ca. 20 Minuten im Grunewald. Mit dem Auto biegen Sie vom
Standort nur einmal halbrechts ab und sind auf Potsdams West-Ost-Verkehrsader, der Nuthestraße, und von dort in ca. 30 Minuten im Zentrum Berlins.


Quelle: Terraplan Immobilien- und Treuhandgesellschaft mbH und die Autoren.


Sonstige Angaben

Energiebedarfsausweis
Energiekennwert: 85,40 kWh/(qm*a)
Energieeffizienz: Klasse C (<100)
Heizung: Blockheizkraftwerk mit Gas
Baujahr laut Energieausweis: 1863


Wohnung finden so einfach wie möglich - das ist unsere Mission!

Kostenlose Basic Features

0 € monatlich


  • Individuelles Such-Profil anlegen
  • Suchaufträge speichern
  • One-Klick Kontaktaufnahme

alles anzeigen

Jetzt kostenlos anmelden

Premium Features

19,99 € monatlich


  • Alle kostenlosen Features
  • Smart-Alarm per Whatsapp
  • Deine Chancen checken
  • Wohngegend analysieren

alles anzeigen

Jetzt Premium freischalten

Gewerblicher Anbieter

Garant Immobilien AG
Konrad-Zuse-Ring 11
14469 Potsdam

Wohnglück-ID:
Objekt-Nr.:
WGL-1210081
424.100