Zinshaus / Renditenobjekt in Selent

derzeit vermietet
Garten/­-mitbenutzung
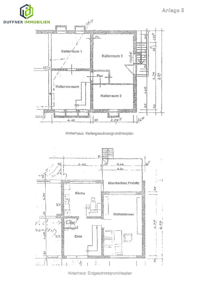
Keller

Attraktives Mehrfamilienhaus mit 4 Wohnungen - Hell, modern, zentral in Selent

Anfragen bisher

Premium

Meine Chancen

Premium

Fairer Preis

Premium

649.900 â‚¬

Kaufpreis

322 m²

12 Zi.

24238 Selent

Gewerblicher Anbieter

Duffner & Team
Moorkamp 2
24253 Probsteierhagen

Details

Grundstücksfläche
1.369 m²
Zimmerzahl
12
Typ der Gewerbeimmobilie
Zinshaus / Renditenobjekt
Etagenzahl
2
Nutzfläche
100 m²
Mieteinnahmen pro Monat
2.080 €
Objektzustand
Modernisiert
Letzte Modernisierung/ Sanierung
Fenster, Gas-Heizung mit Solar, Dämmung
Baujahr
1972

Kosten

Kaufpreis
649.900 €
Käuferprovision
2.975% (inkl. MwSt.)
Was kostet dein Umzug?

Objektbeschreibung

Das sehr gepflegte Mehrfamilienhaus aus dem Jahr 1972 wurde in massiver Bauweise errichtet. Das Haus wurde komplett saniert. Es handelt sich um eine solide und gut gepflegte Immobilie mit vier vermieteten Wohneinheiten. Die gesamte Wohnfläche des Gebäudes beträgt 322 m², zusätzlich stehen rund 100 m² Kellerfläche zur Verfügung.


Das Haus wurde regelmäßig instand gehalten und bietet keinerlei Renovierungsstau. Eine nachhaltige und moderne Heiztechnik wurde 2010 mit einer Solarunterstützung für die Heizung installiert. Ebenso wurden im selben Jahr neue Fenster eingebaut und eine umfassende Fassadendämmung vorgenommen. Dies trägt zur Energieeffizienz und zu niedrigen Betriebskosten bei.


Die Immobilie befindet sich auf einem großzügigen Grundstück von 1.369 m². Durch die gute Lage und die laufend erzielten Mieteinnahmen bietet sie eine attraktive Investitionsmöglichkeit für Kapitalanleger oder Selbstnutzer.


Wohnungsgrößen und Besonderheiten:


Wohnung 1: 83 m² Wohnfläche, zusätzlich Keller, mit Gartenanteil


Wohnung 2: 68 m² Wohnfläche, mit Gartenanteil


Wohnung 3: 115 m² Wohnfläche, zusätzlich ca. 66 m² Keller, mit Gartenanteil


Wohnung 4 (im Nebenhaus): ca. 60 m² Wohnfläche


Bis auf die Dachgeschosswohnung verfĂĽgen alle Wohneinheiten ĂĽber einen eigenen Gartenanteil zur freien Nutzung.


Für Fahrzeuge stehen ausreichend PKW Stellplätze zur Verfügung.


Bausubstanz & Energieausweis

A+

A

B

C

D

114,08 kWh/(m²*a)

E

F

G

H

Baujahr
1972
Objektzustand
Modernisiert
Letzte Modernisierung
Fenster, Gas-Heizung mit Solar, Dämmung
Wesentlicher Energieträger
GAS
Heizungsart
Zentralheizung
Befeuerung
Gasheizung
Energieausweis
liegt vor
Energieausweistyp
Bedarfsausweis
GĂĽltig bis
19.03.2035
Energieverbrauchskennwert
114 kWh/(m²*a)
Energieeffizienzklasse
D
Endenergiebedarf
114,08 kWh/(m²*a)
Energieverbrauch fĂĽr Warmwasser enthalten
Ja

Ausstattung

Ausstattung und Besonderheiten:


Baujahr: 1972, massiv gebaut


Sanierung: Komplett saniert (2010) mit Fassadendämmung, neuen Fenstern und Solarheizung


Wohneinheiten: 4 vermietete Wohneinheiten


Wohnfläche: Insgesamt 322 m²


Kellerfläche: Ca. 100 m²


Grundstück: 1.369 m²


Heizung: SolarunterstĂĽtzte Heizung (2010)


Mögliche Mieteinnahmen nach Anpassung: 2.700 - 2.900 EUR monatlich


Kein Renovierungsstau: Das Gebäude befindet sich in einem sehr gepflegten Zustand, ohne Investitionsbedarf


Energieeffizienz: Durch die Solaranlage und die Fassadendämmung sehr niedrige Betriebskosten


Lagebeschreibung

Selent ist eine idyllische Gemeinde in Schleswig-Holstein, gelegen im Kreis Plön. Die Ortschaft zeichnet sich durch ihre naturnahe Lage zwischen Kiel und der Holsteinischen Schweiz aus. Besonders reizvoll ist die Nähe zum Selenter See, dem zweitgrößten See Schleswig-Holsteins, der zahlreiche Freizeitmöglichkeiten wie Wassersport, Wandern und Radfahren bietet.


Durch die gute Anbindung an die B202 sind sowohl die Landeshauptstadt Kiel als auch Plön in kurzer Zeit erreichbar. In Selent selbst gibt es Einkaufsmöglichkeiten für den täglichen Bedarf, eine Grundschule, Kindergärten sowie eine gute medizinische Versorgung. Die ruhige, ländliche Atmosphäre und die gleichzeitige Nähe zu größeren Städten machen Selent zu einem attraktiven Wohnort für Familien und Naturliebhaber.


Sonstige Angaben

Das angebotene Mehrfamilienhaus stellt eine ausgezeichnete Möglichkeit für Kapitalanleger dar, die auf eine nachhaltige und wertstabile Investition setzen möchten. Mit den bereits laufenden Mietverhältnissen und der guten Erreichbarkeit von Infrastruktur ist das Objekt sowohl für langfristige Vermietung als auch als solide Einkommensquelle bestens geeignet.


FĂĽr weiterfĂĽhrende Informationen oder zur Vereinbarung eines Besichtigungstermins stehen wir Ihnen gerne zur VerfĂĽgung.
Baufinanzierung? Wir finden das passende Angebot fĂĽr Sie!
Sie benötigen eine Baufinanzierung für den Kauf Ihrer Immobilie? Als unabhängiger Baufinanzierer unterstützen wir Sie gerne – kompetent, persönlich und kostenlos.
Wir vergleichen für Sie die Konditionen von über 300 deutschen Kreditinstituten und ermitteln das für Sie passende Finanzierungsangebot – individuell auf Ihre Bedürfnisse zugeschnitten.


Unsere Garantie: Innerhalb von 24 Stunden erhalten Sie ein persönliches, unverbindliches Finanzierungsangebot. Schnell, transparent und zuverlässig.


Wohnung finden so einfach wie möglich - das ist unsere Mission!

Kostenlose Basic Features

0 € monatlich


  • Individuelles Such-Profil anlegen
  • Suchaufträge speichern
  • One-Klick Kontaktaufnahme

alles anzeigen

Jetzt kostenlos anmelden

Premium Features

19,99 € monatlich


  • Alle kostenlosen Features
  • Smart-Alarm per Whatsapp
  • Deine Chancen checken
  • Wohngegend analysieren

alles anzeigen

Jetzt Premium freischalten

Gewerblicher Anbieter

Duffner & Team
Moorkamp 2
24253 Probsteierhagen

WohnglĂĽck-ID:
Objekt-Nr.:
WGL-1208530
FD2101