Wohn-Grundstück in Bad Rothenfelde

Baugrundstück für 1.040 m² Wohnfläche in Bad Rothenfelde zu erweben!

Anfragen bisher

Premium

Meine Chancen

Premium

Fairer Preis

Premium

600.000 €

Kaufpreis

49214 Bad Rothenfelde

Gewerblicher Anbieter

VVB Immobilien GmbH
An der Netter Heide 1
49090 Osnabrück

Details

Grundstücksfläche
1.540 m²
Typ des Grundstücks
Wohn-Grundstück

Kosten

Kaufpreis
600.000 €
Käuferprovision
2,38 %
Die Provision ist verdient und fällig mit notarieller Beurkundung.
Was kostet dein Umzug?

Objektbeschreibung

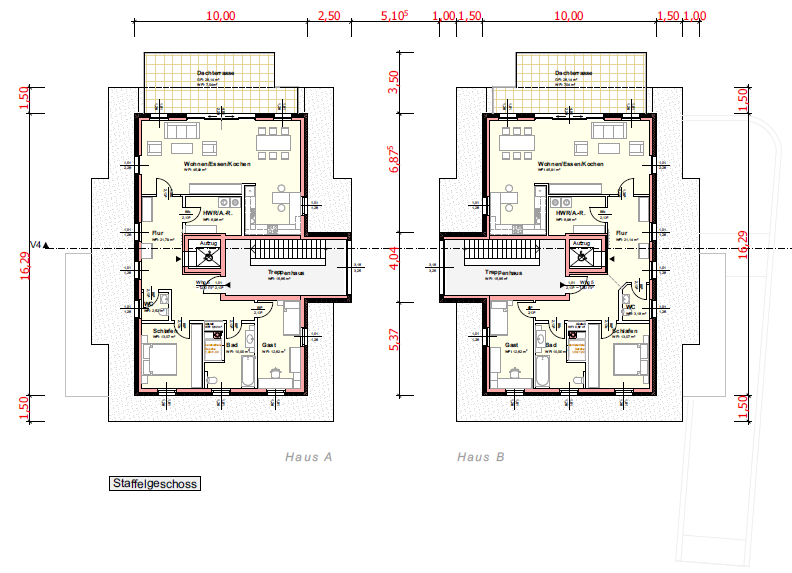
Für das angebotene Grundstück in zweiter Reihe mit einer Größe von ca. 1.540 m² liegt ein rechtskräftiger vorhabenbezogener Bebauungsplan vor. Geplant sind zwei Mehrfamilienhäuser mit einer Gesamtwohnfläche von ca. 1.040 m², verteilt auf insgesamt 10 Wohneinheiten.


Die Aufteilung sieht acht Wohnungen mit jeweils ca. 100 m² sowie zwei Wohnungen mit jeweils ca. 120 m² vor. Das durchdachte Wohnkonzept spricht sowohl Eigennutzer als auch Kapitalanleger an und ermöglicht attraktive, großzügige Grundrisse.


Für die Bewohner stehen insgesamt 15 Stellplätze zur Verfügung. Geplant sind 10 Stellplätze in der Tiefgarage und zusätzliche 5, ggf. 6 Außenstellplätze unmittelbar vor dem Haus. Damit ist eine komfortable Parksituation
gewährleistet, eine Stellplatzpflicht gibt es nicht.
Ebenfalls in der Tiefgarage sind neben Stellplätzen auch einzelne Abstellräume für die Wohnungen vorgesehen, sowie Fläche für Technik und Fahrradeistellplätze.


Die Bebauung ist jeweils mit zwei Vollgeschossen sowie einem Staffelgeschoss vorgesehen. Durch die Staffelgeschosse entsteht eine moderne, architektonisch ansprechende Optik mit attraktiven Dachterrassenlösungen.


Änderungen am aktuellen Planungskonzept können nach Absprache vorgenommen werden. Somit besteht die Möglichkeit, individuelle Anpassungen hinsichtlich Wohnungsanzahl und Wohnungsgrößen, Grundrissgestaltung oder Ausstattung im Rahmen der baurechtlichen Vorgaben zu berücksichtigen.


Das Grundstück bietet optimale Voraussetzungen für eine hochwertige Wohnbebauung in gefragter Lage von Bad Rothenfelde.


Bausubstanz & Energieausweis

Heizungsart
Sonstige

Ausstattung


  • 2 Vollgeschosse + 1 Staffelgeschoss je Gebäude + Vollunterkellert

  • Insgesamt 10 Wohneinheiten mit großzügigen Wohnflächen

  • 5 bzw. 6 Außenstellplätze

  • 10 Tiefgaragenstellplätze

  • Moderne, funktionale Grundrissgestaltung

  • Attraktive Terrassen, Balkone und Dachterrassen

  • Helle, lichtdurchflutete Wohnräume


Der Durchführungsvertrag sieht eine Realisierungspflicht bis 2029 vor.
Die Gemeinde zeigt sich insgesamt verhandlungsbereit, auch mehrere kleinere Wohnungen zu genehmigen.
Das Grundstück fungiert aktuell als Parkplatz und ist gepflastert bzw. mit Garagen überbaut, welche vom Verkäufer entsorgt werden, damit das Grundstück freigestellt ist.


Lagebeschreibung

Das Grundstück befindet sich in gefragter Lage von Bad Rothenfelde, einem beliebten Kur- und Wohnort mit hoher Lebensqualität. Die Kombination aus naturnahem Umfeld, guter Infrastruktur und attraktiver Wohnraumnachfrage macht den Standort besonders interessant für Kapitalanleger und Bauträger.


Einkaufsmöglichkeiten, medizinische Versorgung, Schulen sowie Freizeit- und Naherholungsangebote befinden sich in komfortabler Entfernung. Die gute Anbindung an das regionale Verkehrsnetz sorgt für zusätzliche Standortqualität.


Sonstige Angaben

Das vorliegende Verkaufsangebot ist freibleibend und unverbindlich. Die Angaben zum Objekt stammen vom Verkäufer und dienen einer ersten Information. Für die Richtigkeit und Vollständigkeit wird keine Haftung übernommen. Gerne unterbreiten wir ein unverbindliches Finanzierungsangebot!


Wohnung finden so einfach wie möglich - das ist unsere Mission!

Kostenlose Basic Features

0 € monatlich


  • Individuelles Such-Profil anlegen
  • Suchaufträge speichern
  • One-Klick Kontaktaufnahme

alles anzeigen

Jetzt kostenlos anmelden

Premium Features

19,99 € monatlich


  • Alle kostenlosen Features
  • Smart-Alarm per Whatsapp
  • Deine Chancen checken
  • Wohngegend analysieren

alles anzeigen

Jetzt Premium freischalten

Gewerblicher Anbieter

VVB Immobilien GmbH
An der Netter Heide 1
49090 Osnabrück

Wohnglück-ID:
Objekt-Nr.:
WGL-1186135
00927