Reihenhaus in Raunheim

Balkon/­Terrasse
Garten/­-mitbenutzung
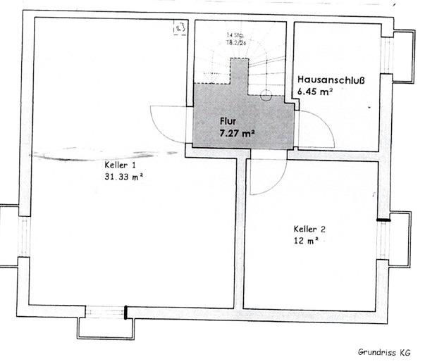
Keller

Modernes Reiheneckhaus mit 6 Zimmer ohne Käuferprovision

Anfragen bisher

Premium

Meine Chancen

Premium

Fairer Preis

Premium

570.000 €

Kaufpreis

135 m²

6 Zi.

Grundriss

65479 Raunheim

Gewerblicher Anbieter

EmlakMerkezi ImmoZentrum
Konrad-Duden-Weg 1
60437 Frankfurt

Details

Grundstücksfläche
203 m²
Zimmerzahl
6
Haustyp
Reihenhaus
Bezugsfrei ab
nach Vereinbarung
Baujahr
2004

Kosten

Kaufpreis
570.000 €
Was kostet dein Umzug?

Objektbeschreibung

ECKDATEN
Stadt: Raunheim
Kaufpreis: 570.000 Euro
Käuferprovision: ohne
Baujahr: 2004
Zimmer: 6
Wohnfläche: ca. 135 m²
Nutzfläche: ca. 51 m²
Grundstück: ca. 203 m²
Objektart: Einfamilienhaus
Objekttyp: Reiheneckhaus
Etagenanzahl: 2
EBK: vorhanden
Gäste-WC vorhanden
Böden: Fliese
Keller: 2 Zimmer, WC
Zentraler Wasserfilter: vorhanden
Fußbodenheizung: in EG
Rollläden: vorhanden
Schallschutztür: vorhanden
Einbruchsicherung mit Alarm: vorhanden
Terrasse: überdacht
Regenwasserzisterne: vorhanden
Wasserbrunnen: vorhanden
Sat-Anlage: Deutsche- u. türkische-Kanäle
Stellplätze: 2
Energieausweistyp: Verbrauchsausweis
Endenergiebedarf: 105,6 kWh/(m²*a)
Wesentliche Energieträger: Erdgas E
Energieeffizienz-klasse: D

OBJEKTBESCHREIBUNG 
Erleben Sie die Immobilie vorab bequem von zu Hause mit unserem 360°-Rundgang. https://immozentrumemlak.de/360raunheimreihenhaus/


Modernes Reiheneckhaus in Raunheim – Viel Platz für die ganze Familie!
Dieses gepflegte Reiheneckhaus bietet ein großzügiges Wohnkonzept auf mehreren Ebenen. Dank des ausgebauten Dach- und Kellergeschosses gibt es viel Raum für individuelle Nutzungsmöglichkeiten.


Der helle Wohn- und Essbereich im Erdgeschoss wird durch eine moderne Einbauküche ergänzt. Eine Fußbodenheizung sorgt hier für besonderen Komfort. Vom Wohnzimmer führt der direkte Zugang zur überdachten Terrasse und zum Garten. Ein Gäste-WC ist ebenfalls vorhanden.


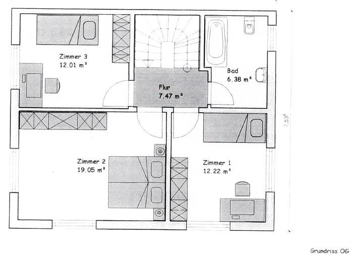
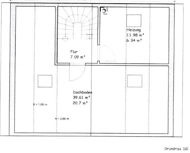
Im Obergeschoss befinden sich das Elternschlafzimmer sowie zwei weitere Zimmer, die flexibel als Kinderzimmer oder Büro genutzt werden können. Ein gut ausgestattetes Badezimmer rundet diese Etage ab. Das ausgebaute Dachgeschoss bietet zusätzlichen Wohnraum, ideal als weiteres Schlafzimmer oder Arbeitszimmer.


Das voll ausgebaute Kellergeschoss umfasst zwei weitere Räume und ein zusätzliches WC. Damit eignet es sich perfekt als Gäste-, Hobby- oder Arbeitsbereich.


Das Haus überzeugt durch eine hochwertige Ausstattung mit einbruchsicheren Rollläden, Alarmanlage, Schallschutztür und zentralem Wasserfilter. Eine Regenwasserzisterne und ein eigener Wasserbrunnen ermöglichen eine nachhaltige Gartenbewässerung. Zwei Stellplätze stehen direkt am Haus zur Verfügung.


LAGE

Raunheim liegt ideal im Rhein-Main-Gebiet mit schneller Anbindung an Frankfurt, Wiesbaden und Mainz. Autobahnen, ÖPNV und der Flughafen sind in wenigen Minuten erreichbar. Gleichzeitig bieten der Main, Grünflächen und ein vielseitiges Freizeitangebot hohe Lebensqualität. Eine hervorragende Infrastruktur mit Einkaufsmöglichkeiten, Schulen und Kitas macht Raunheim zum perfekten Wohnort.

SONSTIGES

Der Verkauf ist für Käufer provisionsfrei!


HAFTUNG:
Wir weisen darauf hin, dass die von uns weitergegebenen Objektinformationen, Unterlagen, Pläne etc. vom Verkäufer bzw. Vermieter stammen. Eine Haftung für die Richtigkeit oder Vollständigkeit der Angaben übernehmen wir daher nicht. Es obliegt daher unseren Kunden, die darin enthaltenen Objektinformationen und Angaben auf ihre Richtigkeit hin zu überprüfen. Alle Immobilienangebote sind freibleibend und vorbehaltlich Irrtümer, Zwischenverkauf- und Vermietung oder sonstiger Zwischenverwertung.


AKTUELLE ANGEBOTE FINDEN SIE AUF UNSEREN SEITEN, SCHAUEN SIE EINFACH NACH!


Wer einen angemessenen Verkaufspreis erzielen und viel Zeit und Nerven sparen möchte, der beauftragt einen vertrauenswürdigen und ehrlichen Makler, wie uns. Wir übernehmen die komplette Vermarktung und sorgen dafür, dass der Verkauf schnellstmöglich und angenehm abgeschlossen wird.


Tel: 01573 8464454
Festnetz: 069 76062351
E-Mail: info@immozentrumemlak.de
Facebook: @immozentrumemlak
Instagram:@immozentrumemlak


Bausubstanz & Energieausweis

A+

A

B

C

D

E

F

G

H

Baujahr
2004
Wesentlicher Energieträger
GAS
Heizungsart
Etagenheizung
Energieausweis
liegt vor
Energieausweistyp
Verbrauchsausweis
Ausstellungsdatum
15.02.2024
Gültig bis
14.02.2034
Energieverbrauchskennwert
105,6 kWh/(m²*a)
Energieeffizienzklasse
D

Wohnung finden so einfach wie möglich - das ist unsere Mission!

Kostenlose Basic Features

0 € monatlich


  • Individuelles Such-Profil anlegen
  • Suchaufträge speichern
  • One-Klick Kontaktaufnahme

alles anzeigen

Jetzt kostenlos anmelden

Premium Features

19,99 € monatlich


  • Alle kostenlosen Features
  • Smart-Alarm per Whatsapp
  • Deine Chancen checken
  • Wohngegend analysieren

alles anzeigen

Jetzt Premium freischalten

Gewerblicher Anbieter

EmlakMerkezi ImmoZentrum
Konrad-Duden-Weg 1
60437 Frankfurt

Wohnglück-ID:
Objekt-Nr.:
WGL-1161486