Wohn-Grundstück in Ditzingen

!!! Wohnbau-Grundstück im Neubaugebiet " Ob dem Korntaler Weg" !!!

Anfragen bisher

Premium

Meine Chancen

Premium

Fairer Preis

Premium

609.000 €

Kaufpreis

71254 Ditzingen

Gewerblicher Anbieter

Garant Immobilien AG
Monreposstraße 49
71634 Ludwigsburg

Details

Grundstücksfläche
420 m²
Typ des Grundstücks
Wohn-Grundstück
Bezugsfrei ab
sofort

Kosten

Kaufpreis
609.000 €
Käuferprovision
4,76 % (inkl. MwSt.)
Was kostet dein Umzug?

Objektbeschreibung

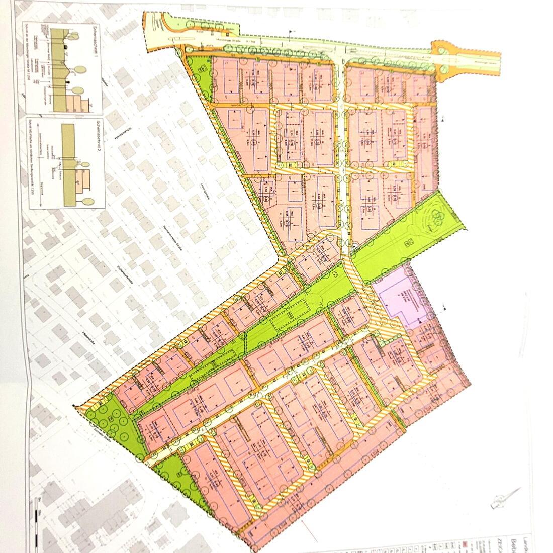
Die Erschließung im Neubaugebiet "Ob dem Korntaler Weg" ist fast abgeschlossen und mit dem Neubau kann sofort begonnen werden. Direkt in sonniger Feldrandlage bieten wir Ihnen dieses schöne Grundstück an. Es hat eine Größe von ca. 420 m² und hat einen fast quadratischen Zuschnitt. Es kann mit einem zweigeschossigen Wohngebäude bebaut werden. Die GRZ beträgt 035 und die GFZ 070. Als Dachform ist ein begrüntes Pult oder Flachdach mit 8° Dachneigung vorgesehen. Weitere Informationen wie den Bebauungsplan und den Texteil dazu können Sie gerne bei uns anforden.



Weitere Angebote unter www.GARANT-IMMO.de


Bausubstanz & Energieausweis

Heizungsart
Sonstige

Lagebeschreibung


  • Direkt in sonniger Feldrandlage gelegen.

  • Kindergarten, Schulen und Einkaufsmöglichkeiten
    am Ort vorhanden.

  • Gute Anbindung an den ÖPNV duch S-Bahn.

  • Kurzer Weg Zur Autobahn A81 und B10 bzw. B295


Sonstige Angaben


  • sofort bebaubar

  • Flurstück Nr. 6694


Wohnung finden so einfach wie möglich - das ist unsere Mission!

Kostenlose Basic Features

0 € monatlich


  • Individuelles Such-Profil anlegen
  • Suchaufträge speichern
  • One-Klick Kontaktaufnahme

alles anzeigen

Jetzt kostenlos anmelden

Premium Features

19,99 € monatlich


  • Alle kostenlosen Features
  • Smart-Alarm per Whatsapp
  • Deine Chancen checken
  • Wohngegend analysieren

alles anzeigen

Jetzt Premium freischalten

Gewerblicher Anbieter

Garant Immobilien AG
Monreposstraße 49
71634 Ludwigsburg

Wohnglück-ID:
Objekt-Nr.:
WGL-1145265
196.630