Dachgeschosswohnung in Bad Nauheim

Aufzug
Balkon/­Terrasse
Gäste WC
Keller
Garage/­Stellplatz

Ruhig in zweiter Reihe: Exklusive 3-Zimmer-Penthousewohnung in Toplage von Bad Nauheim

Anfragen bisher

Premium

Meine Chancen

Premium

Fairer Preis

Premium

895.000 â‚¬

Kaufpreis

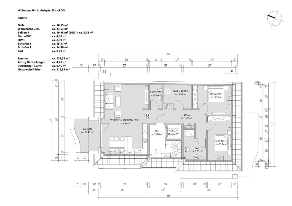
116,51 m²

3 Zi.

4. OG

Grundriss

61231 Bad Nauheim

Gewerblicher Anbieter

IMAXX - Gesellschaft fĂĽr Immobilien-Marketing mbH
AlicestraĂźe 2
61231 Bad Nauheim

Details

Zimmerzahl
3
Wohnungstyp
Dachgeschosswohnung
Etage, Geschoss
4
Bezugsfrei ab
Ende 2027
Anzahl Schlafzimmer
2
Anzahl Badezimmer
1
Anzahl Garage/ Stellplatz
1
Objektzustand
Erstbezug
Baujahr
2027

Kosten

Kaufpreis
895.000 €
Was kostet dein Umzug?

Stellplätze

Stellplatztyp
Duplex
Anzahl
1
Kaufpreis
29.500 €

Objektbeschreibung

In einer der exklusivsten und renommiertesten Wohnlagen Bad Nauheims, unmittelbar gegenüber dem Sprudelhof, direkt angrenzend an den historischen Kurpark sowie fußläufiger Entfernung zur Fußgängerzone, entsteht mit „Wohnen am Sprudelhof II“ ein außergewöhnliches Wohnensemble für höchste Ansprüche. Die besondere Mikrolage zählt zu den repräsentativsten Adressen der Stadt und verbindet architektonisch geprägtes Umfeld, innerstädtischen Komfort und naturnahe Erholung auf seltene Weise.


Das Projekt umfasst drei architektonisch aufeinander abgestimmte Gebäude, die gemeinsam ein hochwertiges und stimmiges Wohnensemble mit insgesamt 30 Wohneinheiten bilden. Die beiden vorderen Gebäude werden neu errichtet und beherbergen jeweils neun Wohnungen im Vorderhaus sowie sieben Wohnungen im mittleren Gebäude. Das ehemalige Hotel „Brunnenhof“ wird im rückwärtigen Bereich komplett revitalisiert und ergänzt das Ensemble im neuen Look um weitere 16 Wohneinheiten.


Das Vorderhaus (Ludwigstraße 13) setzt dabei einen besonderen städtebaulichen Akzent. In enger Abstimmung mit Stadtplanung und Denkmalamt erhält die Fassade bis zum vierten Obergeschoss eine hochwertige Verblendung mit Klinker-Riemen, die dem Gebäude eine repräsentative, langlebige und dem Standort angemessene Präsenz verleiht.


Das mittlere Gebäude (Ludwigstraße 13a) steht dem Vorderhaus in seiner Wertigkeit in nichts nach. Mit einer modernen, eleganten Gestaltung, ausgesuchten Materialien und ausgewogenen Proportionen fügt es sich harmonisch in das Ensemble ein und überzeugt durch seine klare, zeitgemäße Wohnqualität.


Der ehemalige „Brunnenhof“ (Ludwigstraße 13b) ergänzt das Ensemble als eigenständiger Gebäudeteil mit besonderem Charakter und erweitert das Projekt um zusätzliche, attraktive Wohnformen innerhalb des Gesamtkonzepts.


Die Wohnungen überzeugen mit durchdachten Grundrissen und einem stimmigen Raumkonzept mit lichtdurchfluteten Wohn-, Ess- und Kochbereichen, die ein offenes und zugleich hochwertiges Wohngefühl vermitteln. Ausgewählte Materialien, edle Parkettböden und stilvolle Tageslichtbäder unterstreichen den gehobenen Ausstattungsanspruch und schaffen ein elegantes, zeitloses Ambiente. Großzügige Fensterflächen mit moderner Verschattung lassen viel Tageslicht in die Räume und verbinden Innen- und Außenraum auf sehr angenehme Weise.


Architektonisch anspruchsvoll gestaltete Balkone, Terrassen und – teilweise – private Gartenanteile erweitern den Wohnraum ins Freie. In den oberen Geschossen eröffnen sich weitläufige Ausblicke über die Dächer der Stadt, unter anderem auch in Richtung Johannisberg. Einzelne, besonders exklusive Wohnungen erstrecken sich über eine gesamte Etage und bieten ein hohes Maß an Privatsphäre, Großzügigkeit und Wohnkomfort.


Ein zukunftsorientiertes Energiekonzept, moderne Haustechnik und eine nachhaltige Bauweise sind integraler Bestandteil des Projekts. Sie verbinden zeitgemäßen Wohnkomfort mit langfristiger Effizienz und Werthaltigkeit. Aufzüge, private Kellerräume sowie komfortable Stellplatzlösungen unterstreichen den hohen Gesamtanspruch.


Auch für Kapitalanleger bietet das Projekt überzeugende Rahmenbedingungen. Die neu errichteten Wohneinheiten ermöglichen attraktive Steuervorteile durch die degressive Abschreibung (AfA) in Höhe von 5 % pro Jahr. Die exklusive Lage in Verbindung mit hochwertigen Wohnkonzepten bietet zugleich gute Voraussetzungen für eine nachhaltige Vermietbarkeit und einen langfristigen Vermögensaufbau. Ergänzend bestehen Fördermöglichkeiten, insbesondere in Form zinsvergünstigter Darlehen im Rahmen der Bundesförderung für effiziente Gebäude (BEG), beispielsweise über das KfW-Programm „Klimafreundlicher Neubau – Wohngebäude“ (Kredit Nr. 297/298).


Realisiert wird „Wohnen am Sprudelhof II“ von einem renommierten Bauträger mit nahezu 30 Jahren Erfahrung und zahlreichen erfolgreich umgesetzten Projekten – vor allem in der Bad Nauheimer Innenstadt. Referenzen wie das benachbarte Projekt in der Ludwigstraße 11 sowie weitere besondere Projekte stehen für architektonische Qualität, Verlässlichkeit und ein feines Gespür für anspruchsvolle Lagen.


Hinweis: Die genannten Förderprogramme stehen unter dem Vorbehalt der Verfügbarkeit von Bundesmitteln. Ein Rechtsanspruch auf Förderung besteht nicht.


Bausubstanz & Energieausweis

A+

A

B

C

D

E

F

G

H

Objektzustand
Erstbezug
Wesentlicher Energieträger
Strom
Heizungsart
Elektroheizung
Befeuerung
Elektroheizung
Energieausweis
liegt vor
Energieausweistyp
Bedarfsausweis
Ausstellungsdatum
05.01.2026
GĂĽltig bis
05.01.2036
Energieeffizienzklasse
A_PLUS
Endenergiebedarf
14 kWh/(m²*a)

Ausstattung


  • GroĂźzĂĽgige, lichtdurchflutete Wohn-, Ess- und Kochbereiche

  • Wertige Parkettböden und Fliesen

  • Tageslichtbäder

  • Wand- und Deckenflächen mit Malervlies

  • FuĂźbodenheizung

  • Architektonisch anspruchsvolle Balkone und Terrassen, teilweise mit privaten Gartenanteilen

  • Exklusive Etagenwohnungen mit attraktiven Ausblicken

  • Separater Kellerraum zu jeder Wohnung

  • barrierearm

  • AufzĂĽge

  • Komfortable Stellplatzlösungen (Doppelparker und AuĂźenstellplätze)

  • Kunststoffenster mit 3-fach-Wärmeschutzverglasung

  • Elektrische Verschattung (Raffstores / Rollläden)

  • Glasfaser bis in die Wohnung

  • Strukturierte LAN-Verkabelung

  • Hohe energetische Qualität:

    • Vorderhaus (13) Effizienzhaus 40

    • Mittleres Gebäude (13a) Effizienzhaus 55

    • Brunnenhof (Kernsanierung 13b) Effizienzhaus 55



  • Nachhaltiges Energiekonzept:

    • Luft-Wasser-Wärmepumpen

    • Photovoltaikanlagen mit Batteriespeicher

    • dezentrale LĂĽftungsanlagen mit WärmerĂĽckgewinnung




Lagebeschreibung

Das Neubauprojekt „Wohnen am Sprudelhof II“ befindet sich in einer der exklusivsten und renommiertesten Wohnlagen Bad Nauheims – unmittelbar gegenüber dem Sprudelhof und direkt angrenzend an den historischen Kurpark. Diese außergewöhnliche Mikrolage zählt zu den repräsentativsten Adressen der Stadt und vereint auf besondere Weise architektonische Prägung, innerstädtischen Komfort und naturnahe Erholung.


Bad Nauheim gehört zu den attraktivsten Kur- und Gesundheitsstädten Hessens und genießt über die Region hinaus einen ausgezeichneten Ruf. Geprägt von hochwertiger Jugendstilarchitektur, weitläufigen Parkanlagen und einem gepflegten Stadtbild bietet die Stadt eine hohe Lebensqualität sowohl für Bestager als auch für Familien mit Kindern. Ergänzt wird dies durch ein vielfältiges Einzelhandels- und Gastronomieangebot sowie eine sehr gute medizinische Versorgung mit Kliniken, Facharztpraxen und Therapieeinrichtungen. Sämtliche Schulformen, Kindertagesstätten und weiterführende Bildungseinrichtungen sind vor Ort vorhanden und gut erreichbar.


Die charmante Fußgängerzone mit ihren Cafés, Boutiquen und Restaurants ist ebenso fußläufig erreichbar wie die erst kürzlich neu errichtete Bad Nauheimer Therme, kulturelle Einrichtungen sowie zahlreiche Angebote des täglichen Bedarfs. Die unmittelbare Nähe zum Kurpark mit seinen großzügigen Grünflächen, Spazierwegen und historischen Gradierwerken unterstreicht den hohen Wohn- und Aufenthaltswert dieser Lage nachhaltig.


Das Freizeitangebot ist vielseitig und abwechslungsreich. Neben dem Kurpark und ganzjährig stattfindenden kulturellen Veranstaltungen stehen unter anderem ein Eisstadion, Schwimmbäder, Sportanlagen sowie zahlreiche Rad- und Wanderwege zur Verfügung und sprechen unterschiedliche Lebensstile und Generationen an.


Auch die Verkehrsanbindung entspricht dem hohen Standortniveau: Der Bahnhof Bad Nauheim ist fußläufig erreichbar und bietet über die Main-Weser-Bahn eine direkte Anbindung an das Rhein-Main-Gebiet. Über die nahegelegene Autobahn A5 erreichen Sie Frankfurt am Main in rund 30 Minuten. Ein gut ausgebautes Stadtbusnetz ergänzt die hervorragende Erreichbarkeit im Alltag.


„Wohnen am Sprudelhof II“ steht für hochwertiges Wohnen in einer der besten Lagen Bad Nauheims – eine seltene Kombination aus historisch geprägtem Umfeld, urbaner Nähe, exzellenter Infrastruktur und hervorragender regionaler wie überregionaler Anbindung.


Wohnung finden so einfach wie möglich - das ist unsere Mission!

Kostenlose Basic Features

0 € monatlich


  • Individuelles Such-Profil anlegen
  • Suchaufträge speichern
  • One-Klick Kontaktaufnahme

alles anzeigen

Jetzt kostenlos anmelden

Premium Features

19,99 € monatlich


  • Alle kostenlosen Features
  • Smart-Alarm per Whatsapp
  • Deine Chancen checken
  • Wohngegend analysieren

alles anzeigen

Jetzt Premium freischalten

Gewerblicher Anbieter

IMAXX - Gesellschaft fĂĽr Immobilien-Marketing mbH
AlicestraĂźe 2
61231 Bad Nauheim

WohnglĂĽck-ID:
Objekt-Nr.:
WGL-1141288
48748