Mehrfamilienhaus in Gommersheim

Keller

Ehemaliger Dreiseitenhof – Mediterranes Wohnen in großzügigem Haupthaus & zwei weiteren Wohnungen

Anfragen bisher

Premium

Meine Chancen

Premium

Fairer Preis

Premium

985.000 €

Kaufpreis

155 m²

7 Zi.

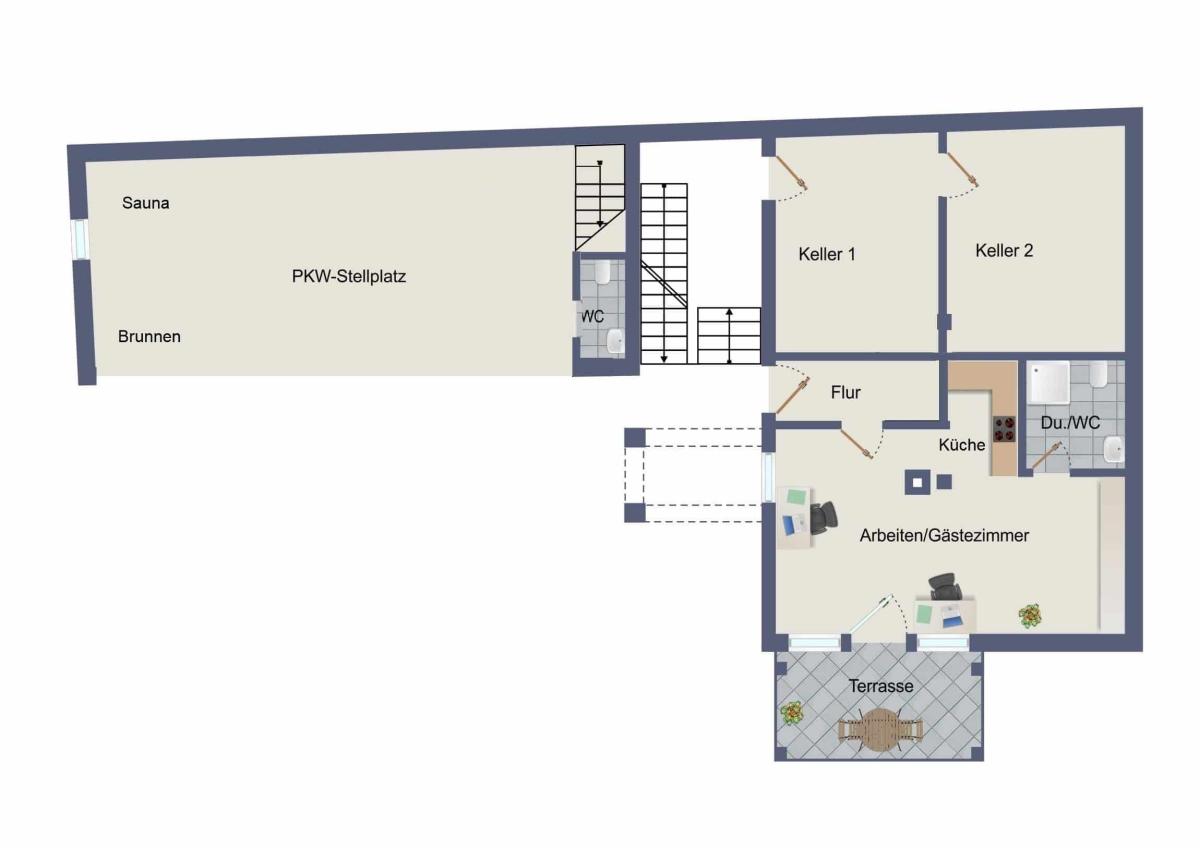
Grundriss

67377 Gommersheim

Gewerblicher Anbieter

VR Bank Südpfalz eG
Waffenstr. 15
76829 Landau in der Pfalz

Details

Grundstücksfläche
571 m²
Zimmerzahl
7
Haustyp
Mehrfamilienhaus
Bezugsfrei ab
01.07.2026
Anzahl Schlafzimmer
4
Anzahl Badezimmer
3
Objektzustand
Modernisiert
Letzte Modernisierung/ Sanierung
2025
Baujahr
2006

Kosten

Kaufpreis
985.000 €
Käuferprovision
3,57 %
Was kostet dein Umzug?

Objektbeschreibung

Herzlich Willkommen in diesem mediterran gestalteten Dreiseithof, der aufwändig zu einem wunderschönen Einfamilienhaus mit zwei weiteren Wohneinheiten im Hinterhaus ausgebaut wurde. Mit einer Gesamtwohn-/gewerbefläche von ca. 260 m² und einem Grundstück von 571 m² bietet es genügend Platz für die ganze Familie. Sie können hier einziehen und sich wohlfühlen. Das 2006 erbaute und 2025 modernisierte Haupthaus mit ca. 155 m² verfügt im EG über einen großen Wohn-Essbereich mit Küche, ein Gäste-WC und diverse Nebenräume. Im Wohnbereich sorgt der wassergeführte Kachelofen im Winter für gemütliche Abendstunden und auf der überdachten Terrasse, dem Balkon oder im abgeschlossenen Innenhof können Sie Ihre Freizeit im eigenen Zuhause voll genießen. Im OG befinden sich zwei Schlafzimmer mit einer Ankleide, ein Büro mit Nebenraum und ein großzügiges Bad. Das Hinterhaus wurde 1999 fertiggestellt und bietet im Erdgeschoss eine kleine Einliegerwohnung bzw. ein Büro. Das Obergeschoss ist auf ca. 65 m² zu einer Wohneinheit ausgebaut. Im Nebengebäude befindet sich im Dachboden ein kleines Fitnessstudio.


Bausubstanz & Energieausweis

A+

A

33,9 kWh/(m²*a)

B

C

D

E

F

G

H

Baujahr
2006
Objektzustand
Modernisiert
Letzte Modernisierung
2025
Wesentlicher Energieträger
Elektroenergie
Heizungsart
Elektroheizung
Befeuerung
Elektroheizung
Energieausweis
liegt vor
Energieausweistyp
Bedarfsausweis
Ausstellungsdatum
19.12.2025
Gültig bis
19.12.2035
Energieeffizienzklasse
A
Endenergiebedarf
33,9 kWh/(m²*a)

Ausstattung

Die Immobilie ist ab dem 1. Juli 2026 bezugsfertig und wartet darauf, von Ihrer Familie belebt zu werden. Sie bietet eine ideale Kombination aus modernem Komfort, großzügigen Räumen und einer attraktiven und ruhigen Lage in Gommersheim. Das Ensemble wurde neu aufgebaut und lediglich der Keller und die auf der Grenze bestehenden Sandsteinmauern wurden aus dem Ursprung erhalten, die Anordnung des Hofes mit dem Neuaufbau aber beibehalten. Das Anwesen ist mit einer neuwertigen Wärmepumpe und Photovoltaikanlage ausgestattet und die Vorbereitungen für eine Wallbox sind gemacht. Das Haupthaus verfügt über eine zentrale Lüftungsanlage mit Wärmerückgewinnung. Alle Dächer sind mit Biberschwanzziegeln gedeckt. Der Garten ist liebevoll mediterran angelegt, mit überdachter Terrasse, mehreren Sitzecken und einem Backhaus. Im gepflasterten Innenhof und unter dem Nebengebäude bietet sich Platz für Ihre PKW`s. Als weitere Highlights gibt es in diesem Bereich einen Sandsteinbrunnen, eine Regenwasserzisterne, sowie eine Sauna, in der Sie die Seele baumeln lassen können.


Lagebeschreibung

Gommersheim bietet eine idyllische Umgebung für Familien, die nach einem ländlichen Zuhause suchen. Unsere Immobilie, ein charmantes Einfamilienhaus mit ausgebautem Hinterhaus, liegt ruhig und doch zentral, eine Bushaltestelle befindet sich in unmittelbarer Nähe und die Autobahnauffahrt ist in weniger als 20 Minuten erreichbar. Für den täglichen Bedarf gibt es eine Bäckerei und einen Supermarkt in der Nähe, die mit dem Fahrrad leicht zu erreichen sind.
Der Kindergarten befindet sich im Ort. Die Grundschule im Nachbarort ist mit dem Schulbus erreichbar. In der nahen Umgebung befinden sich verschiedene weiterführende Schulen. Für die Gesundheit stehen eine Arztpraxis in der Nähe, sowie eine Apotheke in näherer Umgebung zur Verfügung. Mit dem Fahrrad erreichen Sie ein Café und ein Restaurant und zur Freizeitgestaltung stehen zwei Sportzentren, ein Aktivpark, ein Freizeitpark und ein Museum in der Umgebung zur Verfügung.
Unser Gebäude-Ensemble in Gommersheim bietet die perfekte Kombination aus ländlicher Idylle, guter Infrastruktur und zahlreichen Freizeitmöglichkeiten, ideal für Familien, die nach einem harmonischen Zuhause suchen.


Wohnung finden so einfach wie möglich - das ist unsere Mission!

Kostenlose Basic Features

0 € monatlich


  • Individuelles Such-Profil anlegen
  • Suchaufträge speichern
  • One-Klick Kontaktaufnahme

alles anzeigen

Jetzt kostenlos anmelden

Premium Features

19,99 € monatlich


  • Alle kostenlosen Features
  • Smart-Alarm per Whatsapp
  • Deine Chancen checken
  • Wohngegend analysieren

alles anzeigen

Jetzt Premium freischalten

Gewerblicher Anbieter

VR Bank Südpfalz eG
Waffenstr. 15
76829 Landau in der Pfalz

Wohnglück-ID:
Objekt-Nr.:
WGL-1107665
25031