Einfamilienhaus freistehend in Spahnharrenstätte

Balkon/­Terrasse
Gäste WC
Einbauküche
Garage/­Stellplatz

Modernes Einfamilienhaus in Spahnharrenstätte

Anfragen bisher

Premium

Meine Chancen

Premium

Fairer Preis

Premium

385.000 €

Kaufpreis

144 m²

5 Zi.

Grundriss

49751 Spahnharrenstätte

Gewerblicher Anbieter

Raiffeisenbank Ems-Vechte eG
Am Markt 5
49751 Sögel

Details

Grundstücksfläche
791 m²
Zimmerzahl
5
Haustyp
Einfamilienhaus freistehend
Etagenzahl
2
Anzahl Schlafzimmer
4
Anzahl Badezimmer
1
Anzahl Garage/ Stellplatz
1
Objektzustand
Gepflegt
Letzte Modernisierung/ Sanierung
2023
Baujahr
2003

Kosten

Kaufpreis
385.000 €
Käuferprovision
2,975%
Provisionsteilung
Was kostet dein Umzug?

Stellplätze

Stellplatztyp
Freiplatz
Anzahl
2

Objektbeschreibung

Dieses gepflegte Einfamilienhaus aus dem Baujahr 2003 vereint zeitgemäßen Wohnkomfort mit einer durchdachten Raumaufteilung und moderner technischer Ausstattung. Auf einer Wohnfläche von ca. 144 m², eingebettet in ein großzügiges Grundstück von ca. 791 m², bietet die Immobilie ideale Voraussetzungen für Familien mit dem Wunsch nach einem harmonischen Zuhause.


Bereits im Erdgeschoss mit ca. 87 m² Wohnfläche überzeugt das Haus durch seine offene und zugleich funktionale Gestaltung. Der helle Wohn- und Essbereich bildet das Herzstück des Hauses und bietet einen direkten Zugang zur überdachten Terrasse – ein perfekter Ort für entspannte Stunden im Freien, unabhängig von der Wetterlage. Die moderne Küche aus dem Jahr 2024 ist bereits im Kaufpreis enthalten und fügt sich stilvoll in das Wohnkonzept ein. Ergänzt wird das Erdgeschoss durch ein flexibel nutzbares Schlaf- oder Arbeitszimmer, einen Hauswirtschaftsraum mit direktem Zugang zum Carport sowie ein Gäste-WC mit bodentiefer Dusche, das zusätzlichen Komfort bietet.


Das Dachgeschoss mit ca. 57 m² Wohnfläche beherbergt drei gut geschnittene Schlafzimmer, die vielseitig als Kinder-, Gäste- oder Arbeitszimmer genutzt werden können. Ein großzügiges Badezimmer mit ebenerdiger Dusche und Badewanne lädt zum Entspannen ein und rundet das Raumangebot auf dieser Ebene ab. Zudem befinden sich hier der Heizungsraum mit weiteren praktischen Abstellmöglichkeiten.


Die Immobilie wurde regelmäßig renoviert und technisch kontinuierlich aufgewertet. Besonders hervorzuheben sind der neue Wärmetauscher aus dem Jahr 2023 sowie die Photovoltaikanlage mit 10 kWp, die zu einer nachhaltigen und kosteneffizienten Energieversorgung beiträgt. Die Terrassenüberdachung aus dem Jahr 2025 unterstreicht den gepflegten Zustand des Hauses und erhöht den Wohnwert zusätzlich.


Dieses Einfamilienhaus präsentiert sich als solides, modernes und liebevoll gepflegtes Zuhause, das sowohl durch seine Ausstattung als auch durch sein großzügiges Grundstück überzeugt – ein Ort zum Ankommen, Wohlfühlen und langfristigen Leben.


Bausubstanz & Energieausweis

A+

A

B

C

D

E

F

G

H

Objektzustand
Gepflegt
Letzte Modernisierung
2023
Wesentlicher Energieträger
Gas
Heizungsart
Gasheizung
Befeuerung
Gasheizung
Energieausweis
liegt vor
Energieausweistyp
Verbrauchsausweis
Ausstellungsdatum
14.06.2022
Gültig bis
14.06.2032
Energieverbrauchskennwert
95 kWh/(m²*a)
Energieeffizienzklasse
C

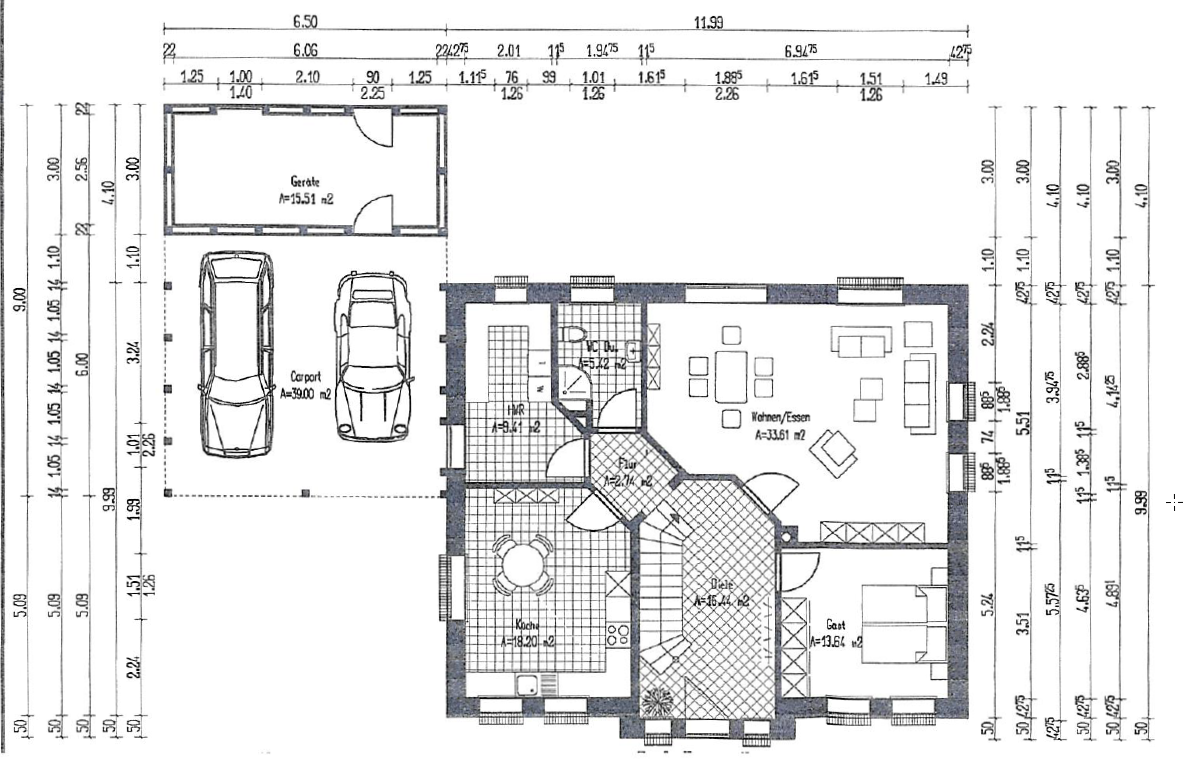
Ausstattung

Erdgeschoss:
Küche: ca. 18,20 qm
Wohnen/Essen: ca. 33,61 qm
Mehrzweckzimmer: ca. 13,64 qm
Gäste-WC: ca. 5,42 qm
HWR: ca. 9,41 qm
Flur: ca. 2,74 qm


Dachgeschoss:
Schlafen 1.: ca. 16,16 qm
Schlafen 2.: ca. 15,11 qm
Schlafen 3.: ca. 14,50 qm
Badezimmer: ca. 13,28 qm
Heizungsraum: ca. 4,55 qm


Carport: ca. 39,00 qm
Geräteraum: ca. 15,51 qm


Lagebeschreibung

Spahnharrenstätte (PLZ 49751) liegt im nördlichen Landkreis Emsland in Niedersachsen und ist von einer ruhigen, landwirtschaftlich geprägten Landschaft umgeben. Der Ort mit etwa 1.600 Einwohnern, befindet sich zwischen den Gemeinden Sögel, Werlte und Lorup und gehört zur Samtgemeinde Sögel. Über die nahegelegenen Landes- und Bundesstraßen sind die umliegenden Orte sowie größere Zentren wie Meppen gut erreichbar.


Die Infrastruktur ist auf den täglichen Bedarf ausgerichtet: Ein Dorfladen, Handwerksbetriebe, Kindergarten, Grundschule, Feuerwehr und Vereinsleben sind direkt im Ort vorhanden. Weiterführende Schulen, Ärzte, Apotheken, ein Krankenhaus und größere Einkaufsmöglichkeiten befinden sich in den Nachbarorten und sind in wenigen Fahrminuten erreichbar.


Insgesamt bietet Spahnharrenstätte eine naturnahe Wohnlage mit grundlegender Versorgung und guter Anbindung an das regionale Umfeld.


Sonstige Angaben

Weitere Informationen erhalten Sie gerne auf Anfrage.


Die in diesem Exposé enthaltenen Angaben beruhen auf Informationen des Eigentümers und dienen ausschließlich der unverbindlichen Vorabinformation. Für die Richtigkeit und Vollständigkeit wird keine Haftung übernommen. Irrtum und Zwischenverkauf vorbehalten.


Wohnung finden so einfach wie möglich - das ist unsere Mission!

Kostenlose Basic Features

0 € monatlich


  • Individuelles Such-Profil anlegen
  • Suchaufträge speichern
  • One-Klick Kontaktaufnahme

alles anzeigen

Jetzt kostenlos anmelden

Premium Features

19,99 € monatlich


  • Alle kostenlosen Features
  • Smart-Alarm per Whatsapp
  • Deine Chancen checken
  • Wohngegend analysieren

alles anzeigen

Jetzt Premium freischalten

Gewerblicher Anbieter

Raiffeisenbank Ems-Vechte eG
Am Markt 5
49751 Sögel

Wohnglück-ID:
Objekt-Nr.:
WGL-1102709
228#Ls5v1