Einfamilienhaus freistehend in Wissen

Garten/­-mitbenutzung
Keller

Geräumiges Einfamilienhaus in beliebter Wohnlage innerhalb der Stadt/Wissen

Anfragen bisher

Premium

Meine Chancen

Premium

Fairer Preis

Premium

269.000 €

Kaufpreis

155 m²

6 Zi.

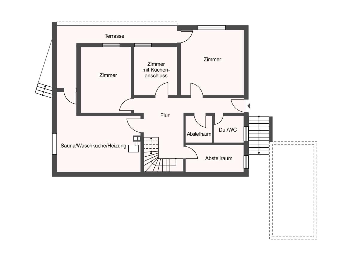
Grundriss

57537 Wissen

Gewerblicher Anbieter

Immobiliengesellschaft der Westerwald Bank mbH
Schloßplatz 6
57610 Altenkirchen (Westerwald)

Details

Grundstücksfläche
614 m²
Zimmerzahl
6
Haustyp
Einfamilienhaus freistehend
Baujahr
1976

Kosten

Kaufpreis
269.000 €
Käuferprovision
3,57 %
Was kostet dein Umzug?

Objektbeschreibung

Ein sehr geräumiges Einfamilienhaus in toller und beliebter Wohnlage der Stadt Wissen.


Das in seinem Ursprung um 1976/77 erstellte Wohnhaus mit tollem Aussichtsbalkon und Terrasse wurde durch einen seinerzeit bekannten Architekten geplant und in Massivbauweise erstellt. Die Immobilie wurde für eine große Familie konzipiert und erfreut sich einer üppigen Anzahl an Wohnräumen. Das Untergeschoss, welches stets eigengenutzt und für Schlafräume in Verwendung stand, kann bei Bedarf als separate Einliegerwohnung mit eigenem Eingang genutzt werden. Hier befinden sich, neben den genannten Schlafräumen, bereits ein Duschbad sowie entsprechende Anschlüsse für einen Küchenbereich. Auch ist ebenerdiges Wohnen auf einer Ebene im Bereich des Erdgeschosses möglich.


Zu bemerken ist insbesondere die tolle und beliebte Wohnlage mit einer gepflegten Nachbarschaft und einem schönen und großzügigen Gartengrundstück.


Die Haustechnik sowie die Innenausstattung entspricht im Wesentlichen dem Stand des Baujahres; lediglich die Heizungsanlage wurde im Jahre 2000 ausgetauscht und auch die Fassade im gleichen Zeitraum neu gestaltet.


Ein weiteres Platzangebot für zusätzlichen Stauraum bietet der vorhandene Dachraum, welcher aufgrund des Walmdaches großzügig ausfällt. Des Weiteren beinhaltet das Hausangebot eine sep. Einzelgarage sowie eine Sauna. Die derzeit im Wohnhaus befindliche Einbauküche ist ebenfalls Gegenstand des Hausangebotes.


Das Wohnhaus wird aus einem Nachlass heraus verkauft und kann nach Absprache, auch kurzfristig, übernommen werden.


Gerne können Sie mit uns einen unverbindlichen Besichtigungstermin vereinbaren.


Bausubstanz & Energieausweis

A+

A

B

C

D

E

F

G

H

Baujahr
1976
Wesentlicher Energieträger
Gas
Heizungsart
Gasheizung
Befeuerung
Gasheizung
Energieausweis
liegt vor
Energieausweistyp
Verbrauchsausweis
Ausstellungsdatum
14.10.2024
Gültig bis
13.10.2034
Energieeffizienzklasse
F
Energieverbrauch für Warmwasser enthalten
Ja

Ausstattung

Massivbauweise aus 1976/77, Außenfassade verputzt und im Jahre 1997 neu gestrichen, massive Geschossdecken, massive Innenwände, Walmdach (oberste Geschoßdecke gedämmt nach den seinerzeitigen baurechtlichen Vorschriften) mit Pfanneneindeckung und Kupferdachrinnen, Gaszentralheizung mit zentraler Warmwasserversorgung aus 2000, Aluminiumfenster isolierverglast aus Baujahr 1976/77, manuelle Kunststoffrollläden, Oberböden mit Fliesen, Parkett und Teppichbelag, Holzinnentüren, massive Innentreppe mit Marmorbelag, Elektro- und Hausinstallationen im Stand des Herstelljahres


Einzelgarage mit Strom- und Wasseranschluss sowie einer elektrischen Sektionaltoranlage


Lagebeschreibung

Die Stadt Wissen, welche zugleich Sitz der Verbandsgemeindeverwaltung ist, verfügt über eine gute Infrastruktur. Geschäfte des täglichen Bedarfs, Banken, Behörden, Schulen jeglicher Art, Kindergärten sind vor Ort zu finden und tlw. in wenigen Gehminuten zu erreichen.


Zu erwähnen ist auch, dass der Regiobahnhof mit günstiger Zuganbindung in Richtung Köln und Siegen, ebenfalls fussläufig in ca. 15 Gehminuten zu erreichen ist.


Eine überregionale Verkehrsanbindung an die Autobahnen A 45 Freudenberg (30 Minuten); A 3 Mogendorf (40 Minuten) und A 4 Reichshof/Bergneustadt (40 Minuten) über die B 62 sowie über weitere verschiedene Landesstraßen ist gegeben.


Das Wohnhaus selbst befindet sich in ruhiger, bevorzugter und stadtnaher Wohnlage der Stadt Wissen.


Wohnung finden so einfach wie möglich - das ist unsere Mission!

Kostenlose Basic Features

0 € monatlich


  • Individuelles Such-Profil anlegen
  • Suchaufträge speichern
  • One-Klick Kontaktaufnahme

alles anzeigen

Jetzt kostenlos anmelden

Premium Features

19,99 € monatlich


  • Alle kostenlosen Features
  • Smart-Alarm per Whatsapp
  • Deine Chancen checken
  • Wohngegend analysieren

alles anzeigen

Jetzt Premium freischalten

Gewerblicher Anbieter

Immobiliengesellschaft der Westerwald Bank mbH
Schloßplatz 6
57610 Altenkirchen (Westerwald)

Wohnglück-ID:
Objekt-Nr.:
WGL-1082500
2 995 3