Einfamilienhaus freistehend in Zweibrücken (Ixheim)

Balkon/­Terrasse
Garten/­-mitbenutzung
Keller
Einbauküche
Garage/­Stellplatz

Modernes Ein-/Zweifamilienhaus mit traumhaften Garten für die große Familie in Zweibrücken

Anfragen bisher

Premium

Meine Chancen

Premium

Fairer Preis

Premium

599.000 €

Kaufpreis

260 m²

8 Zi.

Grundriss

66482 Zweibrücken

Gewerblicher Anbieter

Bank 1 Saar Immobilien GmbH
Kaiserstraße 17-19
66111 Saarbrücken

Details

Grundstücksfläche
693 m²
Zimmerzahl
8
Haustyp
Einfamilienhaus freistehend
Etagenzahl
1
Anzahl Schlafzimmer
4
Anzahl Badezimmer
4
Anzahl Garage/ Stellplatz
1
Objektzustand
Gepflegt
Letzte Modernisierung/ Sanierung
2015
Baujahr
1998

Kosten

Kaufpreis
599.000 €
Käuferprovision
3,57 %
Was kostet dein Umzug?

Stellplätze

Stellplatztyp
Freiplatz
Anzahl
6

Objektbeschreibung

Dieses außergewöhnliche Einfamilienhaus vereint stilvolle Wohnkultur, hochwertige Ausstattung und durchdachte Architektur auf beeindruckende Weise. Das im Jahr 1998 erbaute Haus überzeugt mit einer Wohnfläche von ca. 260 m² auf einem großzügigen Grundstück von 693 m² – ideal für Familien mit gehobenem Anspruch an Raum, Komfort und Privatsphäre.


Das Haus erstreckt sich über 1,5 Geschosse und ist voll unterkellert. Zwei Tiefgaragenstellplätze, eine weitere Garage sowie zwei Außenstellplätze bieten ausreichend Parkmöglichkeiten. Die innenliegende Holztreppe verbindet die Etagen stilvoll miteinander. Bereits beim Betreten des Hauses wird deutlich: Hier wurde mit Liebe zum Detail gebaut.


Im Untergeschoss befinden sich funktionale Kellerräume, ein Schlafzimmer sowie ein Badezimmer mit Dusche – perfekt auch für Gäste oder als Einliegerbereich nutzbar.


Das Erdgeschoss beeindruckt durch ein harmonisches Raumkonzept mit einem großzügigen Wohn- und Essbereich, der durch einen Kachelofen und edle italienische Terrakottafliesen ein warmes, mediterranes Ambiente schafft. Von hier aus gelangt man auf die Terrasse und in den aufwendig angelegten Garten mit Teich – eine Oase der Ruhe. Die voll ausgestattete Küche mit angrenzender Vorratskammer lässt keine Wünsche offen. Zudem befinden sich im Erdgeschoss ein Schlafzimmer, ein Büro mit direktem Gartenzugang sowie ein luxuriöses Badezimmer mit Whirlpool-Badewanne und Dusche. Ein weiteres Highlight ist der lichtdurchflutete Wintergarten mit elektrisch steuerbarem Sonnendach – ideal für jede Jahreszeit.


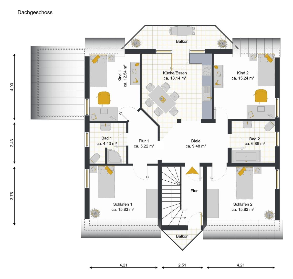
Im Obergeschoss befinden sich zwei Schlafzimmer mit offener Galerie, zwei weitere Zimmer, ein kleiner Balkon sowie zwei vollwertige Bäder – eines mit Dusche, eines mit Badewanne. Eine wunderschön großzügige zur Dachspitze hin offene Küche mit Essbereich rundet den großzügigen Raum ab. Dies verleiht dem Haus zusätzlichen Nutzungsspielraum und kann somit auch als Mehrgenerationenhaus genutzt werden.


Nutzen Sie diese Gelegenheit, eine Immobilie mit großem Potenzial nach Ihren Vorstellungen zu gestalten. Für weiterführende Informationen und eine persönliche Beratung steht Ihnen Ihr Immobilienspezialist im Saarland, Bank1Saar Immobilien GmbH jederzeit gerne zur Verfügung.


Bausubstanz & Energieausweis

A+

21 kWh/(m²*a)

A

B

C

D

E

F

G

H

Objektzustand
Gepflegt
Letzte Modernisierung
2015
Wesentlicher Energieträger
Wärmepumpe
Heizungsart
Fußbodenheizung
Befeuerung
Wärmepumpe
Energieausweis
liegt vor
Energieausweistyp
Bedarfsausweis
Ausstellungsdatum
16.10.2023
Gültig bis
01.04.2036
Energieeffizienzklasse
A+
Endenergiebedarf
21 kWh/(m²*a)

Ausstattung

Individuelle Ausstattungsmerkmale:




  • Garage/ Stellplatz




  • Massivbauweise mit Vollunterkellerung




  • Hochwertige Vollholztüren im gesamten Haus




  • Elegante Holztreppe innenliegend




  • Kachelofen und italienische Terrakottafliesen im EG




  • zwei Einbauküchen (EG & OG)




  • Wintergarten mit elektrischem Sonnendach




  • Bäder auf allen Ebenen, teils mit Whirlpool-Funktion




  • Zwei Tiefgaragenstellplätze + eine Garage + drei Außenstellplätze




  • Video-Sprechanlage




  • Satellitenanlage




  • Wärmepumpe für energieeffizientes Heizen




  • Solaranlage zur Unterstützung der Warmwasserversorgung




  • Regenwasserzisterne für alle Toiletten im Haus




  • Traumhaft angelegter Garten mit Fischteich und viel Grün




  • Gerätehäuschen und Gewächshaus




Lagebeschreibung

Die Immobilie liegt im ruhigen und gepflegten Neubaugebiet "Am Beckerswäldchen" von Zweibrücken – einer charmanten Stadt mit hoher Lebensqualität und guter Infrastruktur. Die Lage zeichnet sich durch ihre Nähe zur Natur sowie eine ausgezeichnete Verkehrsanbindung aus. Einkaufsmöglichkeiten, Schulen, Kindergärten, medizinische Versorgung sowie Freizeitangebote befinden sich in gut erreichbarer Umgebung. Die Nähe zur A8 ermöglicht zudem eine schnelle Anbindung in Richtung Saarbrücken, Kaiserslautern und Luxemburg.


Diese Lage verbindet entspannte Wohnatmosphäre mit urbaner Erreichbarkeit – ideal für Familien und Berufspendler gleichermaßen.


Sonstige Angaben

Sprechen Sie uns gerne auf eine Finanzierung bei unserer Hausbank an.
Sie bekommen sehr kurzfristig einen persönlichen Termin für eine Baufinanzierungsberatung. Dank regionaler Fachexpertise können wir schnell ein attraktives Angebot unterbreiten und Ihren Traum vom Haus kompetent realisieren!


Wohnung finden so einfach wie möglich - das ist unsere Mission!

Kostenlose Basic Features

0 € monatlich


  • Individuelles Such-Profil anlegen
  • Suchaufträge speichern
  • One-Klick Kontaktaufnahme

alles anzeigen

Jetzt kostenlos anmelden

Premium Features

19,99 € monatlich


  • Alle kostenlosen Features
  • Smart-Alarm per Whatsapp
  • Deine Chancen checken
  • Wohngegend analysieren

alles anzeigen

Jetzt Premium freischalten

Gewerblicher Anbieter

Bank 1 Saar Immobilien GmbH
Kaiserstraße 17-19
66111 Saarbrücken

Wohnglück-ID:
Objekt-Nr.:
WGL-1069172
007075#eBkRJ