Zinshaus / Renditenobjekt in Mittelhof

Garten/­-mitbenutzung
Keller

Mehrfamilienhaus mit Garagennebengebäude in reizvoller Orts-, Natur- und Waldrandlage

Anfragen bisher

Premium

Meine Chancen

Premium

Fairer Preis

Premium

295.000 €

Kaufpreis

248 m²

10 Zi.

Grundriss

57537 Mittelhof

Gewerblicher Anbieter

Immobiliengesellschaft der Westerwald Bank mbH
Schloßplatz 6
57610 Altenkirchen (Westerwald)

Details

Grundstücksfläche
870 m²
Zimmerzahl
10
Typ der Gewerbeimmobilie
Zinshaus / Renditenobjekt
Nutzfläche
46 m²
Baujahr
1966

Kosten

Kaufpreis
295.000 €
Käuferprovision
3,57 %
Was kostet dein Umzug?

Objektbeschreibung

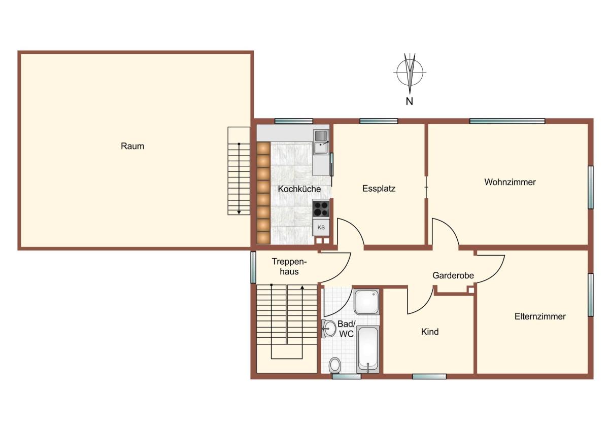
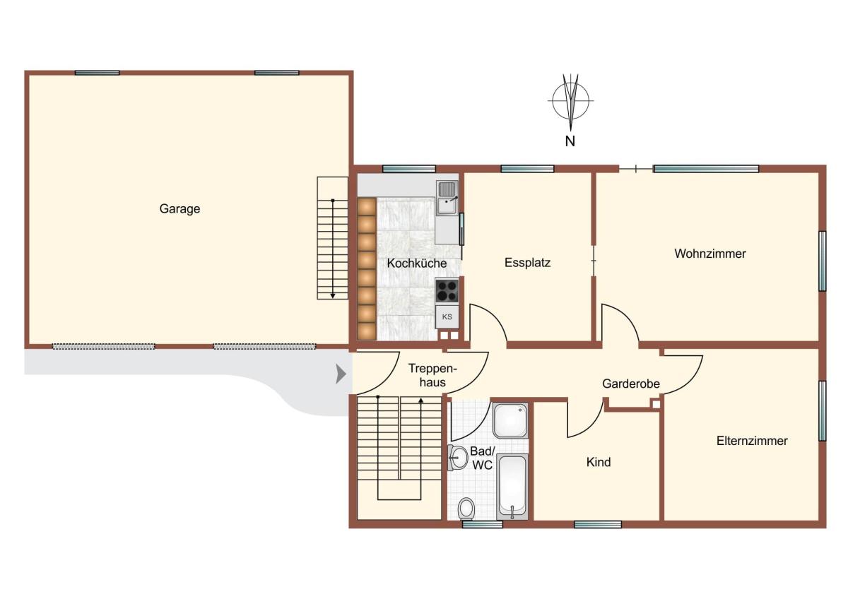
Die im Jahre 1966 erstellte Wohnimmobilie mit drei Wohneinheiten wurde in 1973/74 mit einem Garagenanbau erweitert. Zudem erfolgte der Ausbau des Dachgeschosses in einen Mansardenbereich, welcher ebenfalls zu Wohnzwecken genutzt wird. Die Wohnungen des Erd- und Obergeschosses belaufen sich auf rd. 91 m². Die Untergeschosswohnung beläuft sich auf 66 m² Wohnfläche. Die Mansarde verfügt über eine Fläche von rd. 46 m². Insgesamt befinden sich zudem 6 Garagen innerhalb des Wohnhauses sowie der erfolgten Anbauten.
Bei den seinerzeit abgeschlossenen Mietverträgen handelt es sich um Standardvereinbarungen mit unbefristeten Laufzeiten. Die jährlich erzielte Kaltmiete beläuft sich auf 18.600,00 €. Die Garagenmieterträge belaufen sich auf rd. 3.360,00 € jährlich. Im Jahre 2011 erfolgte die Installierung einer Photovoltaikanlage. Die Einspeisevergütung hierfür beträgt jährlich rd. 3.500,00 €.
Aufteilung:
Untergeschoss Wohnung rd. 66 m² Wohnfläche bestehend aus Flur, Wohnzimmer mit Terrasse, Küche, Schlafzimmer, Bad mit Dusche und WC
div. Kellerräume, Garage, Heizung
Erdgeschoss: sep. Hausflur
Wohnung rd. 91 m² Wohnfläche bestehend aus Flur, Wohn- Esszimmer mit Küche, Schlafzimmer, Bad mit Dusche und WC, Abstellraum
Obergeschoss: sep. Hausflur
Wohnung rd. 91 m² Wohnfläche bestehend aus Flur, Wohn- Esszimmer mit Küche, 2 Schlafzimmer, Duschbad mit WC
Zugang zum Speicher über dem Garagenanbau
Dachgeschoss/Speicher: Mansarde mit rd. 46 m² Nebenfläche
Zudem werden derzeit sep. Messeinrichtungen für Wasser und Heizung installiert. Der Verbrauch an Strom ist sep. ablesbar.
Zum Schutze der Privatsphäre der Mieter werden keine Innenfotos veröffentlicht.


Bausubstanz & Energieausweis

A+

A

B

C

D

E

F

G

H

265,8 kWh/(m²*a)

Baujahr
1966
Wesentlicher Energieträger
Öl
Heizungsart
Ölheizung
Befeuerung
Ölheizung
Energieausweis
liegt vor
Energieausweistyp
Bedarfsausweis
Ausstellungsdatum
16.04.2021
Gültig bis
15.04.2031
Energieeffizienzklasse
H
Endenergiebedarf
265,8 kWh/(m²*a)

Ausstattung

Individuelle Ausstattungsmerkmale:



  • Photovoltaikanlage


Massivbauweise aus 1966, Garagenanbau (massiv) aus 1973/74, Satteldächer mit Pfanneneindeckung, Ölzentralheizung aus 2024 mit zentraler Warmwasserversorgung, Kunststofffenster isolierverglast mit Kunststoffrollläden, Bodenbeläge in Fliesen, PVC sowie Teppich und mit Linoleum, Holzinnentüren, massive Innentreppe mit Marmorbelag, massive Geschossdecken


Insgesamt 6 Garagen; davon 1 mit Grube!


Glasfaseranschluß vorhanden


Lagebeschreibung

Mittelhof ist eine Ortsgemeinde im Landkreis Altenkirchen in Rheinland-Pfalz. Sie gehört der Verbandsgemeinde Wissen an und ist seit 1973 ein staatlich anerkannter Fremdenverkehrsort. Die Gemeinde liegt zwischen Betzdorf (rd. 15 km Entfernung) und Wissen (rd. 5 km Entfernung).
Mittelhof selbst liegt etwa 90 km südöstlich von Köln und etwa 30 km südwestlich von Siegen. Als Standortvorteil für die Bevölkerung kann der öffentliche Personennahverkehr in jedem Falle genannt werden. Die Ortsgemeinde ist durch die in rd. 2 km zu erreichende Bundesstraße 62 sowie durch Landes- und Kreisstraßen verkehrsmäßig an das überörtliche Verkehrsnetz angeschlossen. Der in Wissen bestehende Regiobahnhof mit Park & Ride-Anlage ist in die Bahnstrecke Au (Sieg) - Dillenburg (Sieg-Dill-Bahn) sowie teilweise in die Bahnstrecke Aachen-Köln-Siegen (Rhein-Sieg-Express) integriert.
Die Immobilien befindet sich sehr schöner Orts-, Natur- und Waldrandlage und verfügt über eine sehr schöne Aussicht auf Wiesen und Wälder.


Wohnung finden so einfach wie möglich - das ist unsere Mission!

Kostenlose Basic Features

0 € monatlich


  • Individuelles Such-Profil anlegen
  • Suchaufträge speichern
  • One-Klick Kontaktaufnahme

alles anzeigen

Jetzt kostenlos anmelden

Premium Features

19,99 € monatlich


  • Alle kostenlosen Features
  • Smart-Alarm per Whatsapp
  • Deine Chancen checken
  • Wohngegend analysieren

alles anzeigen

Jetzt Premium freischalten

Gewerblicher Anbieter

Immobiliengesellschaft der Westerwald Bank mbH
Schloßplatz 6
57610 Altenkirchen (Westerwald)

Wohnglück-ID:
Objekt-Nr.:
WGL-1060513
2 100 4