Mehrfamilienhaus in Beckingen (Reimsbach)

Balkon/­Terrasse
Garten/­-mitbenutzung
Keller

Zweifamilienhaus mit 2 Garagen in Reimsbach

Anfragen bisher

Premium

Meine Chancen

Premium

Fairer Preis

Premium

249.000 €

Kaufpreis

190 m²

7 Zi.

Grundriss

66701 Beckingen

Gewerblicher Anbieter

Bank 1 Saar Immobilien GmbH
Kaiserstraße 17-19
66111 Saarbrücken

Details

Grundstücksfläche
644 m²
Zimmerzahl
7
Haustyp
Mehrfamilienhaus
Anzahl Badezimmer
2
Objektzustand
Gepflegt
Letzte Modernisierung/ Sanierung
2021
Baujahr
1964

Kosten

Kaufpreis
249.000 €
Käuferprovision
3,57 %
Was kostet dein Umzug?

Objektbeschreibung

Dieses gepflegte Zweifamilienhaus aus dem Baujahr 1964 überzeugt durch seine großzügige Wohnfläche von ca. 190 m², eine durchdachte Raumaufteilung sowie zahlreiche Modernisierungen in den vergangenen Jahren. Das Haus befindet sich auf einem 644 m² großen Grundstück in ruhiger Lage und bietet viel Platz für Familien oder Mehrgenerationenwohnen.


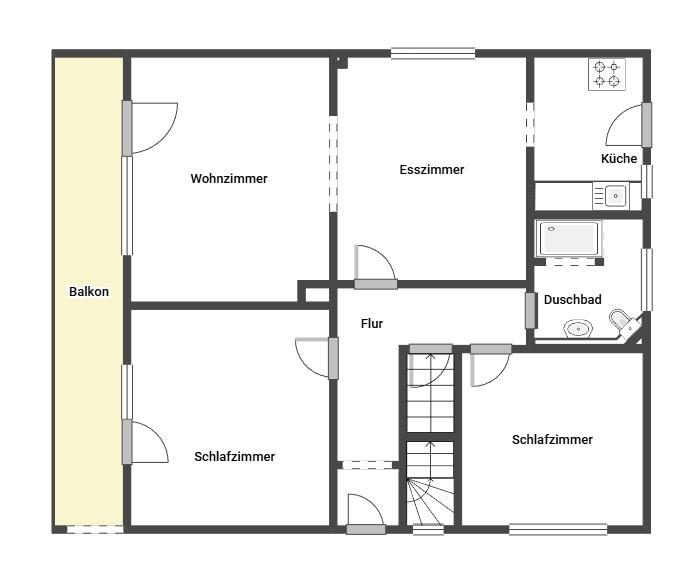
Aufgrund der Hanglage des Grundstücks erreicht man den Hauseingang über einige Treppenstufen. Nach dem Betreten der Immobilie gelangt man in einen zentralen Flur, von dem aus die Räume des Erdgeschosses erschlossen werden. Linker Hand befindet sich ein Schlafzimmer. Geradeaus öffnet sich der großzügige Wohn- und Essbereich mit angeschlossener Küche. Von hier aus besteht direkter Zugang zur Terrasse, die den Wohnraum nach außen erweitert. Vom Flur aus sind zudem ein modernisiertes Badezimmer sowie ein weiteres Schlafzimmer erreichbar. Sowohl vom Wohnzimmer als auch von einem der Schlafzimmer gelangt man in eine gemütliche Lounge, die zusätzlichen Raum für Entspannung bietet.


Über die Treppe erreicht man das Dachgeschoss. Dort stehen insgesamt drei weitere Zimmer sowie eine Küche zur Verfügung. Ergänzt wird diese Ebene durch ein Badezimmer, das sich noch im ursprünglichen Zustand befindet. Ein Balkon, der von zwei der Zimmer begehbar ist, rundet das Raumangebot im Dachgeschoss ab und bietet einen schönen Ausblick.


Der Außenbereich ist gepflegt und bietet verschiedene Aufenthaltsmöglichkeiten. Neben der Terrasse und der Lounge stehen zwei Garagen sowie zwei zusätzliche Stellplätze zur Verfügung – ideal für Familien mit mehreren Fahrzeugen oder Gäste.


Fazit


Dieses Zweifamilienhaus bietet viel Platz, eine solide Bausubstanz und zahlreiche bereits durchgeführte Modernisierungen. Die Kombination aus großzügiger Wohnfläche, guter Raumaufteilung und kontinuierlicher Pflege macht die Immobilie zu einem attraktiven Zuhause für Familien, die Ruhe und Platz schätzen.


Bausubstanz & Energieausweis

A+

A

B

C

D

E

F

161,2 kWh/(m²*a)

G

H

Baujahr
1964
Objektzustand
Gepflegt
Letzte Modernisierung
2021
Wesentlicher Energieträger
Öl
Heizungsart
Zentralheizung
Befeuerung
Ölheizung
Energieausweistyp
Bedarfsausweis
Gültig bis
06.01.2036
Energieeffizienzklasse
F
Endenergiebedarf
161,2 kWh/(m²*a)

Ausstattung

In den letzten Jahren wurde kontinuierlich in die Immobilie investiert:


Dach vollständig neu eingedeckt (2019)


Garagenerweiterung (2018)


Fenster aus Kunststoff, doppelt verglast (1999)


Kellerfenster erneuert 2023


Elektrik und Innenausbau umfassend modernisiert (1999)


Badezimmer im Erdgeschoss modernisiert (2016)


Gepflegte und teilweise neu gestaltete Außenanlage


Lagebeschreibung

Die Immobilie befindet sich in Reimsbach, einem gepflegten und traditionsreichen Ortsteil der Gemeinde Beckingen im Saarland. Reimsbach liegt im oberen Haustadter Tal in sonniger, ruhiger Wohnlage und hat sich in den letzten Jahren zu einem kleinen, lebendigen Zentrum mit guter Nahversorgung entwickelt. Die Infrastruktur bietet alles für den täglichen Bedarf: Einkaufsmöglichkeiten, Bäcker, Arztpraxen, Apotheke, Grundschule und Kindertagesstätte sind vor Ort oder in nur wenigen Gehminuten erreichbar.


Trotz der ländlichen Ruhe ist die Verkehrsanbindung sehr komfortabel: Über die nahe Bundesstraße B268 und die Autobahn A8 sind die umliegenden Städte wie Merzig, Saarlouis oder Saarbrücken schnell erreichbar. Auch Luxemburg liegt aufgrund der Lage im Dreiländereck in guter Erreichbarkeit. Die Anbindung an den öffentlichen Nahverkehr sowie Busverbindungen in die Region runden die verkehrliche Erschließung ab.


Reimsbach bietet eine attraktive Mischung aus ländlicher Lebensqualität, naturnaher Umgebung mit Rad- und Wanderwegen sowie dennoch ausgezeichneten Erreichbarkeiten zu Arbeits- und Freizeitorten der Region – ideal für Familien und alle, die ein ruhiges, aber zugleich gut angebundenes Zuhause suchen.


Wohnung finden so einfach wie möglich - das ist unsere Mission!

Kostenlose Basic Features

0 € monatlich


  • Individuelles Such-Profil anlegen
  • Suchaufträge speichern
  • One-Klick Kontaktaufnahme

alles anzeigen

Jetzt kostenlos anmelden

Premium Features

19,99 € monatlich


  • Alle kostenlosen Features
  • Smart-Alarm per Whatsapp
  • Deine Chancen checken
  • Wohngegend analysieren

alles anzeigen

Jetzt Premium freischalten

Gewerblicher Anbieter

Bank 1 Saar Immobilien GmbH
Kaiserstraße 17-19
66111 Saarbrücken

Wohnglück-ID:
Objekt-Nr.:
WGL-1027805
007236#eBkRJ