Büro / Praxen in Friedewald

Aufzug

NEUBAU eines Gesundheitszentrums in Friedewald -letzte Gewerbeeinheit zu vermieten-

Anfragen bisher

Premium

Meine Chancen

Premium

Fairer Preis

Premium

36289 Friedewald

Gewerblicher Anbieter

IMAXX Gesellschaft für Immobilien-Marketing mbH
Leinenweberstraße 14
36251 Bad Hersfeld

Details

Bürofläche
115,11 m²
Typ der Gewerbeimmobilie
Büro / Praxen
Etage, Geschoss
2
Objektzustand
Nach Vereinbarung

Kosten

Was kostet dein Umzug?

Objektbeschreibung

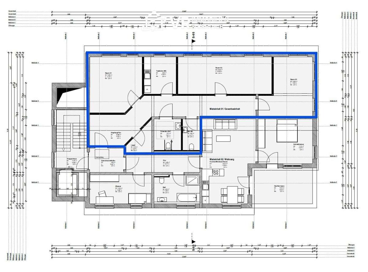
In Friedewald entwickelt die VR-Bankverein Bad Hersfeld-Rotenburg eG ein Gesundheitszentrum, wovon bereits 2 Mieteinheiten, an eine Arztpraxis und an einen Pflegedienstleister) vermietet sind. Die letzte gewerbliche Mieteinheit hat eine Nutzfläche von rd. 115 m².


Das 2. Obergeschoss des Gesundheitszentrums bietet Ihnen die Möglichkeit, eine moderne Gewerbefläche in einer zentralen und gut erreichbaren Lage zu nutzen. Die Mieteinheit eignet sich hervorragend zur Ansiedlung von gesundheitsnahen Dienstleistungen an. In einer Zeit, in der Gesundheitsdienstleistungen immer gefragter werden, ist dies der ideale Standort für Ihre Praxis, Ihr Büro oder Ihre therapeutischen Dienstleistungen.
Die Gewerbeeinheit kann in Abstimmung mit dem Vermieter und dem Mieter dem Bedarf des Mieters ausgebaut und ausgestattet werden. Von großzügigen und hellen Räumen bis hin zu großen Fenster Elementen können die Ansprüche des Mieters berücksichtigt werden. Die Ausstattung umfasst hochwertige Bodenbeläge und moderne Sanitäranlagen.


Dank des barrierefreien Zugangs und der optimalen Infrastruktur ist die Immobilie sowohl für Patienten als auch für Fachkräfte hervorragend erreichbar. Parkplätze sind direkt am Gebäude verfügbar, und die nächste Bushaltestelle befindet sich nur wenige Gehminuten entfernt.


Bausubstanz & Energieausweis

Objektzustand
Nach Vereinbarung
Heizungsart
Sonstige
Energieausweis
Bei Besichtigung

Ausstattung

-energieeffizienter Neubau
-Personenaufzug
-gemeinschaftliche Parkplätze für die Besucher der Dienstleister
-Auf Wunsch können Stellplätze für die Eigennutzung angemietet werden
-Fahrradabstellplätze
-Individuelle Raumgestaltung
-Baustoffe und Installationen werden nach den anerkannten Regeln der Technik eingesetzt


Lagebeschreibung

Das Gesundheitszentrum ist gut erreichbar und grenzt an die Hauptverkehrsstraße an, die eine schnelle Anbindung an die Städte in der Umgebung gewährleisten. Öffentliche Verkehrsmittel sind ebenfalls in der Nähe, was die Erreichbarkeit für Kunden und Patienten erleichtert.


In der Umgebung befinden sich verschiedene Einrichtungen des täglichen Bedarfs, darunter Supermärkte, Apotheken und Restaurants. Diese Infrastruktur trägt dazu bei, dass sowohl Mitarbeiter als auch Patienten die Lage als äußerst praktisch empfinden werden. Zudem siedeln sich bereits jetzt weitere Gesundheitsdienstleister im Objekt an, was die Attraktivität des Standorts für Ihre Gewerbefläche erhöht.


Autobahn A4 - ca. 1,9 km
Supermarkt (z.B. Edeka oder Rewe) - ca. 1,5 km
Apotheke - ca. 1,2 km
Bank - ca. 1,3 km
Restaurant/Café - ca. 1,0 km
Öffentliche Verkehrsmittel (Bushaltestelle) - ca. 0,5 km
Schule (Grundschule oder weiterführende Schule) - ca. 1,8 km
Park/Grünfläche - ca. 0,7 km
Fitnessstudio - ca. 2,0 km
Kindergarten - ca. 1,5 km


Wohnung finden so einfach wie möglich - das ist unsere Mission!

Kostenlose Basic Features

0 € monatlich


  • Individuelles Such-Profil anlegen
  • Suchaufträge speichern
  • One-Klick Kontaktaufnahme

alles anzeigen

Jetzt kostenlos anmelden

Premium Features

19,99 € monatlich


  • Alle kostenlosen Features
  • Smart-Alarm per Whatsapp
  • Deine Chancen checken
  • Wohngegend analysieren

alles anzeigen

Jetzt Premium freischalten

Gewerblicher Anbieter

IMAXX Gesellschaft für Immobilien-Marketing mbH
Leinenweberstraße 14
36251 Bad Hersfeld

Wohnglück-ID:
Objekt-Nr.:
WGL-1026891
49242