Wohn-Grundstück in Walldürn

Traumhaftes Baugrundstück mit Weitblick ins Grüne in Rippberg - FALC Immobilien Heilbronn

Anfragen bisher

Premium

Meine Chancen

Premium

Fairer Preis

Premium

100.000 €

Kaufpreis

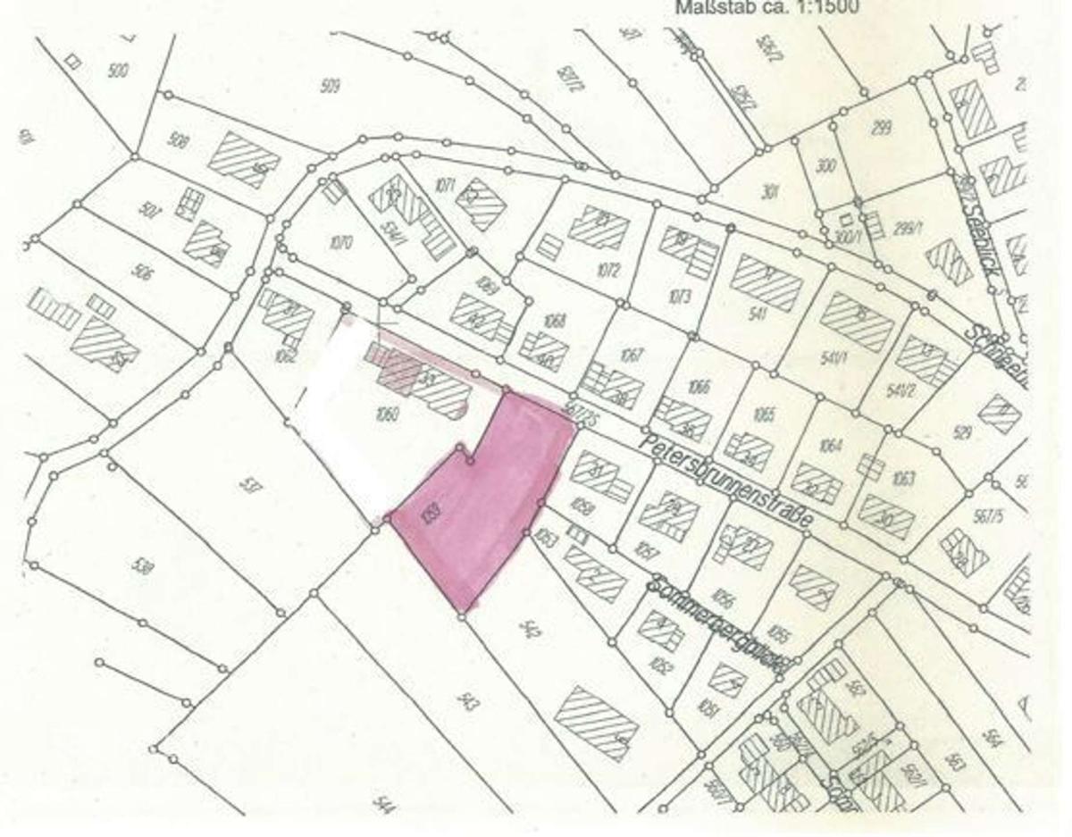
Petersbrunnenstraße
74731 Walldürn

Gewerblicher Anbieter

FALC Immobilien Heilbronn
Neckarsulmer Str. 2
74076 Heilbronn

Details

Grundstücksfläche
1.868 m²
Typ des Grundstücks
Wohn-Grundstück

Kosten

Kaufpreis
100.000 €
Käuferprovision
7,14%
Weiteres Siehe unter Punkt: Sonstiges im Exposé.
Was kostet dein Umzug?

Objektbeschreibung

Ihr Traum vom Eigenheim in idyllischer Lage


Herr Andreas Franzke von FALC Immobilien Heilbronn freut sich, Ihnen diesen herausragenden Bauplatz in ruhiger Lage von Rippberg, nahe Walldürn, vorstellen zu dürfen.


Sie und Ihre Familie träumen von einem Einfamilienhaus in idyllischer, ruhiger Lage? Dann ist dieser Bauplatz genau das Richtige für Sie!


Dieses wunderbare Grundstück liegt in Rippberg, nahe Walldürn, und bietet Ihnen eine Grundstücksfläche von großzügigen 1868 m². Genießen Sie die ruhige Umgebung mit einem tollen Ausblick und einer guten Anbindung an Walldürn und die umliegenden Städte.


Auf diesem Grundstück, das gemäß dem Bebauungsplan „Rippberg“ der Gemeinde Walldürn zur Verfügung steht, haben Sie die Möglichkeit, ein Einfamilienhaus in Hangbauweise zu errichten. Ein Flachdach mit einer Neigung von bis zu 30° ist ebenfalls zulässig. Besonders vorteilhaft ist die Hanglage, die Ihnen nicht nur einen unverbaubaren Ausblick auf die umliegende Natur bietet, sondern auch zahlreiche Möglichkeiten zur Gestaltung eines individuellen Zuhauses mit einem schönen Garten eröffnet.


Lassen Sie sich dieses Angebot nicht entgehen! Klicken Sie gleich auf „Anbieter kontaktieren“ und schicken Sie uns Ihre unverbindliche Anfrage.


Bausubstanz & Energieausweis

Heizungsart
Sonstige
Energieausweis
Laut Gesetz nicht erforderlich

Lagebeschreibung

Die Region um Walldürn, eingebettet in die malerische Landschaft des Odenwaldes, bietet eine harmonische Mischung aus Natur und Kultur. Diese Gegend ist bekannt für ihre ruhige und ländliche Atmosphäre, die dennoch eine gute Anbindung an wichtige Verkehrsknotenpunkte gewährleistet. Die Straße, in der sich das Grundstück befindet, zeichnet sich durch eine angenehme Wohnumgebung aus, die von einer gepflegten Nachbarschaft und einem hohen Maß an Privatsphäre geprägt ist.


Für Grundstücksinteressierte sind die Nähe zu wichtigen Punkten von besonderem Interesse. Der nächstgelegene internationale Flughafen ist der Flughafen Frankfurt am Main, der in ca. 90 Minuten mit dem Auto erreichbar ist. Die Autobahn A81, die eine hervorragende Verbindung zu den umliegenden Städten bietet, ist ca. 30 Autominuten entfernt. Der öffentliche Nahverkehr ist durch die nahegelegene Bahnstation Rippberg, die ca. 300 Meter entfernt liegt, gut erschlossen.


Ein weiteres Highlight der Lage ist die Nähe zu den natürlichen und kulturellen Sehenswürdigkeiten. Der Maiblümchenstein, ein beliebtes Ausflugsziel, ist ca. 740 Meter entfernt und bietet einen Einblick in die lokale Geschichte und Natur. Der Hochseilgarten Forest Jump, ca. 2 Kilometer entfernt, bietet Abenteuer und Erholung für die ganze Familie. Für den täglichen Bedarf ist die Anbindung an den Einzelhandel durch die nahegelegenen Supermärkte in ca. 5,5 Kilometern Entfernung gewährleistet.


Die Region ist geprägt von einer stabilen Bevölkerungsstruktur mit einem Durchschnittsalter von 45 Jahren und einer hohen Wohnqualität, die sich in großzügigen Wohnflächen pro Kopf widerspiegelt. Die Infrastruktur ist gut ausgebaut, was sich in der Nähe zu Schulen und Kindergärten zeigt, die in einem Umkreis von ca. 5 Kilometern erreichbar sind. Dies macht die Lage besonders attraktiv für Familien, die Wert auf eine gute Bildungsinfrastruktur legen.


Insgesamt bietet die Region um Walldürn eine ideale Kombination aus ländlicher Idylle und guter Erreichbarkeit von urbanen Zentren, was sie zu einem attraktiven Standort für den Erwerb eines Grundstücks macht.


Sonstige Angaben

Die Objektbeschreibung beruht ganz oder zum Teil auf Angaben des Eigentümers. Für die Richtigkeit oder Vollständigkeit übernehmen wir keine Gewähr.


Vereinbaren Sie noch heute einen unverbindlichen Besichtigungstermin und überzeugen Sie sich selbst! Terminvorschläge an: heilbronn@falcimmo.de. Da wir die Termine für Besichtigungen mit größter Sorgfalt planen, bitten wir Sie um Verständnis dafür, dass Termine ausschließlich in schriftlicher Form per E-Mail vereinbart werden können. Um fair und gerecht gegenüber jedem unserer Interessenten zu werden, ist dies unumgänglich. Wir freuen uns über Ihre Kontaktaufnahme! Geben Sie bitte immer die vollständige ADRESSE und RUFNUMMER an!


Ihr Ansprechpartner: Andreas Franzke, heilbronn@falcimmo.de
Besuchen Sie uns auch in unserem Büro in: Neckarsulmer Str. 2, 74076 Heilbronn


Sie denken selbst über die Veräußerung Ihrer Immobilie nach oder möchten einfach nur wissen, was diese wert ist? Bei uns erhalten Sie kostenlos eine professionelle Wertermittlung! Gehen Sie hierzu auf: www.falcimmo.de/Das-ist-meine-Immobilie-wert.htm oder kontaktieren Sie uns.


Wohnung finden so einfach wie möglich - das ist unsere Mission!

Kostenlose Basic Features

0 € monatlich


  • Individuelles Such-Profil anlegen
  • Suchaufträge speichern
  • One-Klick Kontaktaufnahme

alles anzeigen

Jetzt kostenlos anmelden

Premium Features

19,99 € monatlich


  • Alle kostenlosen Features
  • Smart-Alarm per Whatsapp
  • Deine Chancen checken
  • Wohngegend analysieren

alles anzeigen

Jetzt Premium freischalten

Gewerblicher Anbieter

FALC Immobilien Heilbronn
Neckarsulmer Str. 2
74076 Heilbronn

Wohnglück-ID:
Objekt-Nr.:
WGL-568654
FALC-AnDz-67007